Bildegalleri

Trygve Strømbergs vei 39D presenteres av EIE eiendomsmegling ved Alexander Birkeland.
Solgt
Øvre Prinsdal
Familievennlig enderekkehus over to plan med tre soverom, garasjeplass og solrike uteplasser i et rolig boligområde.
Prisantydning4 990 000 kr
Nøkkelinfo
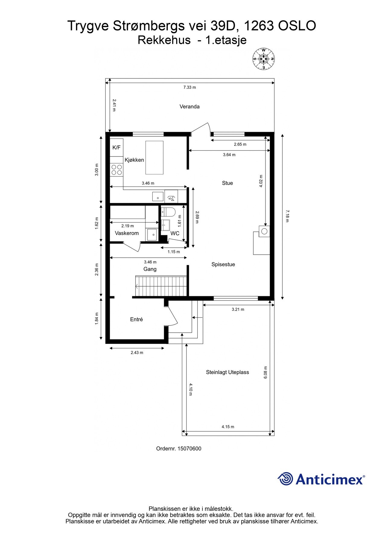
- Boligtype
- Rekkehus
- Eieform
- Eier (Selveier)
- Soverom
- 3
- Internt bruksareal
- 105 m² (BRA-i)
- Bruksareal
- 105 m²
- Eksternt bruksareal
- 4 m² (BRA-e)
- Balkong/Terrasse
- 18 m² (TBA)
- Byggeår
- 1979
- Energimerking
- F - Rød
- Rom
- 4
- Tomteareal
- 19 943 m² (eiet)
Fasiliteter
Barnevennlig
Balkong/Terrasse
Garasje/P-plass
Kabel-TV
Offentlig vann/kloakk
Peis/Ildsted
Turterreng
Sentralt
Bredbåndstilknytning
Moderne
Rolig
Lademulighet
Om boligen
Velkommen til Trygve Strømbergs vei 39D - Familievennlig enderekkehus over to plan i et barnevennlig beliggenhet rett ved flotte turområder i marka. Boligen byr på flere gode kvaliteter og har store solrike uteplasser. Perfekt bolig for deg og familien med gangavstand til skoler i alle trinn og barnehager.
Høydepunkter
- Enderekkehus med garasjeplass
- Mulighet for etablere elbillader
- Store solrike uteplasser
- Fasade malt i 2018
- Vinduer/balkongdør fra 2013
- Gjennomgående god standard
- Gangavstand til flotte turstier i marka
- Flere skoler og barnehager i nærområdet
- Tilbaketrukket og barnevennlig beliggenhet
- Godt kollektivtilbud like ved
Boligen har en svært ettertraktet og barnevennlig beliggenhet øverst i Trygve Strømbergs vei. Godt tilbaketrukket fra trafikkstøy og Nedre Prinsdals vei. Meget barnevennlig område med flere barnehager i nærheten.
Velkommen til visning!
Høydepunkter
- Enderekkehus med garasjeplass
- Mulighet for etablere elbillader
- Store solrike uteplasser
- Fasade malt i 2018
- Vinduer/balkongdør fra 2013
- Gjennomgående god standard
- Gangavstand til flotte turstier i marka
- Flere skoler og barnehager i nærområdet
- Tilbaketrukket og barnevennlig beliggenhet
- Godt kollektivtilbud like ved
Boligen har en svært ettertraktet og barnevennlig beliggenhet øverst i Trygve Strømbergs vei. Godt tilbaketrukket fra trafikkstøy og Nedre Prinsdals vei. Meget barnevennlig område med flere barnehager i nærheten.
Velkommen til visning!
NB: Knappen for å vise hele beskrivelsen har kun en visuell effekt.
NB: Knappen for å vise hele beskrivelsen har kun en visuell effekt.
Salgsoppgaven beskriver vesentlig og lovpålagt informasjon om eiendommen
Se komplett salgsoppgaveNyttige lenker
Nærområdet
Mekleriet Oslo
Annonseinformasjon
| FINN-kode | 407203531 |
|---|---|
| Sist endret | 03. juni 2025 14:59 |
| Referanse | 99251114 |
Annonsene kan være mangelfulle i forhold til lovpålagt opplysningsplikt. Før bindende avtale inngås oppfordres interessenter til å innhente komplett informasjon fra meglerforetaket, selger eller utleier.


































































