Bildegalleri

Oslo / Jernbanetorget - Butikklokale ved Karl Johans gate
Nøkkelinfo
- Areal
- 289 m²
- Overtakelse
- Etter avtale
Type lokale
Om eiendommen
Butikklokale med god beliggenhet ved inngangen til Karl Johans gate. Dette lokalet har et høyt footfall rett utenfor døren. Naboskapet består av Amerikalinjen, Pincho Nation, Krogh Optikk, Helly Hansen og Arkaden ligger kun noen meter fra lokalet.
Butikklokalet har fine utstillingsvinduer og god eksponering ut mot en av Oslos travleste områder.
Ledig fra 01.09.2025
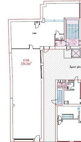
Areal 236 kvm netto og 289 kvm brutto. Mulighet for lager i kjelleren.
For henvendelse, send presentasjon av konseptet på mail til lisen.fundingsland@olavthon.no. Utleier ønsker ikke gatekjøkken eller matbutikk i dette lokalet.
Visning
Ta kontakt for å avtale visning.Thon Eiendom
Lisen Fundingsland
Nærområdet
Annonseinformasjon
| FINN-kode | 406978528 |
|---|---|
| Sist endret | 09. mai 2025 07:34 |
| Referanse | Eline Høyte |
Annonsene kan være mangelfulle i forhold til lovpålagt opplysningsplikt. Før bindende avtale inngås oppfordres interessenter til å innhente komplett informasjon fra meglerforetaket, selger eller utleier.





