Bildegalleri

Velkommen til Kinnsvegen 235, en fritidseiendom presentert av EiendomsMegler 1 Fjellmegleren!
Inaktiv
Mellom Aurdal og Tisleidalen
Flott fritidseiendom med rolig beliggenhet ved Svartetjern. Gode solforhold, og kort avstand til fint turterreng.
Prisantydning1 590 000 kr
- Omkostninger
- 41 070 kr
- Totalpris
- 1 631 070 kr
- Eiendomsskatt
- 731 kr per år
- Formuesverdi
- 435 770 kr
Nøkkelinfo
- Beliggenhet
- På fjellet
- Boligtype
- Hytte
- Eieform
- Eier (Selveier)
- Internt bruksareal
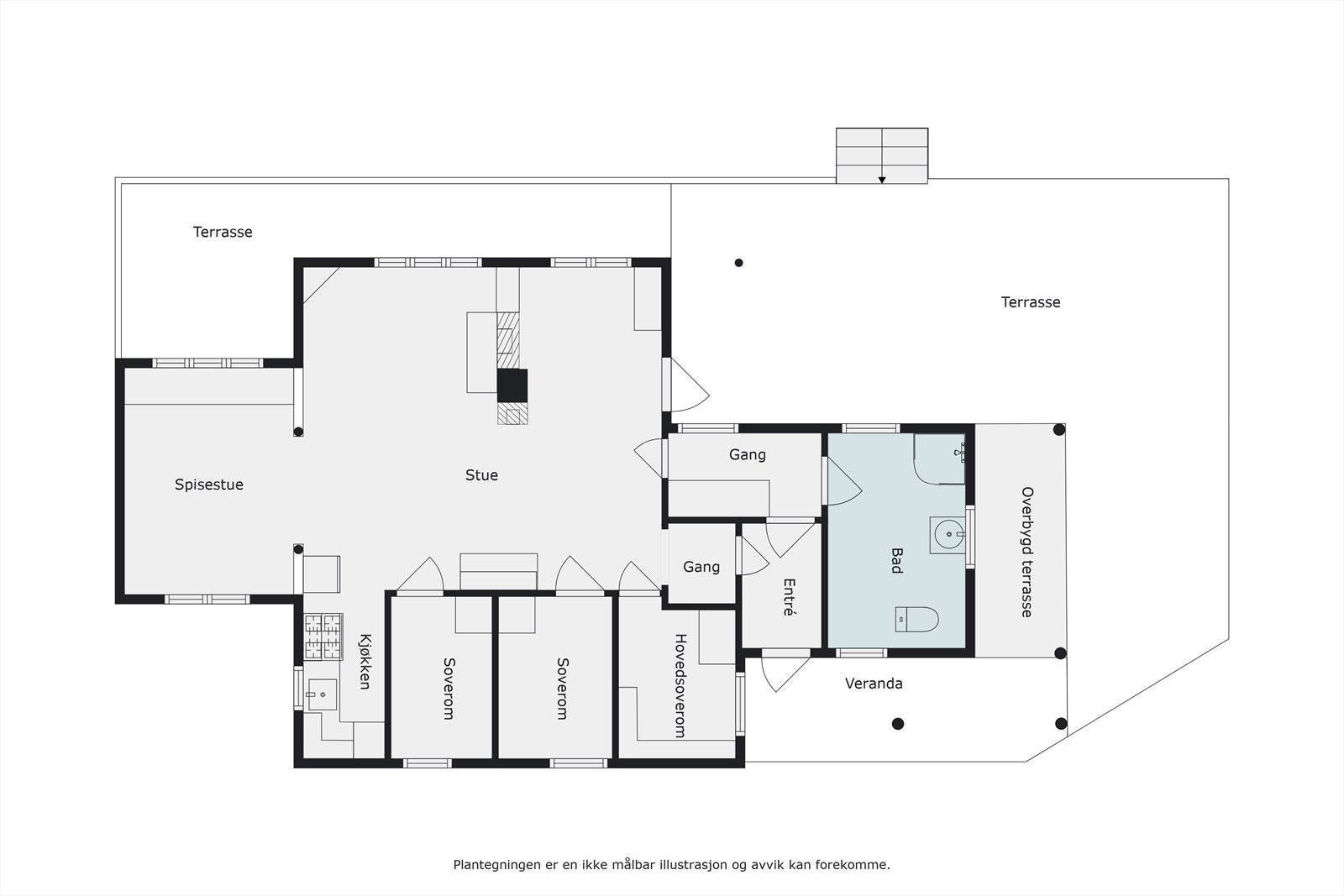
- 79 m² (BRA-i)
- Bruksareal
- 94 m²
- Eksternt bruksareal
- 15 m² (BRA-e)
- Balkong/Terrasse
- 80 m² (TBA)
- Tomteareal
- 2 114 m² (eiet)
- Byggeår
- 1984
- Soverom
- 3
- Overtakelse
- Etter nærmere avtale med selger. Vær vennlig å angi ønsket overtagelsesdato i vedlagte budskjema.
Fasiliteter
Balkong/Terrasse
Barnevennlig
Bilvei frem
Hage
Rolig
Bademulighet
Fiskemulighet
Turterreng
Visning
Velkommen til visning! Positive tilbakemeldinger fra markedet, gjør at vi fortsetter med visningspåmelding. Meld deg på ved å trykke på Visningspåmelding . Bare å ringe oss dersom du har spørsmål. For visning utover det annonsert, ta kontakt med megler!
Husk å lese komplett salgsoppgave før visning. Bestill komplett, utskriftsvennlig salgsoppgave.
VisningspåmeldingOm boligen
Vi har gleden av å presentere Kinnsvegen 235 - en fint hyttetun med fin beliggenhet ved Svartetjernet. Med sin beliggenhet mellom Aurdal og Tisleidalen, er det kort avstand til flotte turer i naturen rundt, både sommer og vinter. Eiendommen er bestående av hytte, anneks, uthus og en lekehytte. Her er det gode solforhold, og fin utsikt til bl.a. Svartetjernet. Denne eiendommen kan skilte med følgende:
- Strøm fra solcelleanlegg og aggregat.
- Vann fra borebrønn med tappepunkt på yttervegg.
- Tre soverom + soverom i anneks.
- Romslig tomt på ca. 2,1 mål.
- Ta kontakt med megler for å avtale privatvisning!
Velkommen til visning!
- Strøm fra solcelleanlegg og aggregat.
- Vann fra borebrønn med tappepunkt på yttervegg.
- Tre soverom + soverom i anneks.
- Romslig tomt på ca. 2,1 mål.
- Ta kontakt med megler for å avtale privatvisning!
Velkommen til visning!
NB: Knappen for å vise hele beskrivelsen har kun en visuell effekt.
NB: Knappen for å vise hele beskrivelsen har kun en visuell effekt.
Salgsoppgaven beskriver vesentlig og lovpålagt informasjon om eiendommen
Se komplett salgsoppgaveNyttige lenker
Nærområdet
EiendomsMegler 1 Fjellmegleren
Vi loser deg trygt gjennom hele boligsalget
Annonseinformasjon
| FINN-kode | 406831460 |
|---|---|
| Sist endret | 19. des. 2025 12:24 |
| Referanse | 1533250019 |
Annonsene kan være mangelfulle i forhold til lovpålagt opplysningsplikt. Før bindende avtale inngås oppfordres interessenter til å innhente komplett informasjon fra meglerforetaket, selger eller utleier.




































