Bildegalleri

Velkommen til Fjordresidensen - strandlinjeeiendom nær sentrum
Solgt
"Fjordresidensen" - Ferie/aktivitetshus m/strandlinje, flytebrygge til 4 båter og 8 soverom med egne bad
Prisantydning3 290 000 kr
- Kommunale avg.
- 29 215 kr per år
Nøkkelinfo
- Beliggenhet
- Ved sjøen
- Boligtype
- Hytte
- Eieform
- Eier (Selveier)
- Bruksareal
- 540 m²
- Tomteareal
- 612 m² (eiet)
- Bruttoareal
- 633 m²
- Byggeår
- 1960
- Soverom
- 0
Fasiliteter
Balkong/Terrasse
Barnevennlig
Bilvei frem
Bredbåndstilknytning
Båtplass
Garasje/P-plass
Kabel-TV
Rolig
Utsikt
Bademulighet
Fiskemulighet
Innlagt strøm
Strandlinje
Turterreng
Om boligen
Ca. 14 meter strandlinje bestående av kai med flytebrygge til 4 båter.
Tomta består av asfaltert parkeringsområde, noe belegningsstein under terrasse og støpt kai ved strandlinjen.
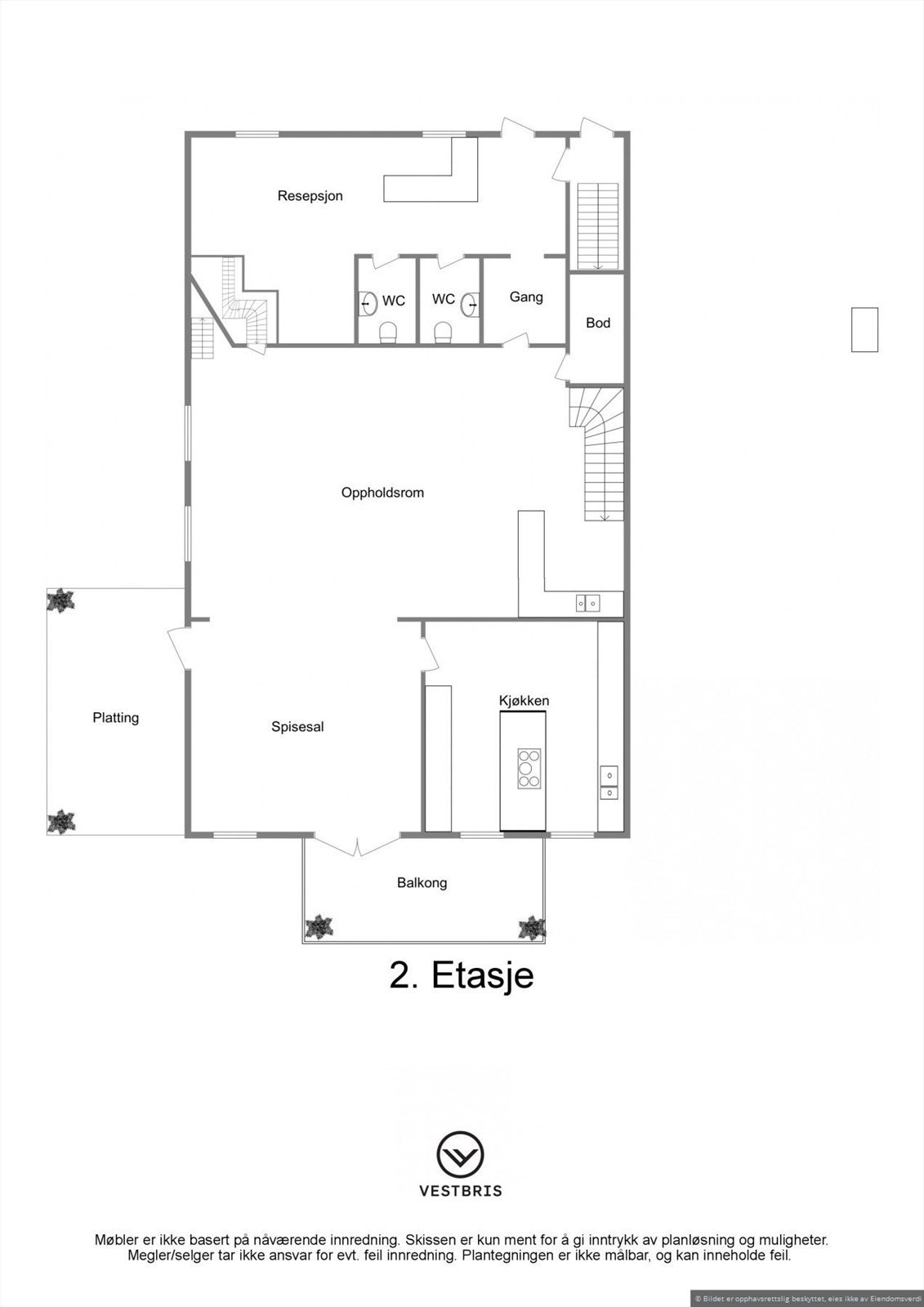
- Bygget ble ombygget i perioden 2000-2007, er innholdsrikt og inneholder bl.a. bassengrom, stue, lager, bad, badstue, soverom m/dusj og toalett etc. i underetasjen. 1. etasje har kjøkken, spisestue, aktivitetsrom toaletter og soverom med toalett. Stue i mellometasje. Stue/felles oppholdsrom i 2. etasje samt 8 soverom hvor alle har egne bad.
- Alle etasjer og rom har vannboren varme fra en 12/kwh luft til vann varmepumpe.
- Godt isolert og godt brannsikret. Soverommene er, i følge selger, brannceller.
- Selges møblert.
- Eiendommen ligger sentralt til et par hundre meter fra Skånevik Fjordhotell.
Tomta består av asfaltert parkeringsområde, noe belegningsstein under terrasse og støpt kai ved strandlinjen.
- Bygget ble ombygget i perioden 2000-2007, er innholdsrikt og inneholder bl.a. bassengrom, stue, lager, bad, badstue, soverom m/dusj og toalett etc. i underetasjen. 1. etasje har kjøkken, spisestue, aktivitetsrom toaletter og soverom med toalett. Stue i mellometasje. Stue/felles oppholdsrom i 2. etasje samt 8 soverom hvor alle har egne bad.
- Alle etasjer og rom har vannboren varme fra en 12/kwh luft til vann varmepumpe.
- Godt isolert og godt brannsikret. Soverommene er, i følge selger, brannceller.
- Selges møblert.
- Eiendommen ligger sentralt til et par hundre meter fra Skånevik Fjordhotell.
NB: Knappen for å vise hele beskrivelsen har kun en visuell effekt.
NB: Knappen for å vise hele beskrivelsen har kun en visuell effekt.
Salgsoppgaven beskriver vesentlig og lovpålagt informasjon om eiendommen
Se komplett salgsoppgaveNyttige lenker
Nærområdet
Eiendomsmegler A AS
Det bor en A i oss alle
Annonseinformasjon
| FINN-kode | 406724134 |
|---|---|
| Sist endret | 14. juni 2025 09:49 |
| Referanse | EMA1.25112 |
Annonsene kan være mangelfulle i forhold til lovpålagt opplysningsplikt. Før bindende avtale inngås oppfordres interessenter til å innhente komplett informasjon fra meglerforetaket, selger eller utleier.














































