Bildegalleri

Andelsleilighet med sentral beliggenhet på Sinsen med egen markterrasse.
Solgt
Sinsen, ved Torshovdalen
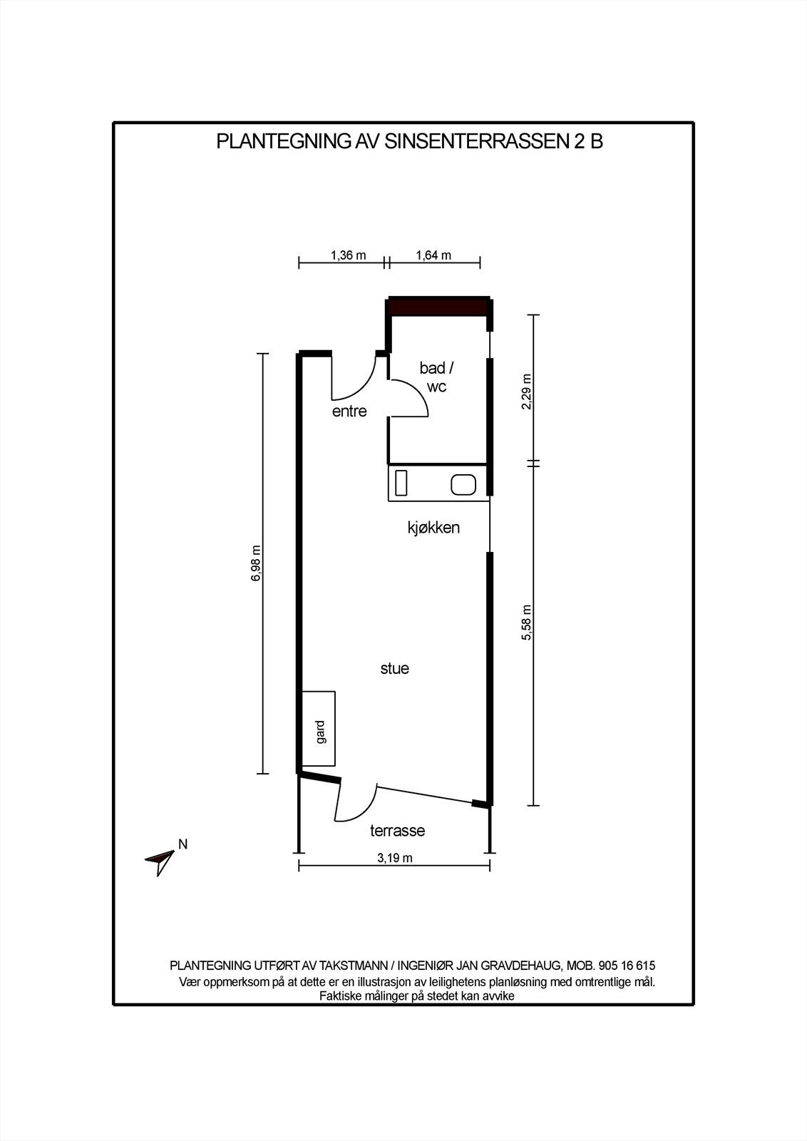
Arealeffektiv andelsleilighet med egen markterrasse på 17 kvm. Oppussingsobjekt. Populær beliggenhet. Heis.
Prisantydning2 990 000 kr
Nøkkelinfo
- Boligtype
- Leilighet
- Eieform
- Andel
- Soverom
- 0
- Internt bruksareal
- 24 m² (BRA-i)
- Bruksareal
- 28 m²
- Eksternt bruksareal
- 4 m² (BRA-e)
- Balkong/Terrasse
- 17 m² (TBA)
- Etasje
- 1
- Byggeår
- 1989
- Energimerking
- E - Rød
- Rom
- 1
- Tomteareal
- 757 m² (eiet)
Fasiliteter
Takterrasse
Balkong/Terrasse
Barnevennlig
Bredbåndstilknytning
Hage
Heis
Kjæledyr tillatt
Offentlig vann/kloakk
Sentralt
Turterreng
Om boligen
Nordvik avd. Frogner har gleden av å presentere Sinsenterrassen 2B - En arealeffektiv andelsleilighet med sentral beliggenhet på Sinsen. Her bor du sentrumsnært i fine omgivelser med gangavstand til dagligvare butikker, parker, kollektivtransport og treningssenter.
- Bod
- Heis
- Bygg fra 1989
- Egen markterrasse på 17 kvm
- Svært arealeffektiv planløsning
- Mulighet for leie av garasjeplass
- Internett via fiber fra GlobalConnect
- Felles takterrasse med fantastiske solforhold og flott utsikt
- Umiddelbar nærhet til Torshovdalen og kollektivt som trikk og buss
NB: Knappen for å vise hele beskrivelsen har kun en visuell effekt.
NB: Knappen for å vise hele beskrivelsen har kun en visuell effekt.
Salgsoppgaven beskriver vesentlig og lovpålagt informasjon om eiendommen
Se komplett salgsoppgaveNyttige lenker
Nærområdet
Nordvik Frogner
Annonseinformasjon
| FINN-kode | 406521186 |
|---|---|
| Sist endret | 08. sep. 2025 15:36 |
| Referanse | 14-0239/25 |
Annonsene kan være mangelfulle i forhold til lovpålagt opplysningsplikt. Før bindende avtale inngås oppfordres interessenter til å innhente komplett informasjon fra meglerforetaket, selger eller utleier.






















