Bildegalleri

Velkommen til Arne garborgs veg 11C - En flott og innholdsrik 1/2-part på Ugla!
Byåsen/ugla
Flott vertikaldelt 1/2-part | Familievennlig beliggenhet | 4 soverom | Nærhet til flotte turområder | Gode solforhold
Prisantydning5 790 000 kr
Nøkkelinfo
- Boligtype
- Tomannsbolig
- Eieform
- Eier (Selveier)
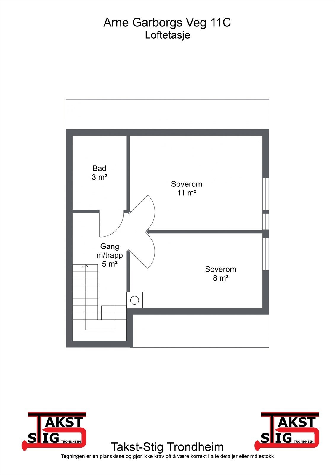
- Soverom
- 4
- Internt bruksareal
- 115 m² (BRA-i)
- Bruksareal
- 117 m²
- Eksternt bruksareal
- 2 m² (BRA-e)
- Balkong/Terrasse
- 19 m² (TBA)
- Byggeår
- 1990
- Energimerking
- D - Gul
- Rom
- 5
- Tomteareal
- 361 m² (eiet)
Fasiliteter
Balkong/Terrasse
Barnevennlig
Bredbåndstilknytning
Garasje/P-plass
Hage
Kjæledyr tillatt
Kabel-TV
Offentlig vann/kloakk
Parkett
Peis/Ildsted
Rolig
Turterreng
Visning
Alle våre visninger har påmelding. Meld deg opp til ønsket visningstidspunkt via linken visningspåmelding , eller kontakt megler på telefon, SMS eller mail. Vi anbefaler at salgsoppgaven lastes ned digitalt, og oppfordrer alle til å lese komplett salgsoppgave før visning. Skulle det mot formodning ikke være påmeldte til angitt visningstidspunkt vil ikke visning bli gjennomført.
VisningspåmeldingOm boligen
Velkommen til Arne Garborgs veg 11DC - en flott bolig som passer for den aktive og for barnefamilier. Nærhet til barnehager, skoler og dagligvarebutikk. Boligens plassering er flott med tanke på de flotte turområdene for små og store rundt de tre vannene Kyvannet, Lianvannet og Haukvannet.
Kvaliteter:
- Stuen har store vindusflater som gir godt med lysinslipp til stue og kjøkken.
- Stor kjellerstue/soverom på 14,5 kvm med arbeidsplass/kontorplass
- 3(4) soverom
- God plass for oppbevaring på loft
- Gårdsplass med 2 biloppstillingsplasser
- Meget innbydende og pent opparbeidet hage.
- Romslig terrasse på 19 kvm fra 2018 med gode solforhold.
- På baksiden av boligen er god plass til å sette opp trampoline
- Varmepumpe fra 2021
Velkommen til en hyggelig visning!
Kvaliteter:
- Stuen har store vindusflater som gir godt med lysinslipp til stue og kjøkken.
- Stor kjellerstue/soverom på 14,5 kvm med arbeidsplass/kontorplass
- 3(4) soverom
- God plass for oppbevaring på loft
- Gårdsplass med 2 biloppstillingsplasser
- Meget innbydende og pent opparbeidet hage.
- Romslig terrasse på 19 kvm fra 2018 med gode solforhold.
- På baksiden av boligen er god plass til å sette opp trampoline
- Varmepumpe fra 2021
Velkommen til en hyggelig visning!
NB: Knappen for å vise hele beskrivelsen har kun en visuell effekt.
NB: Knappen for å vise hele beskrivelsen har kun en visuell effekt.
Salgsoppgaven beskriver vesentlig og lovpålagt informasjon om eiendommen
Se komplett salgsoppgaveNyttige lenker
Nærområdet
Heimdal Eiendomsmegling avd. Rosten
Annonseinformasjon
| FINN-kode | 406520074 |
|---|---|
| Sist endret | 04. nov. 2025 17:17 |
| Referanse | 1-25-0134 |
Annonsene kan være mangelfulle i forhold til lovpålagt opplysningsplikt. Før bindende avtale inngås oppfordres interessenter til å innhente komplett informasjon fra meglerforetaket, selger eller utleier.








































