Bildegalleri

Velkommen til Maristuen 4 - En unik og påkostet enebolig i rolige omgivelser med 3-roms utleie og spektakulær utsikt!
Inaktiv
Myreng
Utsøkt enebolig med 3-roms utleie og meget høy standard beliggende på eksepsjonell utsiktstomt!
Prisantydning18 000 000 kr
Nøkkelinfo
- Boligtype
- Enebolig
- Eieform
- Eier (Selveier)
- Soverom
- 5
- Internt bruksareal
- 220 m² (BRA-i)
- Bruksareal
- 220 m²
- Balkong/Terrasse
- 145 m² (TBA)
- Byggeår
- 2017
- Energimerking
- B - Oransje
- Rom
- 8
- Tomteareal
- 721 m² (eiet)
Fasiliteter
Takterrasse
Balkong/Terrasse
Barnevennlig
Bredbåndstilknytning
Garasje/P-plass
Hage
Ingen gjenboere
Offentlig vann/kloakk
Parkett
Peis/Ildsted
Rolig
Sentralt
Utsikt
Turterreng
Balansert ventilasjon
Visning
Alle våre visninger har påmelding. På denne måten sikrer vi at megler har god oversikt og tid til å imøtekomme alle interessenter på beste måte. Skulle ingen være påmeldt til visningen, vil visningen ikke bli gjennomført. Passer ikke annonsert tidspunkt, ta kontakt så finner vi en løsning.
VisningspåmeldingOm boligen
En delikat og gjennomført enebolig fra 2017 med spektakulær beliggenhet, storslått utsikt og meget gode solforhold. Boligen kombinerer design med upåklagelig beliggenhet, tilbaketrukket med samtidig med nærhet til det meste.
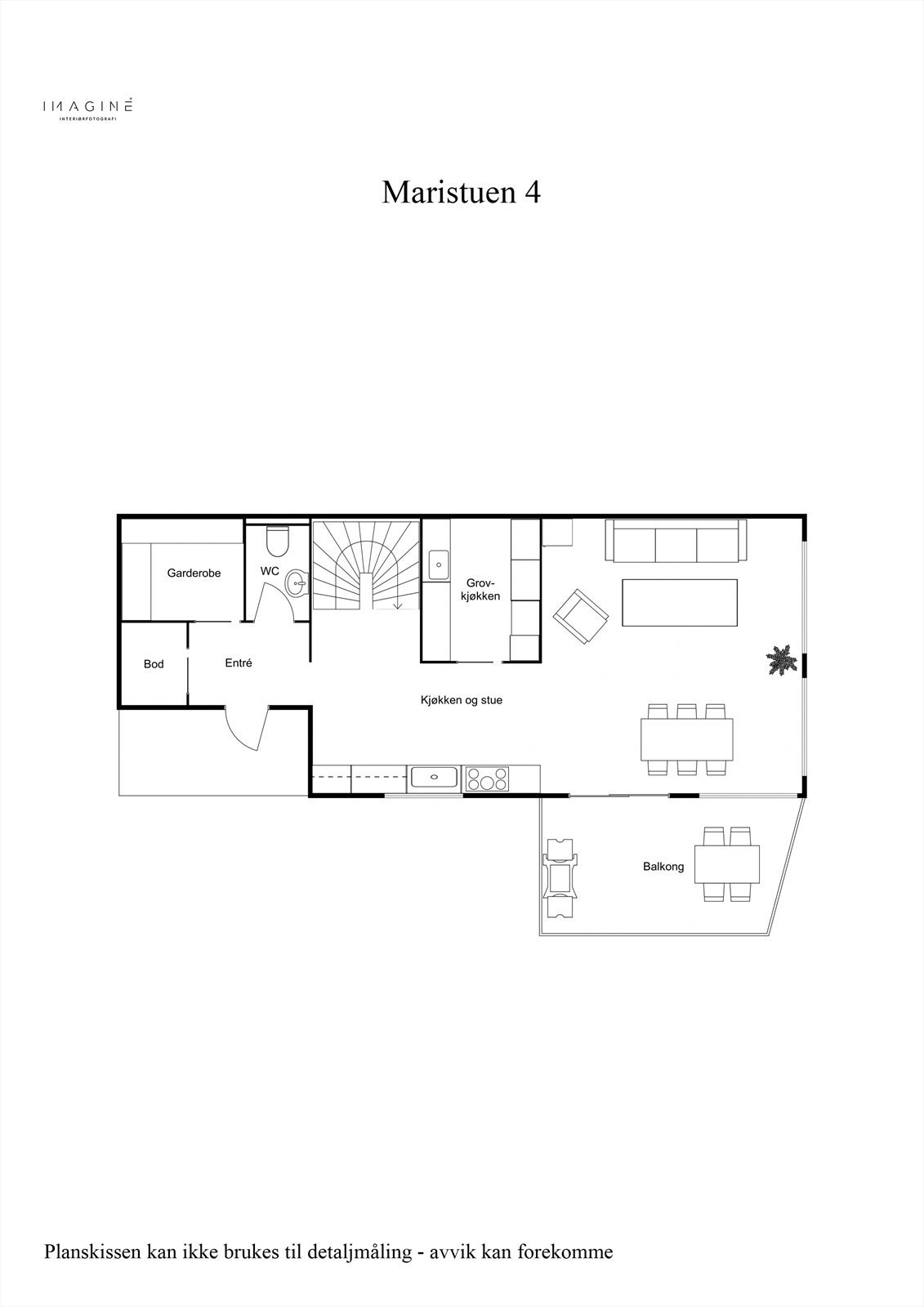
Tegnet og innredet i samråd med Julie Johnsen, en anerkjent og velrenommert interiørarkitekt. Her er ingenting overlatt til tilfeldigheter. Gjennomført med høy standard i alle valg, praktiske løsninger og delikate farger, noe som gir en livsstil der komfort møter luksus. Her bor du fint til på toppen av øya. Med flotte uteområder hvor man kan nyte solen fra morgen til kveld. Boligen er over 3 plan og inneholder en 3-roms leilighet i deler av 1 etasje, hoveddel består av entré, 3 soverom, 2 bad, 2 stuer, kjøkken, grovkjøkken, walk-inn garderober og en utrolig badstue.
Tegnet og innredet i samråd med Julie Johnsen, en anerkjent og velrenommert interiørarkitekt. Her er ingenting overlatt til tilfeldigheter. Gjennomført med høy standard i alle valg, praktiske løsninger og delikate farger, noe som gir en livsstil der komfort møter luksus. Her bor du fint til på toppen av øya. Med flotte uteområder hvor man kan nyte solen fra morgen til kveld. Boligen er over 3 plan og inneholder en 3-roms leilighet i deler av 1 etasje, hoveddel består av entré, 3 soverom, 2 bad, 2 stuer, kjøkken, grovkjøkken, walk-inn garderober og en utrolig badstue.
NB: Knappen for å vise hele beskrivelsen har kun en visuell effekt.
NB: Knappen for å vise hele beskrivelsen har kun en visuell effekt.
Salgsoppgaven beskriver vesentlig og lovpålagt informasjon om eiendommen
Se komplett salgsoppgaveNyttige lenker
Nærområdet
GARANTI Eiendomsmegling Tromsø
Annonseinformasjon
| FINN-kode | 406453533 |
|---|---|
| Sist endret | 22. sep. 2025 08:24 |
| Referanse | GAR51.2586 |
Annonsene kan være mangelfulle i forhold til lovpålagt opplysningsplikt. Før bindende avtale inngås oppfordres interessenter til å innhente komplett informasjon fra meglerforetaket, selger eller utleier.



































































