Bildegalleri

Velkommen til Lunden 37! Dette er en innbydende og attraktiv 4-roms selveierleilighet beliggende i 4 etasje med heisadkomst - sentralt på populære Vollebekk.
Solgt
VOLLEBEKK/LUNDEN
Moderne og familievennlig 4-roms m/balkong - Bygg fra 2019 - "Alt" inkl. i fk. - Heis - Garasjeplass m/el - Nær marka
Prisantydning7 700 000 kr
Nøkkelinfo
- Boligtype
- Leilighet
- Eieform
- Eier (Selveier)
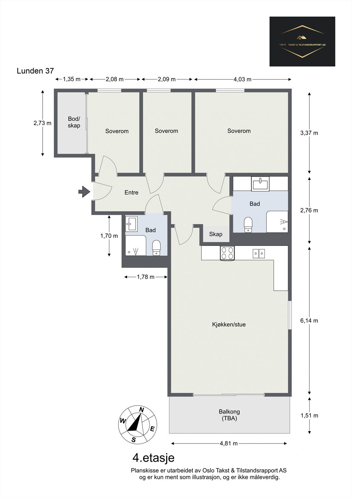
- Soverom
- 3
- Internt bruksareal
- 85 m² (BRA-i)
- Bruksareal
- 91 m²
- Eksternt bruksareal
- 6 m² (BRA-e)
- Balkong/Terrasse
- 7 m² (TBA)
- Etasje
- 4
- Byggeår
- 2019
- Energimerking
- Rom
- 4
- Tomteareal
- 9 497 m² (eiet)
Fasiliteter
Balkong/Terrasse
Barnevennlig
Bredbåndstilknytning
Garasje/P-plass
Heis
Kjæledyr tillatt
Kabel-TV
Offentlig vann/kloakk
Parkett
Rolig
Sentralt
Vaktmester-/vektertjeneste
Turterreng
Lademulighet
Balansert ventilasjon
Om boligen
Velkommen til Lunden 37!
Dette er en innbydende og attraktiv 4-roms selveierleilighet beliggende i 4 etasje med heisadkomst - sentralt på populære Vollebekk. Området er i stadig utvikling og har gjennomgått betydelig fornyelse de siste årene. I nærområdet finner du flere dagligvarebutikker, og både buss og T-bane ligger kun få minutters gange unna. I tillegg er det kort vei til marka og flotte turområder - perfekt for både hverdag og helg.
Fremtredende kvaliteter:
- Moderne 4-roms med familievennlig planløsning
- Herlig balkong på ca. 7 kvm
- Tre soverom
- To baderom
- Bygg fra 2019 med nybyggkvaliteter
- Vannbåren gulvvarme i entré, bad og stue/kjøkken
- Balansert ventilasjon
- Varmtvann, vannbåren varme, kabel-tv og bredbånd inkl.
- Garasjeplass m/el
- 5 min gange til T-bane
Dette er en innbydende og attraktiv 4-roms selveierleilighet beliggende i 4 etasje med heisadkomst - sentralt på populære Vollebekk. Området er i stadig utvikling og har gjennomgått betydelig fornyelse de siste årene. I nærområdet finner du flere dagligvarebutikker, og både buss og T-bane ligger kun få minutters gange unna. I tillegg er det kort vei til marka og flotte turområder - perfekt for både hverdag og helg.
Fremtredende kvaliteter:
- Moderne 4-roms med familievennlig planløsning
- Herlig balkong på ca. 7 kvm
- Tre soverom
- To baderom
- Bygg fra 2019 med nybyggkvaliteter
- Vannbåren gulvvarme i entré, bad og stue/kjøkken
- Balansert ventilasjon
- Varmtvann, vannbåren varme, kabel-tv og bredbånd inkl.
- Garasjeplass m/el
- 5 min gange til T-bane
NB: Knappen for å vise hele beskrivelsen har kun en visuell effekt.
NB: Knappen for å vise hele beskrivelsen har kun en visuell effekt.
Salgsoppgaven beskriver vesentlig og lovpålagt informasjon om eiendommen
Se komplett salgsoppgaveNyttige lenker
Nærområdet
Nordvik Nydalen
Annonseinformasjon
| FINN-kode | 406345199 |
|---|---|
| Sist endret | 16. mars 2026 12:29 |
| Referanse | 20-0154/25 |
Annonsene kan være mangelfulle i forhold til lovpålagt opplysningsplikt. Før bindende avtale inngås oppfordres interessenter til å innhente komplett informasjon fra meglerforetaket, selger eller utleier.










































