Bildegalleri

Nyoppført halvpart av tomannsbolig med fantastisk utsikt mot Oslofjorden
Lekker nyoppført halvpart av tomannsbolig med høy standard og god utsikt mot fjorden - Meget barnevennlig
Prisantydning5 250 000 kr
Nøkkelinfo
- Boligtype
- Tomannsbolig
- Eieform
- Eier (Selveier)
- Soverom
- 3
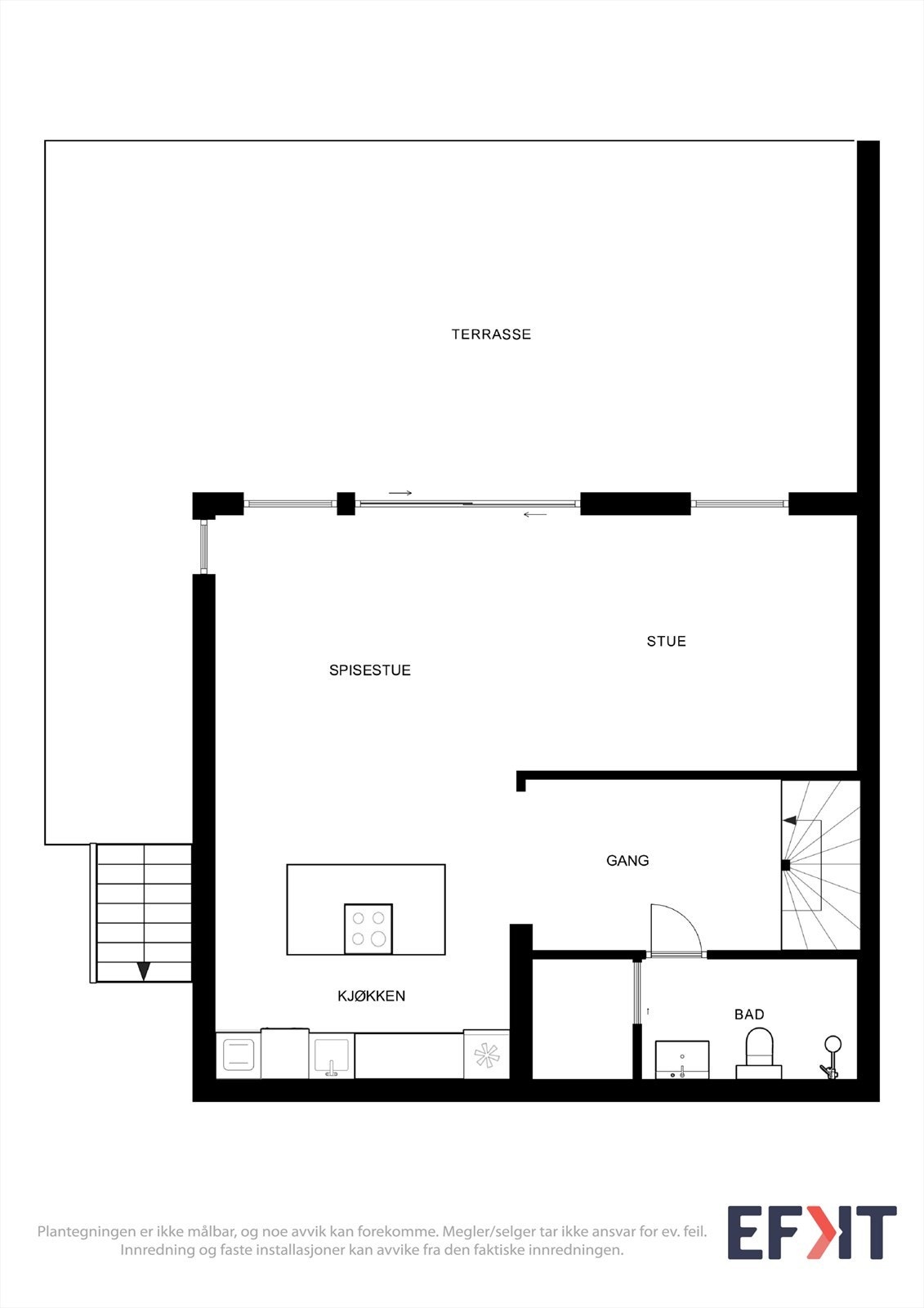
- Internt bruksareal
- 129 m² (BRA-i)
- Bruksareal
- 134 m²
- Eksternt bruksareal
- 5 m² (BRA-e)
- Etasje
- 2
- Byggeår
- 2024
- Energimerking
- B - Rød
- Rom
- 5
- Tomteareal
- 1 015 m² (eiet)
Fasiliteter
Balkong/Terrasse
Barnevennlig
Hage
Kjæledyr tillatt
Ingen gjenboere
Rolig
Sentralt
Utsikt
Bademulighet
Fiskemulighet
Turterreng
Visning
søndag, 18. januar
13:00 – 13:45
Velkommen til visning! Meld deg på ved å trykke "visningspåmelding" i våre boligannonser. Ta gjerne kontakt med megler i forkant av visningen om du har spørsmål. NB. Visning utgår dersom det ikke er noen påmeldte.
VisningspåmeldingOm boligen
Velkommen til denne boligen med godt utsikt i rolige omgivelser, med nærhet til alt på Tofte. Boligen holder en gjennomgående høy standard både utvendig- og innvendig.
Høydepunkter:
- Eksklusiv bolig over to plan med carport
- En ny bolig har lave vedlikeholdskostnader
- Høy standard og pene materialvalg
- Lav dok. avgift
- Tre gode soverom, men med mulighet for fire stk. hvis ønskelig. To bad.
- Store uteområder
- Fantastisk beliggenhet med ungdomsskole og barneskole i nærheten.
- Kort gangavstand til Tofte sentrum og strender
- Fjordutsikt
- Ingen boplikt
- Marka med nydelige turområder rett utenfor døra!
Velkommen til visning! Husk påmelding.
Høydepunkter:
- Eksklusiv bolig over to plan med carport
- En ny bolig har lave vedlikeholdskostnader
- Høy standard og pene materialvalg
- Lav dok. avgift
- Tre gode soverom, men med mulighet for fire stk. hvis ønskelig. To bad.
- Store uteområder
- Fantastisk beliggenhet med ungdomsskole og barneskole i nærheten.
- Kort gangavstand til Tofte sentrum og strender
- Fjordutsikt
- Ingen boplikt
- Marka med nydelige turområder rett utenfor døra!
Velkommen til visning! Husk påmelding.
NB: Knappen for å vise hele beskrivelsen har kun en visuell effekt.
NB: Knappen for å vise hele beskrivelsen har kun en visuell effekt.
Salgsoppgaven beskriver vesentlig og lovpålagt informasjon om eiendommen
Se komplett salgsoppgaveNyttige lenker
Nærområdet
DNB Eiendom AS
Fra hjem til hjem
Annonseinformasjon
| FINN-kode | 405532577 |
|---|---|
| Sist endret | 09. jan. 2026 14:14 |
| Referanse | 520240169 |
Annonsene kan være mangelfulle i forhold til lovpålagt opplysningsplikt. Før bindende avtale inngås oppfordres interessenter til å innhente komplett informasjon fra meglerforetaket, selger eller utleier.




























