Bildegalleri

Velkommen til H B Haraldsens gate 30A.
Solgt
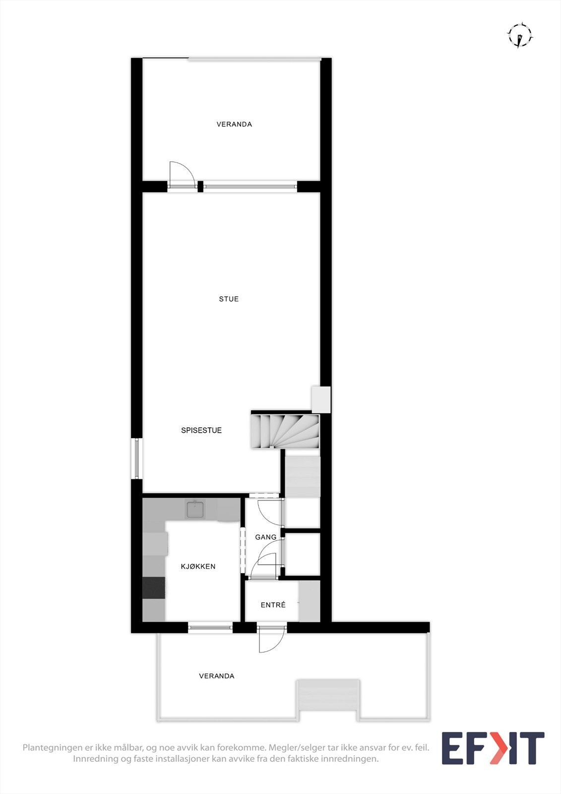
NY PRIS - Enderekkehus i solrike omgivelser m/3 verandaer, liten hage, godt m/lagringsplass og garasje.
Prisantydning2 400 000 kr
Nøkkelinfo
- Boligtype
- Rekkehus
- Eieform
- Andel
- Soverom
- 2
- Internt bruksareal
- 127 m² (BRA-i)
- Bruksareal
- 144 m²
- Eksternt bruksareal
- 17 m² (BRA-e)
- Balkong/Terrasse
- 34 m² (TBA)
- Etasje
- 3
- Byggeår
- 1961
- Energimerking
- F - Oransje
- Rom
- 3
- Tomteareal
- 13 900 m² (eiet)





























