Bildegalleri

Anders Øium v/Eiendomsmegler 1 presenterer Kringsjåvegen 9!
Solgt
Otta
Stor, oppgradert og arkitekttegnet enebolig nær sentrum av Otta | 3 sov, nyere kjøkken, 2 bad & loftstue | Flott utsikt!
Prisantydning2 250 000 kr
Nøkkelinfo
- Boligtype
- Enebolig
- Eieform
- Eier (Selveier)
- Soverom
- 3
- Internt bruksareal
- 199 m² (BRA-i)
- Bruksareal
- 222 m²
- Eksternt bruksareal
- 23 m² (BRA-e)
- Balkong/Terrasse
- 51 m² (TBA)
- Etasje
- 3
- Byggeår
- 1957
- Energimerking
- G - Gul
- Rom
- 4
- Tomteareal
- 1 162 m² (eiet)
Fasiliteter
Balkong/Terrasse
Barnevennlig
Garasje/P-plass
Hage
Kjæledyr tillatt
Offentlig vann/kloakk
Peis/Ildsted
Rolig
Sentralt
Utsikt
Turterreng
Om boligen
EiendomsMegler1 Lillehammer og Gudbrandsdal presenterer Kringsjåvegen 9!
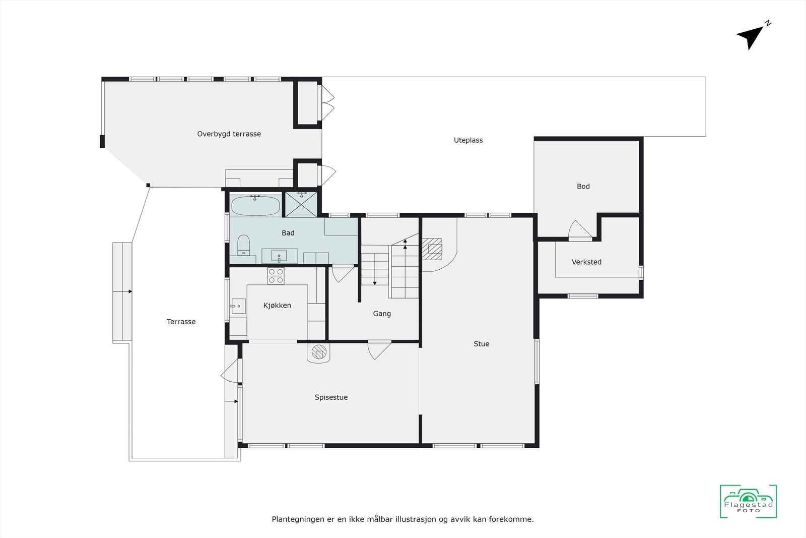
Kringsjåvegen 9 ligger meget sentralt til litt opp fra Otta. Herfra er det gangavstand til både barnehage/skole, dagligvare og ulike servicetilbud. Boligen har en svært innholdsrik planløsning fordelt over 3 plan og inneholder bl.a. en romslig stue, et tidsriktig kjøkken fra 2020, stor spisestue, 3 soverom, 2 bad hvorav ett fra 2020, samt separat vaskerom fra 2024. Loftsetasjen/3. etg. har og gode bruksmuligheter. Flere fine uteplasser og utestue fra 2023, samt hønhus og godt m/lagringsplass. Parkering i inntilliggende garasje og på egen tomt. Det er gjort en rekke oppgraderinger de siste år, og flere innvendige rom er oppgradert. Overflater er holdt i lyse og tidsriktige farger.
Velkommen!
Kringsjåvegen 9 ligger meget sentralt til litt opp fra Otta. Herfra er det gangavstand til både barnehage/skole, dagligvare og ulike servicetilbud. Boligen har en svært innholdsrik planløsning fordelt over 3 plan og inneholder bl.a. en romslig stue, et tidsriktig kjøkken fra 2020, stor spisestue, 3 soverom, 2 bad hvorav ett fra 2020, samt separat vaskerom fra 2024. Loftsetasjen/3. etg. har og gode bruksmuligheter. Flere fine uteplasser og utestue fra 2023, samt hønhus og godt m/lagringsplass. Parkering i inntilliggende garasje og på egen tomt. Det er gjort en rekke oppgraderinger de siste år, og flere innvendige rom er oppgradert. Overflater er holdt i lyse og tidsriktige farger.
Velkommen!
NB: Knappen for å vise hele beskrivelsen har kun en visuell effekt.
NB: Knappen for å vise hele beskrivelsen har kun en visuell effekt.
Salgsoppgaven beskriver vesentlig og lovpålagt informasjon om eiendommen
Se komplett salgsoppgaveNyttige lenker
Nærområdet
EiendomsMegler 1 Lillehammer og Gudbrandsdal - avd Gudbrandsdal
Vi loser deg trygt gjennom hele boligsalget
Prisstatistikk
Kringsjåvegen 9
10 012 klikk
på annonsen
11 306 kr
prisantydning per kvadratmeter
Prisfordeling
Pris per m² ligger 1 694 kr under snittet for eneboliger i Sel.
Grafen viser antall eneboliger solgt i Sel siste året fordelt på pris per m² - totalt 25 eneboliger
Antall boliger
Kvadratmeterpris tilsvarer prisantydning pluss fellesgjeld per kvadratmeter (p-rom eller BRA-i). Prisene i grafen er avrundet til nærmeste 1000 kr.
Lignende boliger til salgs
1 200 000 kr


2 890 000 kr


1 950 000 kr


4 450 000 kr


2 590 000 kr


1 990 000 kr
Annonseinformasjon
| FINN-kode | 405368246 |
|---|---|
| Sist endret | 02. jan. 2026 10:00 |
| Referanse | 1312250039 |
Annonsene kan være mangelfulle i forhold til lovpålagt opplysningsplikt. Før bindende avtale inngås oppfordres interessenter til å innhente komplett informasjon fra meglerforetaket, selger eller utleier.

























































