Bildegalleri

Solgt
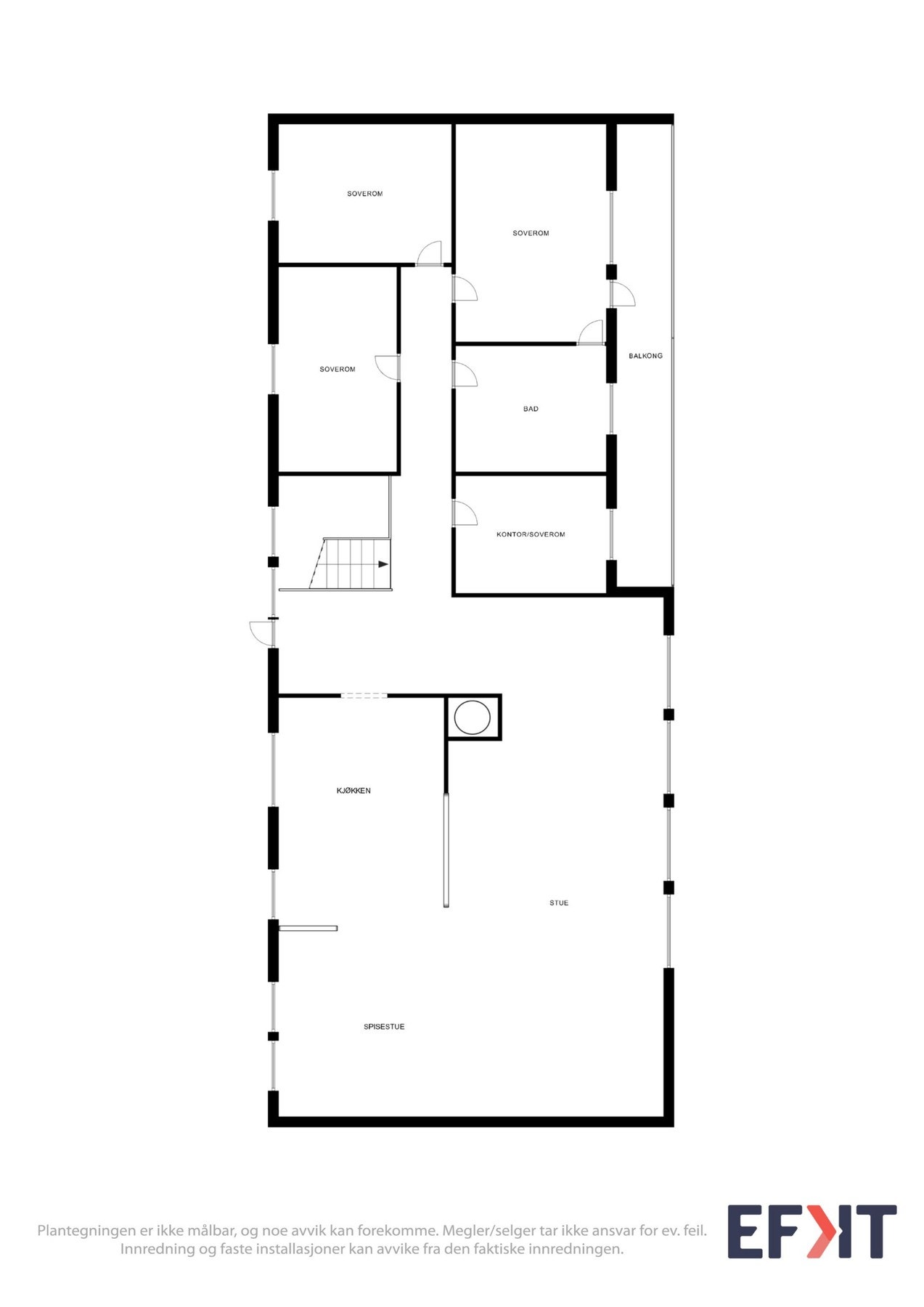
Husvikåsen
Velholdt og innholdsrik enebolig i populære Husvikåsen - Nydelige uteområder - Kjøkken fra 2019 - Dobbelgarasje - Hybel
Prisantydning9 400 000 kr
Nøkkelinfo
- Boligtype
- Enebolig
- Eieform
- Eier (Selveier)
- Soverom
- 5
- Internt bruksareal
- 302 m² (BRA-i)
- Bruksareal
- 302 m²
- Balkong/Terrasse
- 58 m² (TBA)
- Byggeår
- 1969
- Tomteareal
- 912 m² (festet)
- Festeavgift
- 11 562 kr
Fasiliteter
Barnevennlig
Balkong/Terrasse
Garasje/P-plass
Offentlig vann/kloakk
Parkett
Peis/Ildsted
Turterreng
Utsikt
Sentralt
Moderne
Rolig
Bademulighet
Om boligen
Velkommen til en velholdt og innholdsrik enebolig over to plan i populære Husvikåsen. Eiendommen har en flott, usjenert beliggenhet i et koselig nabolag, med gangavstand sjø og strand, samt til Husvik skole. Solrik og pent opparbeidet hage med stor og skjermet terrasse. Det er parkering i dobbelgarasje med elbillader, og i gårdsplass.
Lys og tiltalende stue med eikeparkett fra 2019 og peisovn fra 2016. Kjøkkenet ligger i delvis åpen løsning, har godt med skapplass og integrerte hvitevarer. Kjøkkeninnredning fra Kvik - ny i 2019. På et helfliset bad er det badekar og skittentøysjakt til vaskerom.
Med egen kjellerstue og flere soverom egner boligen seg godt for storfamilien.
Lys og tiltalende stue med eikeparkett fra 2019 og peisovn fra 2016. Kjøkkenet ligger i delvis åpen løsning, har godt med skapplass og integrerte hvitevarer. Kjøkkeninnredning fra Kvik - ny i 2019. På et helfliset bad er det badekar og skittentøysjakt til vaskerom.
Med egen kjellerstue og flere soverom egner boligen seg godt for storfamilien.
NB: Knappen for å vise hele beskrivelsen har kun en visuell effekt.
NB: Knappen for å vise hele beskrivelsen har kun en visuell effekt.
Salgsoppgaven beskriver vesentlig og lovpålagt informasjon om eiendommen
Se komplett salgsoppgaveNyttige lenker
Nærområdet

PrivatMegleren Tønsberg
Kun det beste på dine vegne
Annonseinformasjon
| FINN-kode | 405277701 |
|---|---|
| Sist endret | 16. mars 2026 13:02 |
| Referanse | 13250042 |
Annonsene kan være mangelfulle i forhold til lovpålagt opplysningsplikt. Før bindende avtale inngås oppfordres interessenter til å innhente komplett informasjon fra meglerforetaket, selger eller utleier.



























































