Bildegalleri

Velkommen til Lepsøyvegen 206
Inaktiv
LEPSØY
Nydelig fritidseiendom ved sjøkanten. Herlig utsikt over sjøen med yrende båtliv. Båtplass og usjenert beliggenhet.
Prisantydning4 600 000 kr
- Omkostninger
- 133 590 kr
- Totalpris
- 4 733 590 kr
Nøkkelinfo
- Beliggenhet
- Ved sjøen
- Boligtype
- Hytte
- Eieform
- Eier (Selveier)
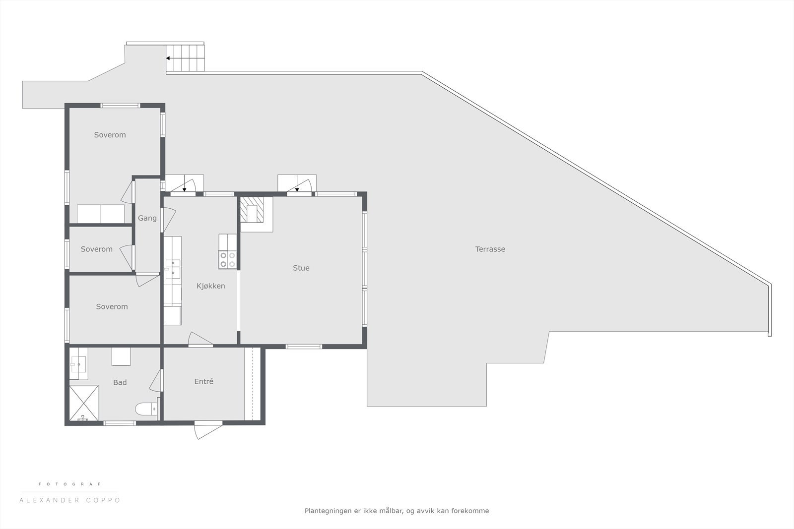
- Internt bruksareal
- 69 m² (BRA-i)
- Bruksareal
- 79 m²
- Eksternt bruksareal
- 10 m² (BRA-e)
- Tomteareal
- 837 m² (eiet)
- Byggeår
- 1970
- Soverom
- 3
- Rom
- 4
- Overtakelse
- Etter avtale med selger. Overtagelsesdato skal fastsettes før aksept av bud. Ved spesielle ønsker skal dette fremkomme som forbehold i evt. bud.
Fasiliteter
Innlagt vann
Balkong/Terrasse
Barnevennlig
Båtplass
Garasje/P-plass
Hage
Peis/Ildsted
Rolig
Utsikt
Bademulighet
Fiskemulighet
Innlagt strøm
Turterreng
Visning
Ta kontakt for å avtale visning.Husk å lese komplett salgsoppgave før visning. Bestill komplett, utskriftsvennlig salgsoppgave.
VisningspåmeldingOm boligen
Eiendommen ligger idyllisk til på Lepsøy med indrefilet av skjærgården rett utenfor hytten, kun 15 min. fra Lagunen. Beliggende i sjøkanten i nydelig bukt med praktfull utsikt over sjøen med yrende båtliv på sommerstid. Her bor en i maritime omgivelser der alt ligger til rette for fritidsaktiviteter i sjøkanten som fisking, krabbefiske, bading og sjøsport. Skjermet og god havn for fortøyning av båt like nedenfor eiendommen. Hytten er opprinnelig bygget i 1970 og er påbygget, ombygget og oppgradert en god del i 2018. Kan nevne røropplegg, elektrisk opplegg, mange vinduer, bygget bad/wc, biovac anlegg, samt de fleste overflater ble oppgradert. Stor og solrik treterrasse med glassrekkverk som kan møbleres i flere soner og fin naturtomt rundt eiendommen. God adkomst til sjø med båtplass .
NB: Knappen for å vise hele beskrivelsen har kun en visuell effekt.
NB: Knappen for å vise hele beskrivelsen har kun en visuell effekt.
Salgsoppgaven beskriver vesentlig og lovpålagt informasjon om eiendommen
Se komplett salgsoppgaveNyttige lenker
Nærområdet
Eiendomsmegler Norge Fana
Best der du bor
Annonseinformasjon
| FINN-kode | 404662681 |
|---|---|
| Sist endret | 06. juni 2025 12:13 |
| Referanse | 14250023 |
Annonsene kan være mangelfulle i forhold til lovpålagt opplysningsplikt. Før bindende avtale inngås oppfordres interessenter til å innhente komplett informasjon fra meglerforetaket, selger eller utleier.





































