Bildegalleri

Huset har en romslig uteplass med både terrasse og hage.Velkommen på visning til Bøkeveien 7A - Ta kontakt med Lars Espen Storebø på tlf. 99161972 for avtale om privatvisning.
Stor familiebolig innerst i blindvei. Stor kjeller og integrert garasje - Moderniseringsbehov
Nøkkelinfo
- Boligtype
- Enebolig
- Eieform
- Eier (Selveier)
- Soverom
- 4
- Internt bruksareal
- 205 m² (BRA-i)
- Bruksareal
- 237 m²
- Eksternt bruksareal
- 32 m² (BRA-e)
- Balkong/Terrasse
- 30 m² (TBA)
- Byggeår
- 1924
- Energimerking
- F - Oransje
- Rom
- 5
- Tomteareal
- 942 m² (eiet)
Fasiliteter
Visning
Om boligen
Velkommen på visning til Bøkeveien 7A.
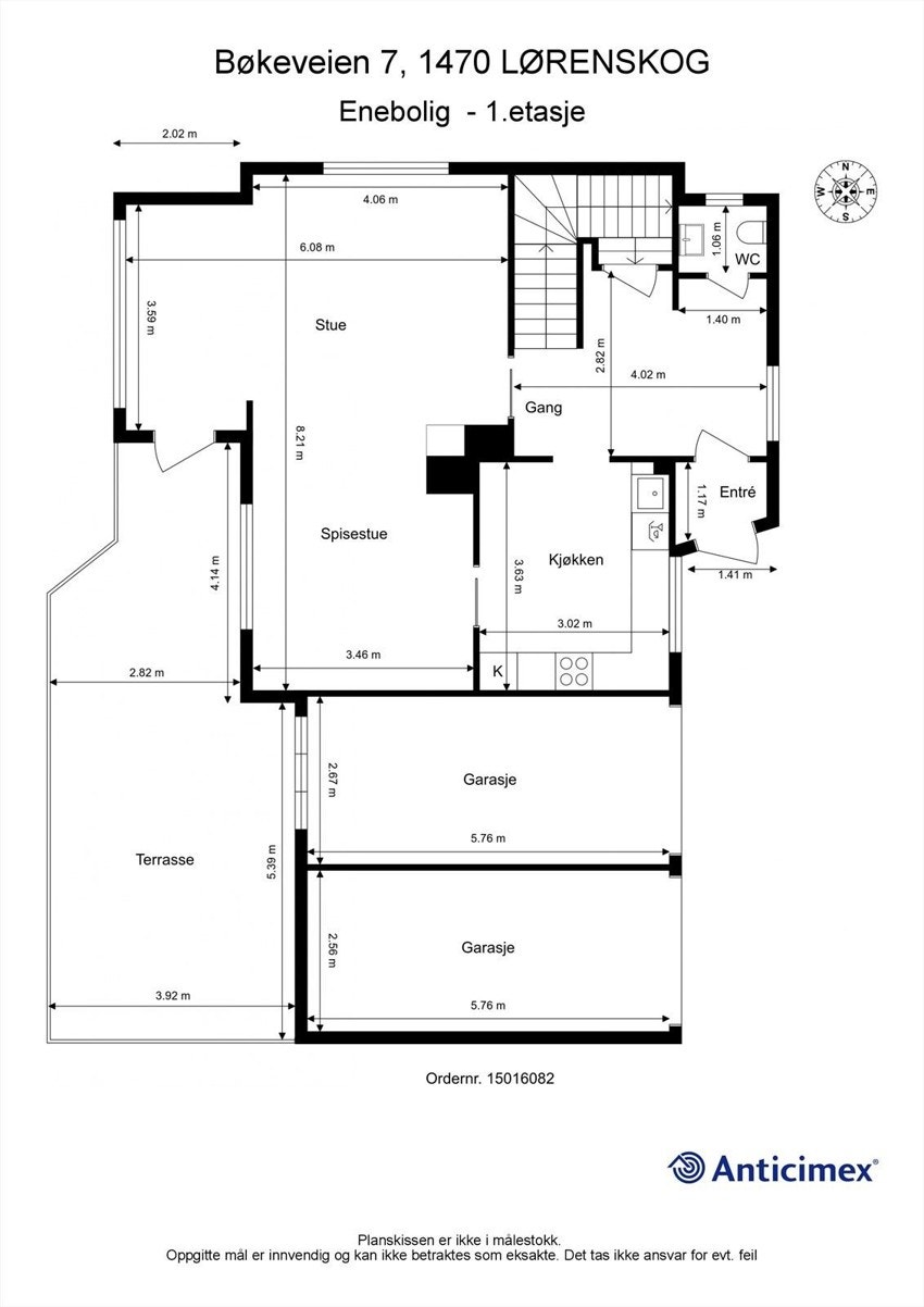
Salgsobjektet er en romslig enebolig med fire gode soverom og bad i 2. etg. og en praktisk og fin 1. etg. med stor stue, kjøkken, gang, og wc. I kjelleren er det mange gode muligheter til å innrede etter behov i tillegg til vaskerommet i etasjen. Boligen ligger i et meget populært område på Kjenn med kort vei til skoler, buss, tog og butikker. Det er godt med parkeringsplasser og en fin uteplass på eiendommen.
Boligen har behov for oppussing/modernisering. Her kan virkelig drømmehjemmet skapes. Eiendommen er seksjonert og det skal bygges en enebolig på andre siden av huset.
Det er mulighet for å kjøpe tomten i tillegg til huset dersom det er ønskelig. Tomten har et stort utviklingspotensiale og det foreligger en godkjent rammetilatelse.
Salgsoppgaven beskriver vesentlig og lovpålagt informasjon om eiendommen
Se komplett salgsoppgaveNyttige lenker
Nærområdet

PrivatMegleren Lillestrøm
Annonseinformasjon
| FINN-kode | 403854367 |
|---|---|
| Sist endret | 28. sep. 2025 02:14 |
| Referanse | 24250177 |
Annonsene kan være mangelfulle i forhold til lovpålagt opplysningsplikt. Før bindende avtale inngås oppfordres interessenter til å innhente komplett informasjon fra meglerforetaket, selger eller utleier.




























