Bildegalleri

Eiendomsmegler1 Vestby/Son v/ Elise Habberstad har den glede av å presentere Elveveien 20 i Son.
Son
NY PRIS!! Enebolig med brygge, dobbelgarasje og stor tomt - sjelden kombinasjon av plass, beliggenhet og sjøliv
Prisantydning9 970 000 kr
Nøkkelinfo
- Boligtype
- Enebolig
- Eieform
- Eier (Selveier)
- Soverom
- 5
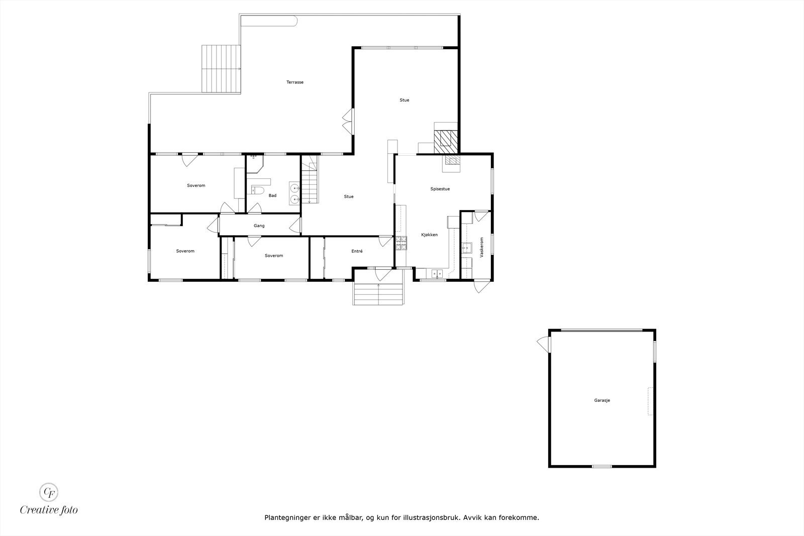
- Internt bruksareal
- 322 m² (BRA-i)
- Bruksareal
- 365 m²
- Eksternt bruksareal
- 43 m² (BRA-e)
- Balkong/Terrasse
- 77 m² (TBA)
- Etasje
- 2
- Byggeår
- 1975
- Energimerking
- G - Mørkegrønn
- Rom
- 5
- Renovert år
- 2021
- Tomteareal
- 2 579 m² (eiet)
Fasiliteter
Balkong/Terrasse
Barnevennlig
Bredbåndstilknytning
Båtplass
Garasje/P-plass
Kabel-TV
Offentlig vann/kloakk
Parkett
Peis/Ildsted
Rolig
Sentralt
Utsikt
Turterreng
Om boligen
Velkommen til Elveveien 20 - en romslig og sjarmerende enebolig på 365 m², beliggende på en solrik og usjenert selveiertomt på hele 2.579 m².
Eiendommen byr på en unik kombinasjon av privatliv, natur og sjøliv - med egen brygge, båtplasser og direkte adkomst til Oslofjorden, bare 800 meter fra Son sentrum. Fra hagen kan du legge ut med båt, kajakk eller SUP og utforske viker, holmer og øyer langs kysten - en sjelden frihet i et boligområde så nært sentrum. Boligen ligger fredelig til i en blindvei, med sydvestvendt solrik tomt. Her får du rikelig med plass både ute og inne, og mange muligheter for storfamilien, generasjonsbolig eller utleie.
Eiendommens tekniske tomte- og bygningsverdi er vurdert til 11.1 millioner kroner.
En unik eiendom der sjøliv, sol og sjel møtes.
Eiendommen byr på en unik kombinasjon av privatliv, natur og sjøliv - med egen brygge, båtplasser og direkte adkomst til Oslofjorden, bare 800 meter fra Son sentrum. Fra hagen kan du legge ut med båt, kajakk eller SUP og utforske viker, holmer og øyer langs kysten - en sjelden frihet i et boligområde så nært sentrum. Boligen ligger fredelig til i en blindvei, med sydvestvendt solrik tomt. Her får du rikelig med plass både ute og inne, og mange muligheter for storfamilien, generasjonsbolig eller utleie.
Eiendommens tekniske tomte- og bygningsverdi er vurdert til 11.1 millioner kroner.
En unik eiendom der sjøliv, sol og sjel møtes.
NB: Knappen for å vise hele beskrivelsen har kun en visuell effekt.
NB: Knappen for å vise hele beskrivelsen har kun en visuell effekt.
Salgsoppgaven beskriver vesentlig og lovpålagt informasjon om eiendommen
Se komplett salgsoppgaveNyttige lenker
Nærområdet
EiendomsMegler 1 Vestby/Son
Annonseinformasjon
| FINN-kode | 403447798 |
|---|---|
| Sist endret | 30. jan. 2026 11:41 |
| Referanse | 5120250003 |
Annonsene kan være mangelfulle i forhold til lovpålagt opplysningsplikt. Før bindende avtale inngås oppfordres interessenter til å innhente komplett informasjon fra meglerforetaket, selger eller utleier.


































































