Bildegalleri

Barry Khalidi v/Nordvik har gleden av å presentere flotte Trelastgata 27!
Solgt
Barcode
Nydelig 3-roms fra 2016 | God planløsning | To balkonger -23 m² | V.vann, fyring og internett inkl. | Felles takterrasse
Prisantydning7 390 000 kr
Nøkkelinfo
- Boligtype
- Leilighet
- Eieform
- Eier (Selveier)
- Soverom
- 2
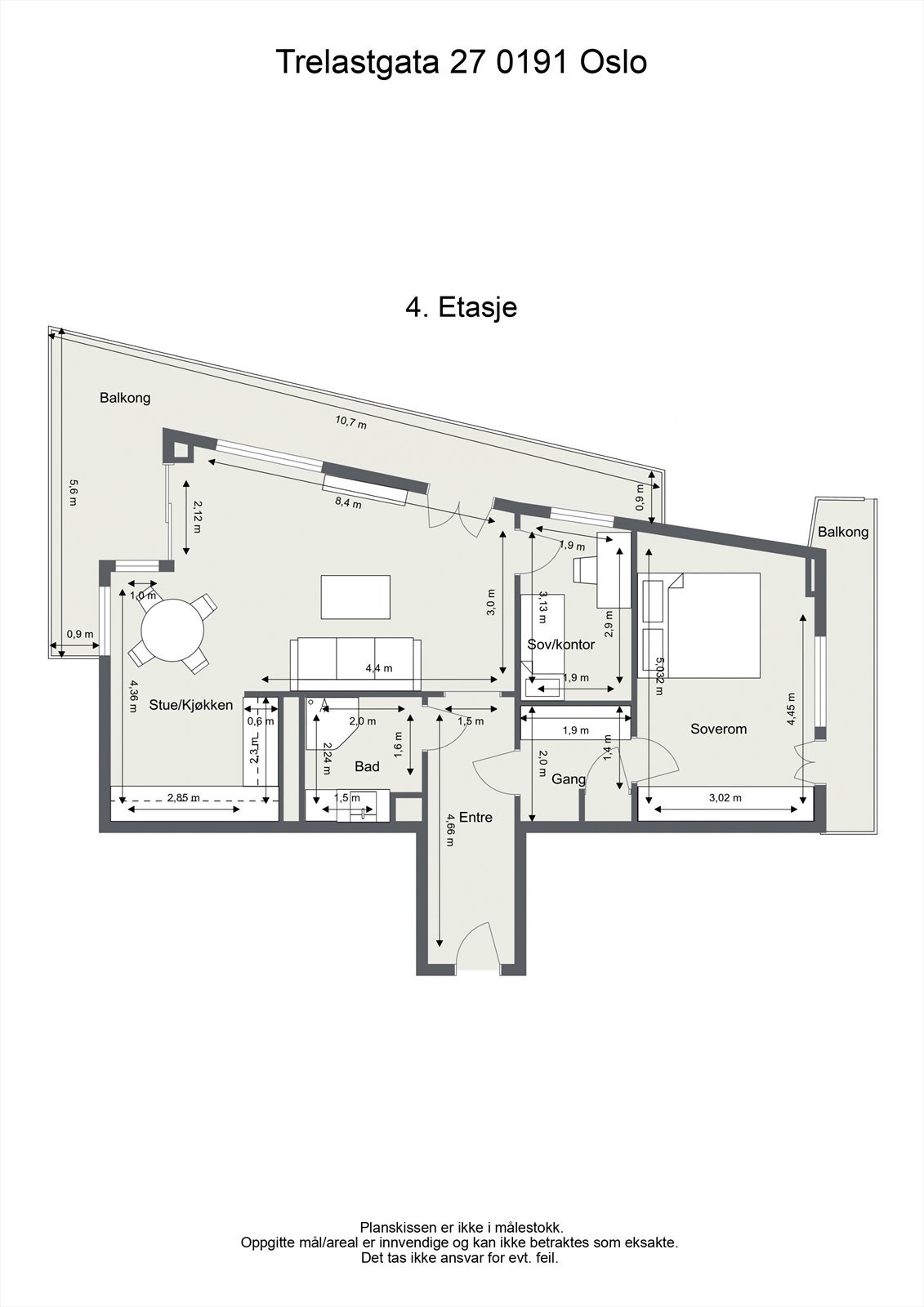
- Internt bruksareal
- 68 m² (BRA-i)
- Bruksareal
- 73 m²
- Eksternt bruksareal
- 5 m² (BRA-e)
- Balkong/Terrasse
- 23 m² (TBA)
- Etasje
- 4
- Byggeår
- 2016
- Energimerking
- C - Mørkegrønn
- Rom
- 3
- Tomteareal
- 451 m² (eiet)
Fasiliteter
Takterrasse
Balkong/Terrasse
Barnevennlig
Bredbåndstilknytning
Heis
Kjæledyr tillatt
Kabel-TV
Offentlig vann/kloakk
Parkett
Sentralt
Utsikt
Vaktmester-/vektertjeneste
Balansert ventilasjon
Om boligen
Endeleilighet midt i ikoniske Barcode med utsikt og storbyfølelse
Bygg fra 2016 med store vindusflater, gjennomtenkt planløsning og byens puls rett utenfor døren. Leiligheten ligger i det attraktive prosjektet Cliffhanger, kjent for sin arkitektur og høye bokvalitet. Her får du 2 balkonger på 18 m² og 5 m², en lys stue, et lekkert kjøkken, to soverom, innbydende entré og romslig, flislagt bad. Nyere bygg av høy standard med balansert ventilasjon, godt inneklima og fibernett. Sameiet er veldrevet og har fasiliteter som felles takterrasse og eget treningsrom.
- Kun TG0 og TG1
- 2 balkonger: 18 og 5 m²
- 2 romslige soverom
- Walk-in i tilknytning til soverom
- Balansert ventilasjon, heis
- Mulighet for kjøp av garasjeplass*
- Felles takterrasse og treningsrom
Bygg fra 2016 med store vindusflater, gjennomtenkt planløsning og byens puls rett utenfor døren. Leiligheten ligger i det attraktive prosjektet Cliffhanger, kjent for sin arkitektur og høye bokvalitet. Her får du 2 balkonger på 18 m² og 5 m², en lys stue, et lekkert kjøkken, to soverom, innbydende entré og romslig, flislagt bad. Nyere bygg av høy standard med balansert ventilasjon, godt inneklima og fibernett. Sameiet er veldrevet og har fasiliteter som felles takterrasse og eget treningsrom.
- Kun TG0 og TG1
- 2 balkonger: 18 og 5 m²
- 2 romslige soverom
- Walk-in i tilknytning til soverom
- Balansert ventilasjon, heis
- Mulighet for kjøp av garasjeplass*
- Felles takterrasse og treningsrom
NB: Knappen for å vise hele beskrivelsen har kun en visuell effekt.
NB: Knappen for å vise hele beskrivelsen har kun en visuell effekt.
Salgsoppgaven beskriver vesentlig og lovpålagt informasjon om eiendommen
Se komplett salgsoppgaveNyttige lenker
Nærområdet
Nordvik Bjørvika
Vi vet hva det er verdt
Annonseinformasjon
| FINN-kode | 403144082 |
|---|---|
| Sist endret | 13. nov. 2025 11:14 |
| Referanse | 34-0090/24 |
Annonsene kan være mangelfulle i forhold til lovpålagt opplysningsplikt. Før bindende avtale inngås oppfordres interessenter til å innhente komplett informasjon fra meglerforetaket, selger eller utleier.







































