Bildegalleri

EIE eiendomsmegling ved Eskil Wahl har gleden av å presentere Thomas Hirsch gate 3!
Solgt
Lademoen
Lys og innbydende 2-roms selveier over to plan m/ solrik veranda, parkering og lave felleskostnad - Sentralt på Lademoen
Prisantydning2 850 000 kr
Nøkkelinfo
- Boligtype
- Leilighet
- Eieform
- Eier (Selveier)
- Soverom
- 1
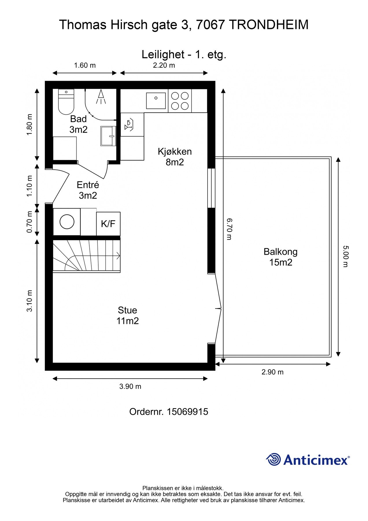
- Internt bruksareal
- 42 m² (BRA-i)
- Bruksareal
- 42 m²
- Balkong/Terrasse
- 15 m² (TBA)
- Etasje
- 1
- Byggeår
- 1954
- Energimerking
- G - Rød
- Rom
- 2
- Tomteareal
- 1 239 m² (eiet)
Fasiliteter
Barnevennlig
Balkong/Terrasse
Garasje/P-plass
Offentlig vann/kloakk
Sentralt
Rolig
Om boligen
EIE eiendomsmegling ved Eskil Wahl har gleden av å presentere Thomas Hirsch gate 3 - en lys, effektiv og gjennomtenkt 2-roms selveierleilighet over to plan, med god romfølelse og stor sørvestvendt veranda.
Her bor du i en rolig gate på populære Lademoen, med kort vei til sentrum, NTNU, matbutikker, grøntområder og kollektivtransport. Det medfølger parkeringsplass, som er et sjeldent gode i området. Nabolaget er i positiv utvikling, hvorav Innherredsveien ombygges til miljøgate, som vil tilrettelegge for myke trafikanter, mindre gjennomgangstrafikk og økt bokvalitet i årene som kommer.
Merk dette ved boligen:
- Selveierleilighet over to plan med effektiv arealutnyttelse
- Stor, sørvestvendt veranda med gode solforhold
- Egen parkeringsplass
- Svært lav felleskostnad
- Sentral beliggenhet - gangavstand til sentrum, NTNU og BI
- Gode kollektivforbindelser og fine gang-/sykkelstier i nærområdet
Velkommen til visning!
Her bor du i en rolig gate på populære Lademoen, med kort vei til sentrum, NTNU, matbutikker, grøntområder og kollektivtransport. Det medfølger parkeringsplass, som er et sjeldent gode i området. Nabolaget er i positiv utvikling, hvorav Innherredsveien ombygges til miljøgate, som vil tilrettelegge for myke trafikanter, mindre gjennomgangstrafikk og økt bokvalitet i årene som kommer.
Merk dette ved boligen:
- Selveierleilighet over to plan med effektiv arealutnyttelse
- Stor, sørvestvendt veranda med gode solforhold
- Egen parkeringsplass
- Svært lav felleskostnad
- Sentral beliggenhet - gangavstand til sentrum, NTNU og BI
- Gode kollektivforbindelser og fine gang-/sykkelstier i nærområdet
Velkommen til visning!
NB: Knappen for å vise hele beskrivelsen har kun en visuell effekt.
NB: Knappen for å vise hele beskrivelsen har kun en visuell effekt.
Salgsoppgaven beskriver vesentlig og lovpålagt informasjon om eiendommen
Se komplett salgsoppgaveNærområdet
EIE eiendomsmegling Heimdal
Annonsene kan være mangelfulle i forhold til lovpålagt opplysningsplikt. Før bindende avtale inngås oppfordres interessenter til å innhente komplett informasjon fra meglerforetaket, selger eller utleier.






















