Bildegalleri

Velkommen til Lille Kirkholmen 10!
Inaktiv
Idyllisk fritidseiendom ved bryggekanten - Fantastisk beliggenhet, 2 båtplasser og 4 soverom!
Prisantydning4 090 000 kr
- Omkostninger
- 103 340 kr
- Totalpris
- 4 193 340 kr
- Kommunale avg.
- 25 315 kr per år
- Eiendomsskatt
- 9 000 kr per år
- Formuesverdi
- 1 018 990 kr
Nøkkelinfo
- Boligtype
- Hytte
- Eieform
- Eier (Selveier)
- Internt bruksareal
- 112 m² (BRA-i)
- Bruksareal
- 117 m²
- Eksternt bruksareal
- 5 m² (BRA-e)
- Balkong/Terrasse
- 38 m² (TBA)
- Tomteareal
- 130 m² (eiet)
- Byggeår
- 2000
- Soverom
- 4
- Rom
- 5
- Energimerking
- D - Rød
Fasiliteter
Balkong/Terrasse
Fiskemulighet
Offentlig vann/kloakk
Utsikt
Båtplass
Innlagt strøm
Innlagt vann
Visning
Ta kontakt for å avtale visning.Husk å lese komplett salgsoppgave før visning. Bestill komplett, utskriftsvennlig salgsoppgave.
VisningspåmeldingOm boligen
Velkommen til Lille Kirkeholmen 10 - en idyllisk fritidseiendom med unik beliggenhet helt i vannkanten.
Her får du blant annet 4 soverom, et fantastisk uteområde med svært gode solforhold, flott beliggenhet og 2 båtplasser.
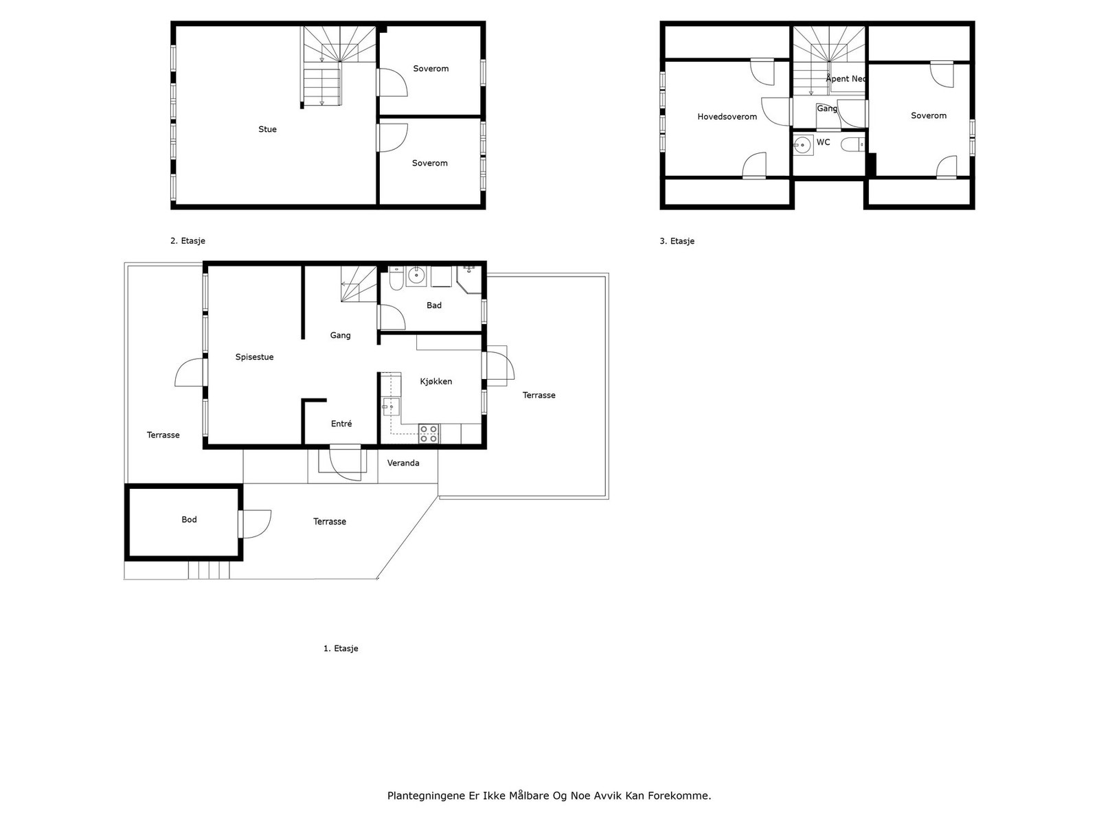
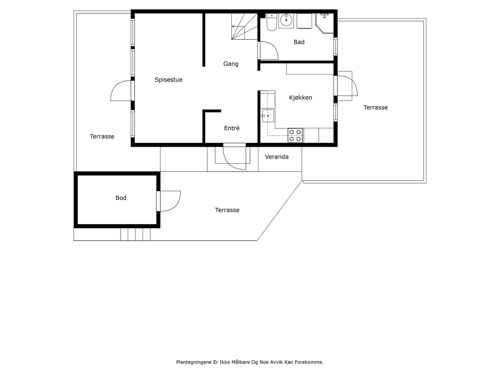
Hytta går over tre plan, som inneholder:
1.Etasje: Gang, Kjøkken, Stue, Bad/Vaskerom
2.Etasje: Stue, 2 Soverom
3.Etasje: Gang, 2 Soverom, Toalettrom
Bod.
Øya byr på et aktivt og sosialt miljø med sandstrender, lekeplasser, fotball- og volleyballbaner - et perfekt sted for både små og store. Med kort båttur til Kragerø sentrum og umiddelbar tilgang til den vakre skjærgården, ligger alt til rette for uforglemmelige sommerdager.
Velkommen på visning!
Her får du blant annet 4 soverom, et fantastisk uteområde med svært gode solforhold, flott beliggenhet og 2 båtplasser.
Hytta går over tre plan, som inneholder:
1.Etasje: Gang, Kjøkken, Stue, Bad/Vaskerom
2.Etasje: Stue, 2 Soverom
3.Etasje: Gang, 2 Soverom, Toalettrom
Bod.
Øya byr på et aktivt og sosialt miljø med sandstrender, lekeplasser, fotball- og volleyballbaner - et perfekt sted for både små og store. Med kort båttur til Kragerø sentrum og umiddelbar tilgang til den vakre skjærgården, ligger alt til rette for uforglemmelige sommerdager.
Velkommen på visning!
NB: Knappen for å vise hele beskrivelsen har kun en visuell effekt.
NB: Knappen for å vise hele beskrivelsen har kun en visuell effekt.
Salgsoppgaven beskriver vesentlig og lovpålagt informasjon om eiendommen
Se komplett salgsoppgaveNyttige lenker
Nærområdet
Privatmegleren Kragerø
Kun det beste på dine vegne
Annonseinformasjon
| FINN-kode | 403124330 |
|---|---|
| Sist endret | 05. juli 2025 06:48 |
| Referanse | 322250046 |
Annonsene kan være mangelfulle i forhold til lovpålagt opplysningsplikt. Før bindende avtale inngås oppfordres interessenter til å innhente komplett informasjon fra meglerforetaket, selger eller utleier.



















































