Bildegalleri

Et idyllisk sted hvor store og små vil stortrives.
Høvåg / Ulvøysund
Idyllisk, solrik og familievennlig fritidseiendom | Stor tomt og strandlinje | Sjøbu/anneks | Strand og dypvannsbrygge.
Prisantydning10 900 000 kr
- Omkostninger
- 293 490 kr
- Totalpris
- 11 193 490 kr
- Kommunale avg.
- 8 163 kr per år
- Eiendomsskatt
- 13 898 kr per år
Nøkkelinfo
- Beliggenhet
- Ved sjøen
- Boligtype
- Hytte
- Eieform
- Selveier
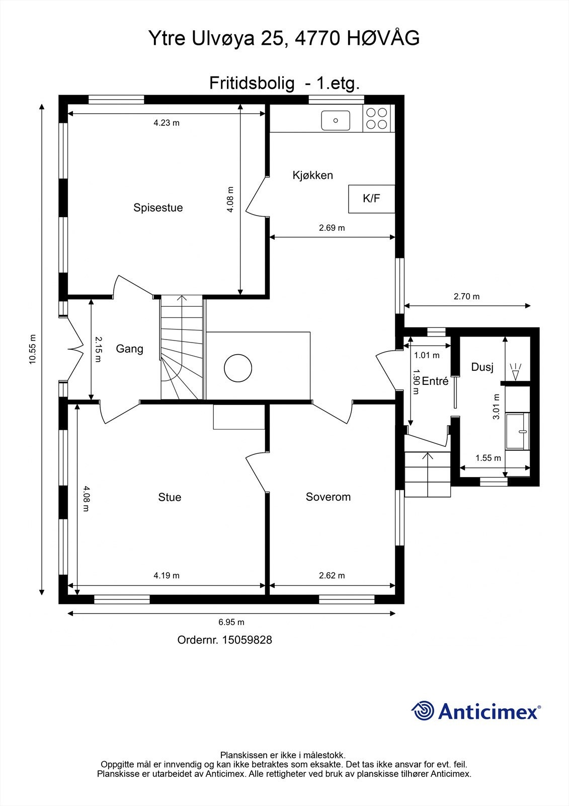
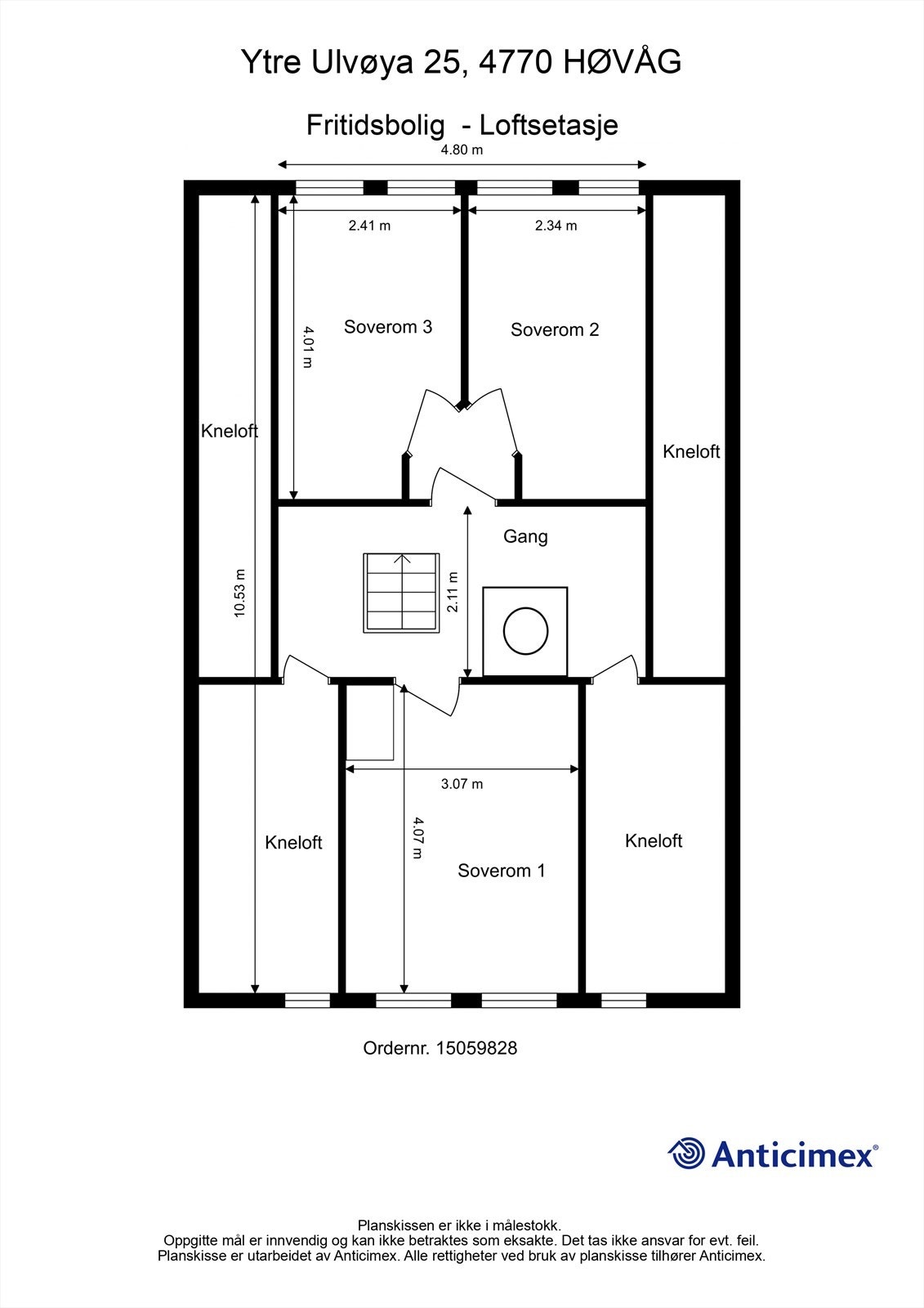
- Internt bruksareal
- 118 m² (BRA-i)
- Bruksareal
- 153 m²
- Eksternt bruksareal
- 35 m² (BRA-e)
- Balkong/Terrasse
- 28 m² (TBA)
- Tomteareal
- 3 929 m² (eiet)
- Byggeår
- 1852
- Soverom
- 4
- Energimerking
Fasiliteter
Innlagt vann
Barnevennlig
Båtplass
Hage
Rolig
Utsikt
Bademulighet
Fiskemulighet
Innlagt strøm
Strandlinje
Turterreng
Visning
lørdag, 25. april
00:00 – 23:59
Ta kontakt med megler for avtale om privatvisning.
Ønsker du kun å bli holdt orientert, kan du fra eiendommens hjemmeside få varsel om solgtpris, eller kontakte megler.
For å delta på visning, ber vi om at du melder deg på, da man er avhengig av båt for å komme til øya. Da sikrer vi at du får nødvendig informasjon og at det er satt av tilstrekkelig med tid. Kontakt megler dersom annet tidspunkt ønskes. Husk å lese salgsoppgaven før visningen, så du stiller forberedt. NB. Visning utgår dersom det ikke er noen påmeldte innen kl. 15.00 dagen før. Ønsker du kun å bli holdt orientert, kan du fra eiendommens hjemmeside få varsel om solgtpris, eller kontakte megler.
VisningspåmeldingOm boligen
Velkommen til denne fantastiske eiendommen i Ulvøysund- presentert av Krogsveen.
Eiendommen ligger solrikt til med en tilbaketrukket beliggenhet, på en høyde som gir god utsikt og samtidig er usjenert. Ligger ved inngangen til idylliske Ulvøysund som var gammel uthavn i seilskutetiden.
Det er flere usjenerte og solrike sitteplasser på tomten hvor du vil finne et lunt sted.
Huset er svært sjarmerende og godt vedlikeholdt hvor flere av rommene bærer stilmessig preg av byggeåret 1852. Med lang strandlinje er det både dypvannsbrygge og god bryggeplass i le ved annekset. Her er det også ypperlig badeplass for barn. Det medfølger biloppstillingsplasser (2 stk på rad) kort avstand fra brygga på fastland.
Husk å melde deg på til visning i god tid.
Eiendommen ligger solrikt til med en tilbaketrukket beliggenhet, på en høyde som gir god utsikt og samtidig er usjenert. Ligger ved inngangen til idylliske Ulvøysund som var gammel uthavn i seilskutetiden.
Det er flere usjenerte og solrike sitteplasser på tomten hvor du vil finne et lunt sted.
Huset er svært sjarmerende og godt vedlikeholdt hvor flere av rommene bærer stilmessig preg av byggeåret 1852. Med lang strandlinje er det både dypvannsbrygge og god bryggeplass i le ved annekset. Her er det også ypperlig badeplass for barn. Det medfølger biloppstillingsplasser (2 stk på rad) kort avstand fra brygga på fastland.
Husk å melde deg på til visning i god tid.
NB: Knappen for å vise hele beskrivelsen har kun en visuell effekt.
NB: Knappen for å vise hele beskrivelsen har kun en visuell effekt.
Salgsoppgaven beskriver vesentlig og lovpålagt informasjon om eiendommen
Se komplett salgsoppgaveNyttige lenker
Nærområdet
Krogsveen Kristiansand
Verdien av en god megler.
Annonseinformasjon
| FINN-kode | 402850948 |
|---|---|
| Sist endret | 26. mars 2026 14:03 |
| Referanse | KR31.24235 |
Annonsene kan være mangelfulle i forhold til lovpålagt opplysningsplikt. Før bindende avtale inngås oppfordres interessenter til å innhente komplett informasjon fra meglerforetaket, selger eller utleier.

































































