Bildegalleri

Velkommen til Lijordveien 26A v/Håkon Sæther i PrivatMegleren Bærum
Solgt
EIKSMARKA
Hyggelig enderekkehus over tre plan - Flotte uteplasser i nydelig, solrik hage - 3 soverom - 2 bad - Nyere garasje m/EL
Prisantydning10 500 000 kr
Nøkkelinfo
- Boligtype
- Rekkehus
- Eieform
- Eier (Selveier)
- Soverom
- 3
- Internt bruksareal
- 141 m² (BRA-i)
- Bruksareal
- 141 m²
- Balkong/Terrasse
- 40 m² (TBA)
- Byggeår
- 1954
- Energimerking
- F - Oransje
- Tomteareal
- 61 500 m² (eiet)
Fasiliteter
Barnevennlig
Balkong/Terrasse
Garasje/P-plass
Kabel-TV
Offentlig vann/kloakk
Parkett
Peis/Ildsted
Sentralt
Bredbåndstilknytning
Moderne
Om boligen
Trivelig, påbygd enderekkehus, beliggende i et rolig og barnevennlig område. Boligen har en flott uteplass med pergola på terrasseområdet og en sømløs overgang til den koselige hagen - et perfekt sted for avslapning og sosiale sammenkomster.
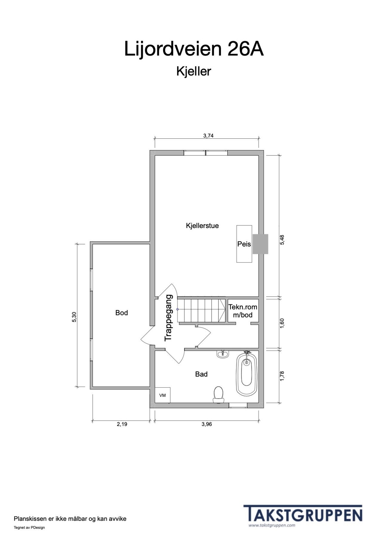
Boligen strekker seg over tre etasjer og byr på tre soverom. Det er to bad og en romslig kjelleretasje, innredet med peis og benyttet som kjellerstue.
Her får du en bolig som kombinerer god plass, funksjonalitet og en herlig uteplass.
Høydepunkter:
- Enderekkehus med stor hage
- Nyere garasje (m/EL) i rekke
- God lagringsplass inne og ute
- 4-5 min gange til Østerås t-bane
- 4-5 min gange til Eikeli barneskole
- Svært hyggelig rekkehussameie med gode naboforhold
Boligen strekker seg over tre etasjer og byr på tre soverom. Det er to bad og en romslig kjelleretasje, innredet med peis og benyttet som kjellerstue.
Her får du en bolig som kombinerer god plass, funksjonalitet og en herlig uteplass.
Høydepunkter:
- Enderekkehus med stor hage
- Nyere garasje (m/EL) i rekke
- God lagringsplass inne og ute
- 4-5 min gange til Østerås t-bane
- 4-5 min gange til Eikeli barneskole
- Svært hyggelig rekkehussameie med gode naboforhold
NB: Knappen for å vise hele beskrivelsen har kun en visuell effekt.
NB: Knappen for å vise hele beskrivelsen har kun en visuell effekt.
Salgsoppgaven beskriver vesentlig og lovpålagt informasjon om eiendommen
Se komplett salgsoppgaveNyttige lenker
Nærområdet
PrivatMegleren Bærum
Kun det beste på dine vegne
Annonsene kan være mangelfulle i forhold til lovpålagt opplysningsplikt. Før bindende avtale inngås oppfordres interessenter til å innhente komplett informasjon fra meglerforetaket, selger eller utleier.













































