Bildegalleri

Velkommen til Bjørnhuodden 86!
Solgt
Løkkevika
Vestvendt hytte og anneks | Båtplass | Parkering på tomten | Solrike uteplasser med utsikt over Skjebergkilen
Prisantydning5 490 000 kr
- Omkostninger
- 138 340 kr
- Totalpris
- 5 628 340 kr
- Kommunale avg.
- 14 852 kr per år
Nøkkelinfo
- Beliggenhet
- Ved sjøen
- Boligtype
- Hytte
- Eieform
- Eier (Selveier)
- Internt bruksareal
- 49 m² (BRA-i)
- Bruksareal
- 49 m²
- Eksternt bruksareal
- 26 m² (BRA-e)
- Balkong/Terrasse
- 91 m² (TBA)
- Tomteareal
- 1 084 m² (festet)
- Festeavgift
- 1 045 kr
- Byggeår
- 1947
- Soverom
- 2
- Rom
- 3
- Energimerking
- G - Rød
Fasiliteter
Balkong/Terrasse
Garasje/P-plass
Offentlig vann/kloakk
Peis/Ildsted
Turterreng
Utsikt
Bilvei frem
Båtplass
Innlagt strøm
Innlagt vann
Om boligen
Dette er en velholdt hytte i Løkkevika med flott utsikt til Singlefjorden og Hvalerskjærgården. Hytta har svært gode solforhold og ligger ca. 400 meter fra en flott badestrand med felles bryggeanlegg og båtplass. Området byr på vakker skjærgård, turløyper og Kyststien.
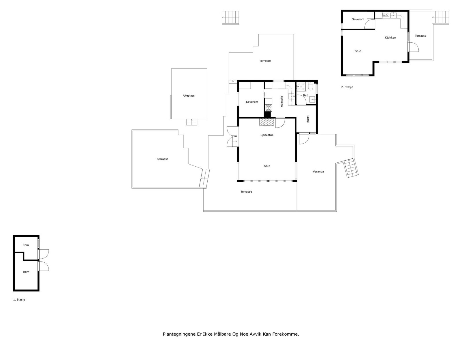
Hovedhytta har et bruksareal på 49 kvm, mens annekset er på 26 kvm. Hytta er oppgradert med nytt tak (1995), kjøkken (1998), nye vinduer, isolasjon og kledning (1999-2000) samt innlagt vann og kloakk (2010).
Stor terrasse på 91 kvm gir gode sol- og utsiktsforhold. Annekset har stue, kjøkken og soverom med balkong mot Skjebergkilen. Her får du en idyllisk hytte med både sjø, natur og kort vei til byer og handel.
Hovedhytta har et bruksareal på 49 kvm, mens annekset er på 26 kvm. Hytta er oppgradert med nytt tak (1995), kjøkken (1998), nye vinduer, isolasjon og kledning (1999-2000) samt innlagt vann og kloakk (2010).
Stor terrasse på 91 kvm gir gode sol- og utsiktsforhold. Annekset har stue, kjøkken og soverom med balkong mot Skjebergkilen. Her får du en idyllisk hytte med både sjø, natur og kort vei til byer og handel.
NB: Knappen for å vise hele beskrivelsen har kun en visuell effekt.
NB: Knappen for å vise hele beskrivelsen har kun en visuell effekt.
Salgsoppgaven beskriver vesentlig og lovpålagt informasjon om eiendommen
Se komplett salgsoppgaveNyttige lenker
Nærområdet

PrivatMegleren Sarpsborg
Kun det beste på dine vegne
Annonseinformasjon
| FINN-kode | 402453202 |
|---|---|
| Sist endret | 30. mai 2025 12:59 |
| Referanse | 193250049 |
Annonsene kan være mangelfulle i forhold til lovpålagt opplysningsplikt. Før bindende avtale inngås oppfordres interessenter til å innhente komplett informasjon fra meglerforetaket, selger eller utleier.










































