Bildegalleri

Inaktiv
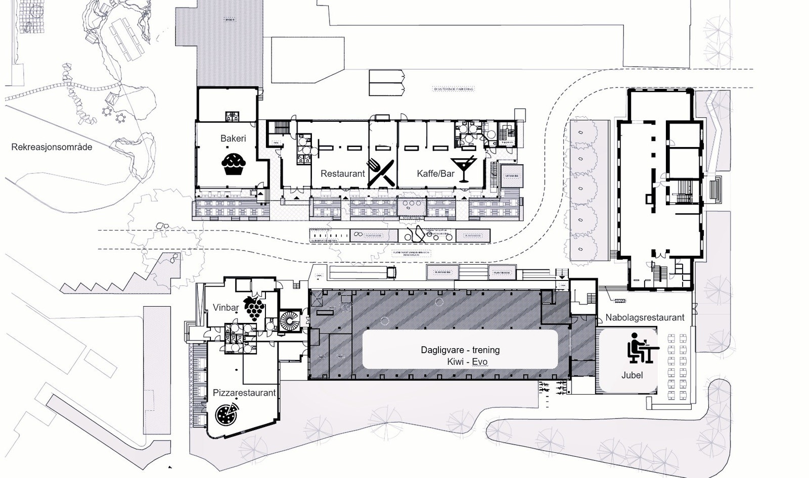
Attraktive serveringslokaler på Adamstuen
Nøkkelinfo
- Areal
- 100 - 400 m²
- Etasje
- 1.
- Byggeår
- 1970
- Renovert år
- 2025
- Overtakelse
- etter avtale
Type lokale
Butikk/Handel
Serveringslokale/Kantine
Om eiendommen
Sommeren 2024 åpnet den første nabolagsrestauranten på "Den Gamle Veterinærhøgskolen". Jubel har blitt en suksess og nabolagsfavoritt!
Området og leietakere som Kiwi, Evo, Oslo Nye Høyskole (800 studenter), kunstnere m.fl. leverer på et livlig, mangfoldig, spennende miljø men også på god omsetning. Stedet har virkelig blitt en møteplass for nabolag, brukere og leietakere.
Nå etableres det flere fine lokaler med dedikert uteservering samt bilfritt mingle/oppholdsareal. Her ligger det tilrette for god stemning i et skjermet, men sentralt område.
Rå profilering vis a vis Adamstuen trikkestopp, godt med dagslys og fantastisk takhøyde.
Dette er en flott mulighet til å etablere restaurant, pizzeria, vinbar, kafe, bakeri og/eller andre utadrettede virksomheter!
Den tidligere Veterinærhøyskolen på Adamstuen utgjør totalt ca. 59 000 kvm BTA.
Området og leietakere som Kiwi, Evo, Oslo Nye Høyskole (800 studenter), kunstnere m.fl. leverer på et livlig, mangfoldig, spennende miljø men også på god omsetning. Stedet har virkelig blitt en møteplass for nabolag, brukere og leietakere.
Nå etableres det flere fine lokaler med dedikert uteservering samt bilfritt mingle/oppholdsareal. Her ligger det tilrette for god stemning i et skjermet, men sentralt område.
Rå profilering vis a vis Adamstuen trikkestopp, godt med dagslys og fantastisk takhøyde.
Dette er en flott mulighet til å etablere restaurant, pizzeria, vinbar, kafe, bakeri og/eller andre utadrettede virksomheter!
Den tidligere Veterinærhøyskolen på Adamstuen utgjør totalt ca. 59 000 kvm BTA.
Beliggenhet
Adamstuen er en pulserende og attraktiv bydel som ligger fint plassert mellom nabolagene St. Hanshaugen, Majorstuen og Bislett. Området er godt forbundet med offentlig transport, med flere trikk- og bussruter (trikk nr. 17, 18, buss nr. 20 og 37) som gir enkel tilgang til resten av byen. I tillegg er det gode sykkel- og gangveiforbindelser som gjør det enkelt å komme seg rundt. Det er også gode parkeringsmuligheter for bil.
Standard
Lokalene kan leveres ferdigstillt til leietaker i forskjellig grad. Felles for alle lokalene er at de tilpasses den enkelte leietaker. Lokalene har godt med dagslys, våtromskjerner samt mulighet for lager i kjeller (vareheis).
Innhold
Ventilasjon, fettutskiller, avtrekk mm leveres av gårdeier.
Vi har flere ledige arealer som vi nå fyller med gode konsepter.
Fra ca BTA 100 kvm - ca BTA 400 kvm.
Ta kontakt for ytterligere informasjon og visning.
Vi har flere ledige arealer som vi nå fyller med gode konsepter.
Fra ca BTA 100 kvm - ca BTA 400 kvm.
Ta kontakt for ytterligere informasjon og visning.
Matrikkelinformasjon
Gårdsnr: 220
Bruksnr: 125
NB: Knappen for å vise hele beskrivelsen har kun en visuell effekt.
NB: Knappen for å vise hele beskrivelsen har kun en visuell effekt.
Visning
Ta kontakt for å avtale visning.Linstow AS
Velkommen til Linstow AS
Nærområdet
Annonseinformasjon
| FINN-kode | 402424785 |
|---|---|
| Sist endret | 17. nov. 2025 11:44 |
| Referanse | Nina Sillibakken |
Annonsene kan være mangelfulle i forhold til lovpålagt opplysningsplikt. Før bindende avtale inngås oppfordres interessenter til å innhente komplett informasjon fra meglerforetaket, selger eller utleier.








