Bildegalleri

Jonas Ekse Hovland v/Krogsveen har gleden av å presentere Bøkkerveien 34B!
Solgt
Populære Krydderhagen
Lekker & gjennomgående 2R-leilighet. To terrasser. Garasje. Fyring & VV inkl. Rolig og sentralt.
Prisantydning5 000 000 kr
Nøkkelinfo
- Boligtype
- Leilighet
- Eieform
- Eier (Selveier)
- Soverom
- 1
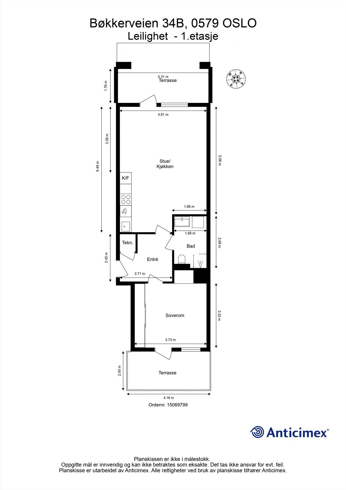
- Internt bruksareal
- 55 m² (BRA-i)
- Bruksareal
- 63 m²
- Eksternt bruksareal
- 8 m² (BRA-e)
- Balkong/Terrasse
- 21 m² (TBA)
- Etasje
- 1
- Byggeår
- 2016
- Energimerking
- C - Mørkegrønn
- Rom
- 2
- Tomteareal
- 1 317 m² (eiet)
Fasiliteter
Balkong/Terrasse
Barnevennlig
Bredbåndstilknytning
Garasje/P-plass
Heis
Kjæledyr tillatt
Kabel-TV
Offentlig vann/kloakk
Parkett
Sentralt
Vaktmester-/vektertjeneste
Lademulighet
Balansert ventilasjon
Om boligen
Jonas Ekse Hovland v/ Krogsveen har gleden av å presentere denne nyere og moderne 2-roms leiligheten med sentral beliggenhet i populære Krydderhagen på Hasle/Løren. Leiligheten ligger fint til i 1.etasje og holder en god standard. Her får du to terrasser som byr på rikelig med sol og oppleves privat og skjermet.
Rolig og hyggelig boligområde som har kort vei til "alt" en måtte trenge i hverdagen!
Kvaliteter:
Rolig og hyggelig boligområde som har kort vei til "alt" en måtte trenge i hverdagen!
Kvaliteter:
- Kort vei til t-bane, buss og flybuss, skoler og barnehager
- Bredt utvalg av butikker, spisesteder og servicetilbud
- To romslige terrasser med gode solforhold
- Kort vei til handlemuligheter på Vinslottet
- Internett, fyring varmtvann inkl.
- Veldrevet og hyggelig sameie
- God standard fra byggeår
- Vannbåren gulvvarme
- Garasje
- Bod
Velkommen!
NB: Knappen for å vise hele beskrivelsen har kun en visuell effekt.
NB: Knappen for å vise hele beskrivelsen har kun en visuell effekt.
Salgsoppgaven beskriver vesentlig og lovpålagt informasjon om eiendommen
Se komplett salgsoppgaveNyttige lenker
Nærområdet
Krogsveen Hasle
Velkommen til en enklere boligreise.
Annonseinformasjon
| FINN-kode | 402342253 |
|---|---|
| Sist endret | 06. aug. 2025 05:06 |
| Referanse | KR37.2586 |
Annonsene kan være mangelfulle i forhold til lovpålagt opplysningsplikt. Før bindende avtale inngås oppfordres interessenter til å innhente komplett informasjon fra meglerforetaket, selger eller utleier.






































