Bildegalleri

Velkommen til Skomakeråsen 43
Solgt
Meget pen helårs fritidsbolig med nærhet til sjøen - Pent opparbeidet tomt - Terrasse med boblebad - Rett til båtplass
Prisantydning3 950 000 kr
- Omkostninger
- 119 740 kr
- Totalpris
- 4 069 740 kr
- Kommunale avg.
- 23 239 kr per år
- Eiendomsskatt
- 5 520 kr per år
Nøkkelinfo
- Beliggenhet
- Ved sjøen
- Boligtype
- Hytte
- Eieform
- Eier (Selveier)
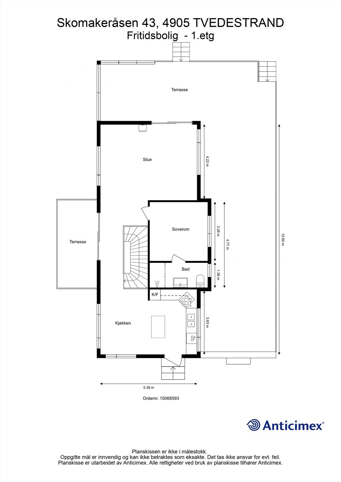
- Internt bruksareal
- 110 m² (BRA-i)
- Bruksareal
- 124 m²
- Eksternt bruksareal
- 14 m² (BRA-e)
- Balkong/Terrasse
- 93 m² (TBA)
- Tomteareal
- 554 m² (eiet)
- Byggeår
- 2007
- Soverom
- 3
- Energimerking
- D - Oransje
- Overtakelse
- Etter nærmere avtale.
Fasiliteter
Innlagt vann
Balkong/Terrasse
Barnevennlig
Bilvei frem
Båtplass
Garasje/P-plass
Hage
Peis/Ildsted
Rolig
Utsikt
Bademulighet
Fiskemulighet
Innlagt strøm
Offentlig vann/kloakk
Turterreng
Om boligen
Nydelig fritidseiendom med sjøutsikt, usjenert uteplass og flotte solforhold på Skomakeråsen. Området byr på ordentlig sørlandsidyll med brygge og badestrand like ved, naturskjønne omgivelser med skogen rett i bakkant og en fantastisk skjærgård. Tvedestrand er ti minutters kjøretur eller en svipptur i båt unna. Muligheter for mange fine små og store båtutflukter, som idylliske Furøya, Sandøya, Lyngør, Hagefjord brygge og Kilsund. Hytta er oppført over to plan med tre soverom og to bad, åpen kjøkkenløsning, stue, hall og bodplass. Det er også et frittliggende anneks med innlagt strøm på tomten. Uteområdet består av biloppstillingsplass, en hyggelig hage opparbeidet med busker og hekker for å skjerme innsyn og en stor, solrik terrasse hvor du kan nyte den idylliske utsikten ut mot sundet.
NB: Knappen for å vise hele beskrivelsen har kun en visuell effekt.
NB: Knappen for å vise hele beskrivelsen har kun en visuell effekt.
Salgsoppgaven beskriver vesentlig og lovpålagt informasjon om eiendommen
Se komplett salgsoppgaveNyttige lenker
Nærområdet
Krogsveen Arendal
Verdien av en god megler.
Annonseinformasjon
| FINN-kode | 402188811 |
|---|---|
| Sist endret | 14. aug. 2025 11:56 |
| Referanse | KR47.2537 |
Annonsene kan være mangelfulle i forhold til lovpålagt opplysningsplikt. Før bindende avtale inngås oppfordres interessenter til å innhente komplett informasjon fra meglerforetaket, selger eller utleier.




































