Bildegalleri

Eiendomsmegler Ida Follinglo presenterer Beitostølen Arena 5
Solgt
Beitostølen
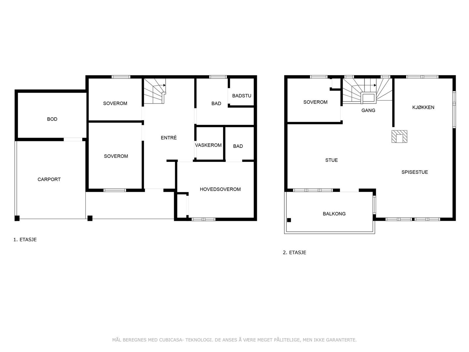
Fin rekkehytte over to plan med 4 soverom og 2 bad - Badstue - Carport med stor bod - Skiløypa går rett ved hytteveggen
Prisantydning3 590 000 kr
- Omkostninger
- 90 840 kr
- Totalpris
- 3 680 840 kr
- Kommunale avg.
- 20 159 kr per år
Nøkkelinfo
- Beliggenhet
- På fjellet
- Boligtype
- Hytte
- Eieform
- Eier (Selveier)
- Internt bruksareal
- 100 m² (BRA-i)
- Bruksareal
- 107 m²
- Eksternt bruksareal
- 7 m² (BRA-e)
- Balkong/Terrasse
- 13 m² (TBA)
- Tomteareal
- 189 m² (eiet)
- Byggeår
- 2009
- Soverom
- 4
- Rom
- 8
- Energimerking
- D - Oransje
Fasiliteter
Balkong/Terrasse
Garasje/P-plass
Offentlig vann/kloakk
Peis/Ildsted
Turterreng
Utsikt
Alpinanlegg
Bilvei frem
Innlagt strøm
Innlagt vann
Lademulighet
Om boligen
Drømmer du om en koselig og romslig hytte med nærhet til alle Beitostølens fasiliteter? Da kan Beitostølen Arena 5 ved skistadion være den rette. Turmulighetene begynner ved hyttedøra; På ski, til fots eller på sykkel. På få minutter er man i sentrum.
Hytta går over to plan og byr på fin planløsning.
Overflater er behandlet i farger som kler hytta godt og gir en lun atmosfære.
I 2. etasje er det et romslig oppholdsrom med sone for sofa og spiseplass. Her er det plass til mange rundt bordet for lange gode måltider.
Lys kjøkkeninnredning i heltre hvor frontene ble frisket opp vinteren 2023.
Hytta har 4 soverom med mulighet for mange sengeplasser.
Det ene soverommet har privat bad.
Hovedbad med adkomst til badstue.
Eget vaskerom med vaskemaskin og tørketrommel.
Isolert bod innenfor carport, god plass til ved og utstyr.
Lagringsloft over carport.
Ta kontakt med megler for å avtale privatvisning!
Hytta går over to plan og byr på fin planløsning.
Overflater er behandlet i farger som kler hytta godt og gir en lun atmosfære.
I 2. etasje er det et romslig oppholdsrom med sone for sofa og spiseplass. Her er det plass til mange rundt bordet for lange gode måltider.
Lys kjøkkeninnredning i heltre hvor frontene ble frisket opp vinteren 2023.
Hytta har 4 soverom med mulighet for mange sengeplasser.
Det ene soverommet har privat bad.
Hovedbad med adkomst til badstue.
Eget vaskerom med vaskemaskin og tørketrommel.
Isolert bod innenfor carport, god plass til ved og utstyr.
Lagringsloft over carport.
Ta kontakt med megler for å avtale privatvisning!
NB: Knappen for å vise hele beskrivelsen har kun en visuell effekt.
NB: Knappen for å vise hele beskrivelsen har kun en visuell effekt.
Salgsoppgaven beskriver vesentlig og lovpålagt informasjon om eiendommen
Se komplett salgsoppgaveNærområdet

PrivatMegleren Valdres
Kun det beste på dine vegne
Annonseinformasjon
| FINN-kode | 402136056 |
|---|---|
| Sist endret | 02. okt. 2025 10:59 |
| Referanse | 71251045 |
Annonsene kan være mangelfulle i forhold til lovpålagt opplysningsplikt. Før bindende avtale inngås oppfordres interessenter til å innhente komplett informasjon fra meglerforetaket, selger eller utleier.























































