Bildegalleri

Velkommen til Hyttesone G 19 på Geitøya!
Inaktiv
Geitøya
Sjelden mulighet! Hytte med selveiertomt på øy - brygge, uteplass og kort vei til Larvik
Prisantydning3 890 000 kr
- Omkostninger
- 98 636 kr
- Totalpris
- 3 988 636 kr
- Formuesverdi
- 166 318 kr
Nøkkelinfo
- Beliggenhet
- Ved sjøen
- Boligtype
- Hytte
- Eieform
- Eier (Selveier)
- Internt bruksareal
- 41 m² (BRA-i)
- Bruksareal
- 47 m²
- Eksternt bruksareal
- 6 m² (BRA-e)
- Balkong/Terrasse
- 97 m² (TBA)
- Renovert år
- 2025
- Tomteareal
- 3 000 m² (eiet)
- Byggeår
- 1925
- Soverom
- 1
- Energimerking
- G - Rød
- Overtakelse
- Overtagelse etter nærmere avtale med selger. Vær vennlig å angi ønsket overtagelsesdato i vedlagte budskjema.
Fasiliteter
Balkong/Terrasse
Barnevennlig
Båtplass
Rolig
Utsikt
Bademulighet
Innlagt strøm
Strandlinje
Visning
Husk påmelding til visning! Dersom ingen er påmeldt innen kl. 16 dagen før visning, vil den avlyses.
Husk å lese komplett salgsoppgave før visning. Bestill komplett, utskriftsvennlig salgsoppgave.
VisningspåmeldingOm boligen
Dette er en sjarmerende fritidsbolig med egen brygge og fantastisk beliggenhet helt nede ved vannet. Eiendommen byr på et sjeldent hyggelig uteområde med flere solrike terrasser blant annet en stor terrasse med grillplass og utekjøkken, perfekt for sommerdager med familie og venner.
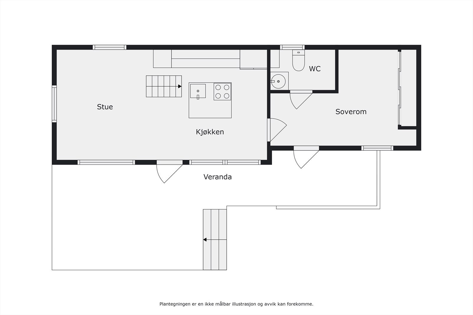
Det er de siste årene vært gjort en omfattende rehabilitering av den opprinnelig hytta. Hytta har en luftig og sosial planløsning med stue og kjøkken i åpen løsning, delvis oppgradert kjøkken med steinbenk og integrerte hvitevarer, ett soverom, hems og toalettrom med forbrenningstoalett. Beliggenheten kombinerer naturskjønne omgivelser med kort vei til Larvik sentrum, og gir ypperlige muligheter for både bading, båtliv og tur.
Velkommen til hyggelig visning!
Det er de siste årene vært gjort en omfattende rehabilitering av den opprinnelig hytta. Hytta har en luftig og sosial planløsning med stue og kjøkken i åpen løsning, delvis oppgradert kjøkken med steinbenk og integrerte hvitevarer, ett soverom, hems og toalettrom med forbrenningstoalett. Beliggenheten kombinerer naturskjønne omgivelser med kort vei til Larvik sentrum, og gir ypperlige muligheter for både bading, båtliv og tur.
Velkommen til hyggelig visning!
NB: Knappen for å vise hele beskrivelsen har kun en visuell effekt.
NB: Knappen for å vise hele beskrivelsen har kun en visuell effekt.
Salgsoppgaven beskriver vesentlig og lovpålagt informasjon om eiendommen
Se komplett salgsoppgaveNyttige lenker
Nærområdet
EiendomsMegler 1 Larvik
et foretak i SpareBank 1 Sør-Norge konsernet
Annonsene kan være mangelfulle i forhold til lovpålagt opplysningsplikt. Før bindende avtale inngås oppfordres interessenter til å innhente komplett informasjon fra meglerforetaket, selger eller utleier.




































