Bildegalleri

Fjellgårdsvegen 105 ligger landlig til med flott utsikt
Solgt
Oppusset enebolig med stor tomt | Landlig beliggenhet med utsikt mot sjøen | Uthus på eiendommen
Prisantydning1 090 000 kr
Nøkkelinfo
- Boligtype
- Enebolig
- Eieform
- Eier (Selveier)
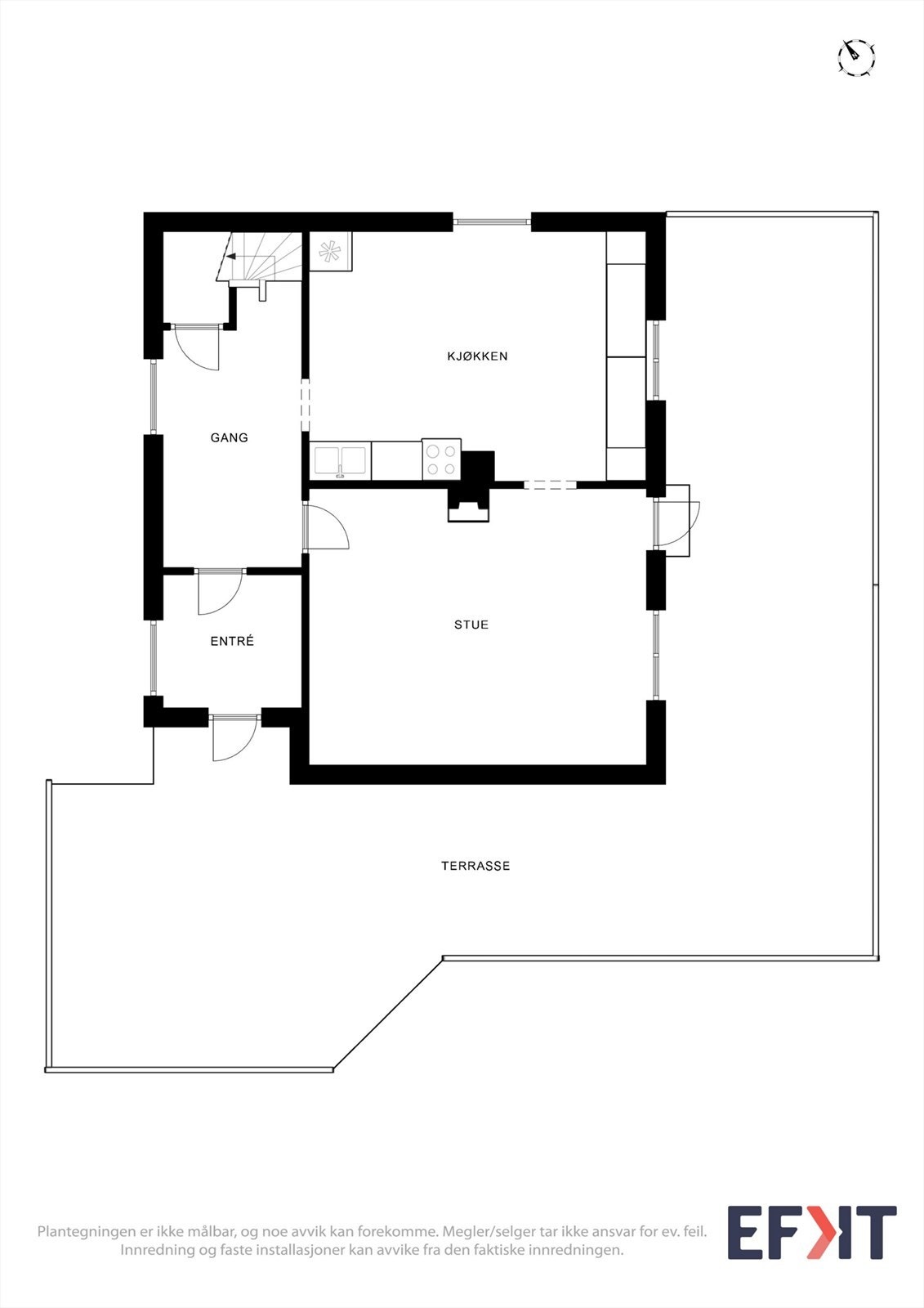
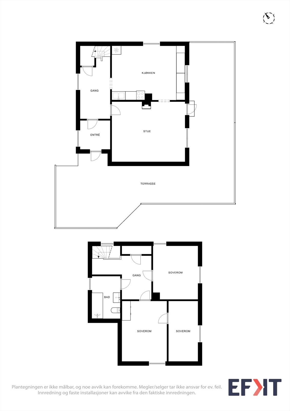
- Soverom
- 3
- Internt bruksareal
- 119 m² (BRA-i)
- Bruksareal
- 133 m²
- Eksternt bruksareal
- 14 m² (BRA-e)
- Balkong/Terrasse
- 30 m² (TBA)
- Byggeår
- 1937
- Energimerking
- G - Gul
- Tomteareal
- 2 183 m² (eiet)
Fasiliteter
Barnevennlig
Bredbåndstilknytning
Hage
Peis/Ildsted
Rolig
Utsikt
Turterreng
Om boligen
Velkommen til Fjellgårdsvegen 105
Oppusset enebolig med flott beliggenhet og stor tomt på 2.182 m2. Boligen ligger i et rolig område kun ca.1 km unna Malm sentrum. Fra eiendommen så har man utsikt ned mot Beistadfjorden og gode solforhold. Det er gjort flere oppgraderinger på boligen de siste årene som blant annet skiftet vinduer og bordkledning på to av veggene.
Kvaliteter verdt å merke seg:
- Tre soverom
- Meget gode solforhold.
- Eget uthus/anneks på ca. 14 kvm.
- Vinduer fra 2013 og 2024
- Varmtvannsbereder fra 2022
- Taktekking fra 2013
- Nyere bordkledning og etterisolert i 2024 på to sider.
- Terrasse 2023
- Elbillader 2023
- Montering av enkelte stikkontakter, lysbrytere og strømledninger i 2024
- Ny innredning bad 2024
- Varmepumpe i 2019
Vi sees på visnigen, husk påmelding!
Oppusset enebolig med flott beliggenhet og stor tomt på 2.182 m2. Boligen ligger i et rolig område kun ca.1 km unna Malm sentrum. Fra eiendommen så har man utsikt ned mot Beistadfjorden og gode solforhold. Det er gjort flere oppgraderinger på boligen de siste årene som blant annet skiftet vinduer og bordkledning på to av veggene.
Kvaliteter verdt å merke seg:
- Tre soverom
- Meget gode solforhold.
- Eget uthus/anneks på ca. 14 kvm.
- Vinduer fra 2013 og 2024
- Varmtvannsbereder fra 2022
- Taktekking fra 2013
- Nyere bordkledning og etterisolert i 2024 på to sider.
- Terrasse 2023
- Elbillader 2023
- Montering av enkelte stikkontakter, lysbrytere og strømledninger i 2024
- Ny innredning bad 2024
- Varmepumpe i 2019
Vi sees på visnigen, husk påmelding!
NB: Knappen for å vise hele beskrivelsen har kun en visuell effekt.
NB: Knappen for å vise hele beskrivelsen har kun en visuell effekt.
Salgsoppgaven beskriver vesentlig og lovpålagt informasjon om eiendommen
Se komplett salgsoppgaveNærområdet
Aktiv Steinkjer
Prisstatistikk
Fjellgårdsvegen 105
9 178 klikk
på annonsen
9 159 kr
prisantydning per kvadratmeter
Prisfordeling
Pris per m² ligger 5 841 kr under snittet for eneboliger i Steinkjer.
Grafen viser antall eneboliger solgt i Steinkjer siste året fordelt på pris per m² - totalt 195 eneboliger
Antall boliger
Kvadratmeterpris tilsvarer prisantydning pluss fellesgjeld per kvadratmeter (p-rom eller BRA-i). Prisene i grafen er avrundet til nærmeste 1000 kr.
Annonseinformasjon
| FINN-kode | 402003005 |
|---|---|
| Sist endret | 25. juli 2025 11:49 |
| Referanse | 1708250046 |
Annonsene kan være mangelfulle i forhold til lovpålagt opplysningsplikt. Før bindende avtale inngås oppfordres interessenter til å innhente komplett informasjon fra meglerforetaket, selger eller utleier.
































