Bildegalleri

EiendomsMegler1 har gleden av å presentere Pomorgata 1!
Solgt
BUD MOTTATT! Velstelt og oppgradert enebolig med sentral plassering på Øya | 4 soverom | Bad og vaskerom fra 2021
Prisantydning3 290 000 kr
Nøkkelinfo
- Boligtype
- Enebolig
- Eieform
- Eier (Selveier)
- Soverom
- 4
- Internt bruksareal
- 167 m² (BRA-i)
- Bruksareal
- 186 m²
- Eksternt bruksareal
- 19 m² (BRA-e)
- Byggeår
- 1966
- Energimerking
- D - Rød
- Rom
- 6
- Tomteareal
- 589 m² (eiet)
Fasiliteter
Barnevennlig
Balkong/Terrasse
Garasje/P-plass
Kabel-TV
Fiskemulighet
Offentlig vann/kloakk
Ingen gjenboere
Turterreng
Utsikt
Sentralt
Bredbåndstilknytning
Moderne
Rolig
Bademulighet
Om boligen
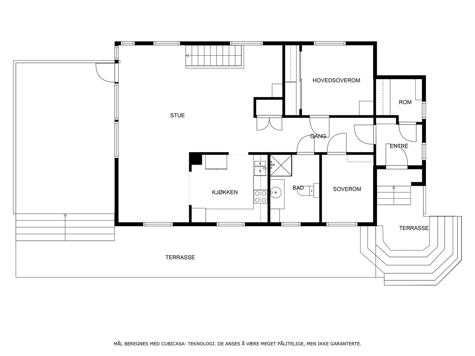
Pomorgata 1 er en pen og betydelig modernisert enebolig med fin beliggenhet.
Boligen fremstår som godt vedlikeholdt og vesentlig oppgradert i forhold til byggeåret. På hovedplanet finner du en lys og trivelig stue med direkte utgang til terrasse, spisestue, et flott kjøkken med god skap- og benkeplass, bad, bod og 2 soverom. I tillegg er kjeller innredet med stue, bad, vaskerom, badstue og ytterligere to soverom. Det er også en garasje sør på tomten.
Kvaliteter verdt å merke seg:
- Nytt yttertak fra 2025
- Oppgradert dusjsone på badet i 1.etasje (September 2025)
- 2 moderne bad fra 2015 og 2021
- Badstue fra 2021
- Vaskerom ble oppgradert i 2021
- Innvendige overflatene ble primært oppgradert i perioden 2015 - 2023
- Oppgradert elektrisk anlegg
- De fleste vinduer og dører er skiftet
- Etterisolert ytterveggene og ny kledning
- Ny drenering og isolert grunnmur i 2023
Velkommen på visning!
Boligen fremstår som godt vedlikeholdt og vesentlig oppgradert i forhold til byggeåret. På hovedplanet finner du en lys og trivelig stue med direkte utgang til terrasse, spisestue, et flott kjøkken med god skap- og benkeplass, bad, bod og 2 soverom. I tillegg er kjeller innredet med stue, bad, vaskerom, badstue og ytterligere to soverom. Det er også en garasje sør på tomten.
Kvaliteter verdt å merke seg:
- Nytt yttertak fra 2025
- Oppgradert dusjsone på badet i 1.etasje (September 2025)
- 2 moderne bad fra 2015 og 2021
- Badstue fra 2021
- Vaskerom ble oppgradert i 2021
- Innvendige overflatene ble primært oppgradert i perioden 2015 - 2023
- Oppgradert elektrisk anlegg
- De fleste vinduer og dører er skiftet
- Etterisolert ytterveggene og ny kledning
- Ny drenering og isolert grunnmur i 2023
Velkommen på visning!
NB: Knappen for å vise hele beskrivelsen har kun en visuell effekt.
NB: Knappen for å vise hele beskrivelsen har kun en visuell effekt.
Salgsoppgaven beskriver vesentlig og lovpålagt informasjon om eiendommen
Se komplett salgsoppgaveNyttige lenker
Nærområdet
EiendomsMegler 1 Kirkenes
Vi loser deg trygt gjennom hele boligsalget
Prisstatistikk
Pomorgata 1
11 218 klikk
på annonsen
19 700 kr
prisantydning per kvadratmeter
Prisfordeling
Pris per m² ligger 4 700 kr over snittet for eneboliger i Vadsø.
Grafen viser antall eneboliger solgt i Vadsø siste året fordelt på pris per m² - totalt 38 eneboliger
Antall boliger
Kvadratmeterpris tilsvarer prisantydning pluss fellesgjeld per kvadratmeter (p-rom eller BRA-i). Prisene i grafen er avrundet til nærmeste 1000 kr.
Lignende boliger til salgs
4 500 000 kr


3 490 000 kr
Vadsø
Pent oppgradert familiebolig med sentral beliggenhet | Pent uteområde | Hjørnetomt | 4 soverom
Totalpris: 3 578 340 kr
1 500 000 kr
1 790 000 kr


3 200 000 kr
Vadsø
Flott enebolig med god planløsning og utleiedel i barnevennlig område. Idyllisk utsikt over Varangerfjorden.
Totalpris: 3 296 990 kr
2 700 000 kr
Vestre Jakobselv
Innflyttingsklar enebolig med utleie del i barnevennlig område
Totalpris: 2 768 590 kr
Annonsene kan være mangelfulle i forhold til lovpålagt opplysningsplikt. Før bindende avtale inngås oppfordres interessenter til å innhente komplett informasjon fra meglerforetaket, selger eller utleier.






































