Bildegalleri

Fasade sør
Flotte kontorlokaler til leie i Laguneveien 7 i Laguneparken
Nøkkelinfo
- Areal
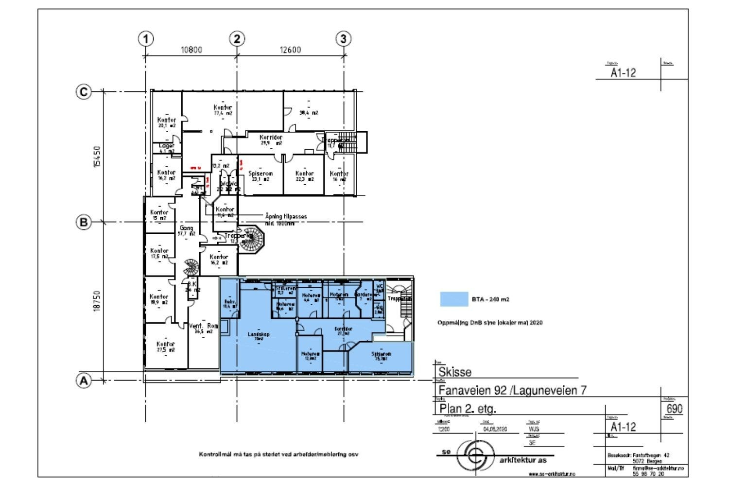
- 260 m²
- Bruksareal
- 240 m²
- Etasje
- 2.
- Overtakelse
- Etter avtale
Type lokale
Fasiliteter
Om eiendommen
Vi har nå flotte kontorlokaler tilgjengelig i Laguneveien 7 i Laguneparken, en attraktiv beliggenhet like ved Lagunen Storsenter. Lokalet er perfekt for bedrifter som ønsker en profesjonell arbeidsplass med enkel tilgang til både transport og fasiliteter.
- Areal: 260 kvm brutto / 240 kvm netto.
- Etasje: 2. etasje med gode lysforhold og velholdt standard.
- Fasiliteter: Garasje og personalparkering på eiendommen.
- Fleksibilitet: Moderne lokaler med mulighet for tilpasning til din bedrifts behov.
- Tilkomst: Lett tilgjengelig via bil, bybane og buss.
Beliggenhet
Laguneveien 7 ligger sentralt plassert i Laguneparken, en av Bergens mest ettertraktede næringsområder i søndre bydel. Med nærhet til Lagunen Storsenter har du tilgang til et bredt utvalg av butikker, restauranter og servicetilbud.
Området er svært godt tilrettelagt for transport, med enkel tilkomst via bil, bybane og buss. Personalparkering er tilgjengelig på eiendommen, og det er gode forbindelser til øvrige deler av Bergen.
Visning
Ta kontakt for å avtale visning.Thon Eiendom
Nærområdet
Annonseinformasjon
| FINN-kode | 401953033 |
|---|---|
| Sist endret | 08. apr. 2025 07:21 |
| Referanse | Eleni Papadopoulou |
Annonsene kan være mangelfulle i forhold til lovpålagt opplysningsplikt. Før bindende avtale inngås oppfordres interessenter til å innhente komplett informasjon fra meglerforetaket, selger eller utleier.










