Bildegalleri

Fredrik Mørch Døviken v/DNB Eiendom presenterer Torgrims vei 10!
KANA
Pen fritidsbolig over to plan fra 2015 | God standard | 4 sov & 2 bad | Naturskjønn beliggenhet | Parkering
Prisantydning3 490 000 kr
- Omkostninger
- 88 340 kr
- Totalpris
- 3 578 340 kr
- Kommunale avg.
- 5 539 kr per år
Nøkkelinfo
- Beliggenhet
- Ved sjøen
- Boligtype
- Hytte
- Eieform
- Eier (Selveier)
- Internt bruksareal
- 126 m² (BRA-i)
- Bruksareal
- 126 m²
- Balkong/Terrasse
- 57 m² (TBA)
- Tomteareal
- 839 m² (eiet)
- Byggeår
- 2015
- Soverom
- 4
- Rom
- 5
Fasiliteter
Innlagt vann
Balkong/Terrasse
Barnevennlig
Bilvei frem
Garasje/P-plass
Peis/Ildsted
Rolig
Utsikt
Innlagt strøm
Turterreng
Visning
Velkommen til visning! Meld deg på ved å trykke "visningspåmelding" i våre boligannonser. Ta gjerne kontakt med megler i forkant av visningen om du har spørsmål. NB. Visning utgår dersom det ikke er noen påmeldte.
VisningspåmeldingOm boligen
Torgrims vei 10 er en nyere og landlig beliggende familiehytte med bilvei helt frem og parkering. Her har man gode solforhold som kan nytes fra flere uteplasser og naturskjønn utsikt. Hytta ligger i et attraktivt område i Kana i Asker kommune. Herfra er det en kort kjøretur til vakre Holmsbu og dagligvarebutikker. Fritidsboligen er omgitt av vakker natur og landlige omgivelser, noe som byr på flotte turmuligheter.
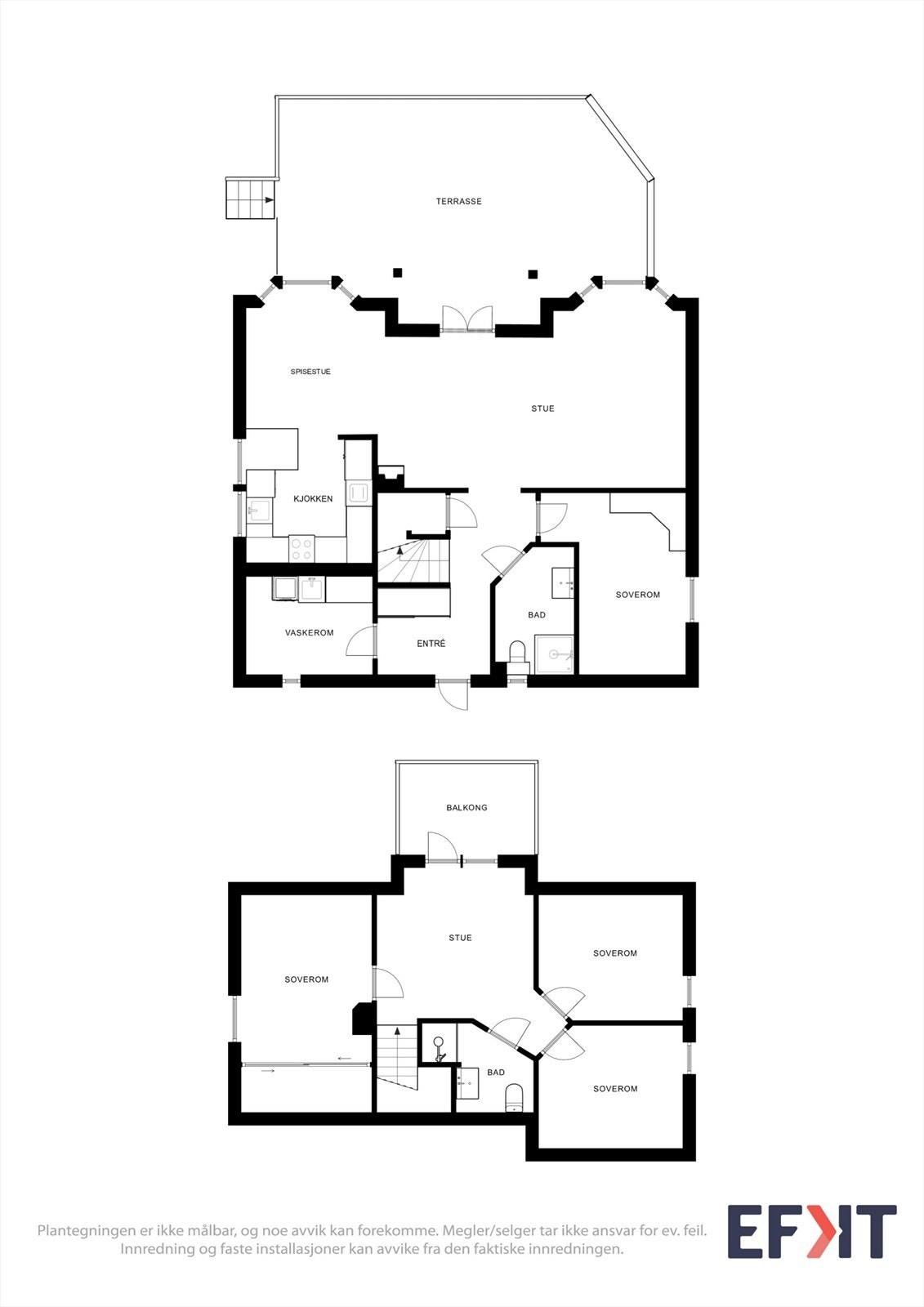
Dette er en innbydende fritidsbolig over to plan fra 2015. Hytta har en sosial planløsning med åpen stue/spisestue/kjøkken, peis, fire soverom, to bad, separat vaskerom og egen loftstue.
Velkommen til en hyggelig visning!
Dette er en innbydende fritidsbolig over to plan fra 2015. Hytta har en sosial planløsning med åpen stue/spisestue/kjøkken, peis, fire soverom, to bad, separat vaskerom og egen loftstue.
Velkommen til en hyggelig visning!
NB: Knappen for å vise hele beskrivelsen har kun en visuell effekt.
NB: Knappen for å vise hele beskrivelsen har kun en visuell effekt.
Salgsoppgaven beskriver vesentlig og lovpålagt informasjon om eiendommen
Se komplett salgsoppgaveNyttige lenker
Nærområdet
DNB Eiendom AS
Verdifulle salg
Annonseinformasjon
| FINN-kode | 401804649 |
|---|---|
| Sist endret | 09. mars 2026 09:29 |
| Referanse | 520250044 |
Annonsene kan være mangelfulle i forhold til lovpålagt opplysningsplikt. Før bindende avtale inngås oppfordres interessenter til å innhente komplett informasjon fra meglerforetaket, selger eller utleier.





























