Bildegalleri

Kristian B. Hansen v/ Proaktiv Lillestrøm har gleden av å presentere en flott 2-roms selveier fra 2021!
Strøken 2-roms selveierleilighet fra 2021. Sydvestvendt balkong og garasje m/lader. Kun 20 min med tog til Oslo S.
Nøkkelinfo
- Boligtype
- Leilighet
- Eieform
- Eier (Selveier)
- Soverom
- 1
- Internt bruksareal
- 44 m² (BRA-i)
- Bruksareal
- 49 m²
- Eksternt bruksareal
- 5 m² (BRA-e)
- Balkong/Terrasse
- 8 m² (TBA)
- Etasje
- 3
- Byggeår
- 2021
- Energimerking
- B - Mørkegrønn
- Rom
- 2
- Tomteareal
- 5 192 m² (eiet)
Fasiliteter
Om boligen
Leiligheten i Gamle Fetvei 14B ligger i nye og attraktive Fetsund Stasjonsby, rett ved sentrumskjernen. Området byr på fine turstier, båtplasser og populære badesteder på sommerstid. Det er gangavstand til alt du trenger i hverdagen, med blant annet dagligvarebutikker og marka rett i nærheten.
Det er kun 20 min med tog til Oslo S!
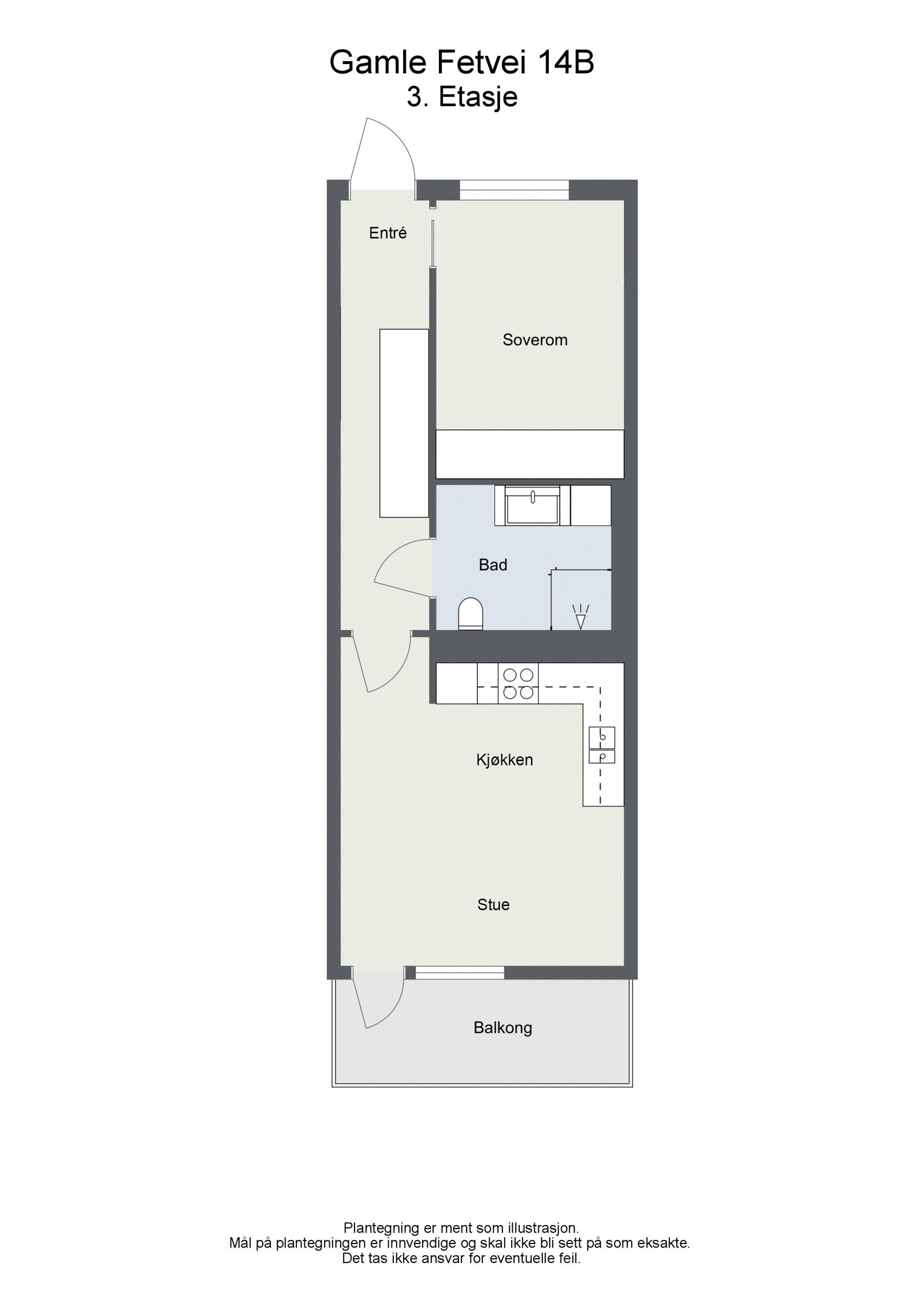
Leiligheten ligger i byggets 3. etasje og har heisadkomst. En lys og innbydende 2-roms oppført i 2021, med gjennomgående god og moderne standard. Fin planløsning med langstrakt entré, åpent allrom med stue og kjøkken, delikat bad og soverom med garderobe. Utendørs er det sydvestvendt balkong på ca. 7,5 m² som vender inn mot rolig bakgård. Det medfølger bod og garasjeplass i felles anlegg. Elbillader er montert.
- Kun TG1
- Vannbåren gulvvarme
- Felles varmtvann
Salgsoppgaven beskriver vesentlig og lovpålagt informasjon om eiendommen
Se komplett salgsoppgaveNyttige lenker
Nærområdet
Proaktiv Eiendomsmegling Lillestrøm
Annonsene kan være mangelfulle i forhold til lovpålagt opplysningsplikt. Før bindende avtale inngås oppfordres interessenter til å innhente komplett informasjon fra meglerforetaket, selger eller utleier.




































