Bildegalleri

Velkommen til Manesjen 2! Stor og lys 3-roms selveier hjørneleilighet beliggende i populære Manesjen
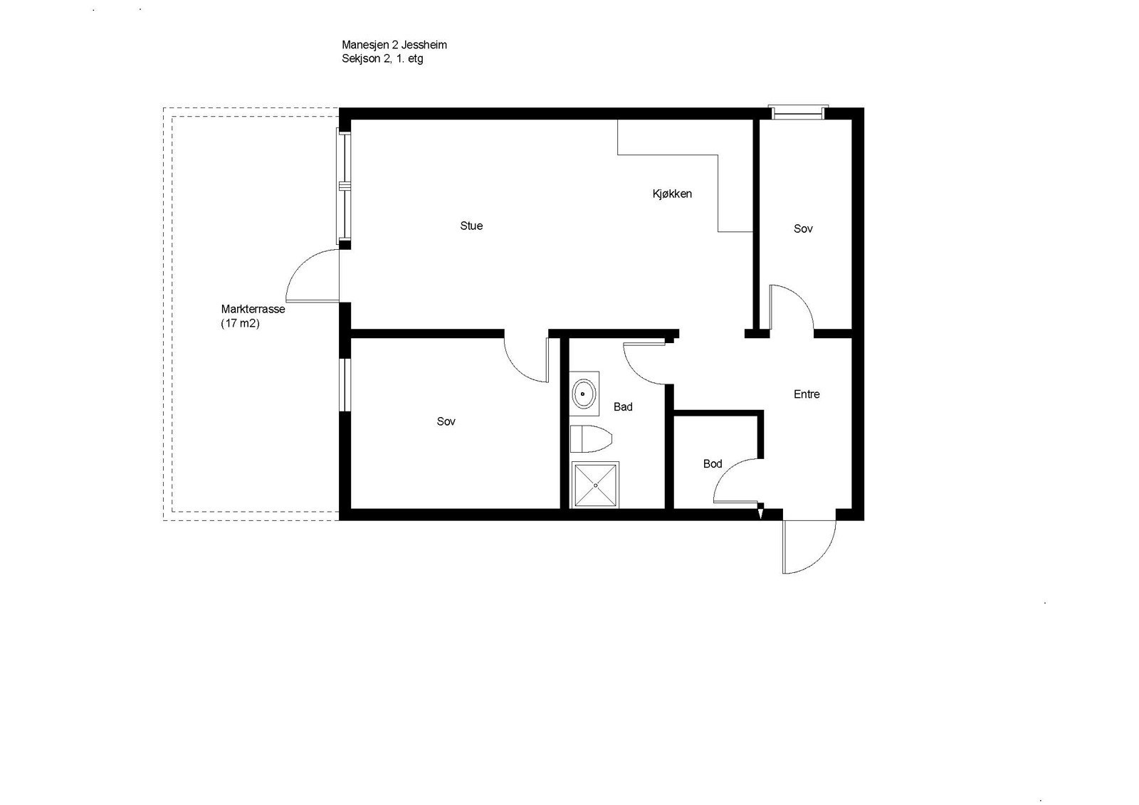
3-roms selveier hjørneleilighet i populære Manesjen - Garasjeplass - Terrasse 17 kvm - Umiddelbar nærhet til sentrum
Nøkkelinfo
- Boligtype
- Leilighet
- Eieform
- Eier (Selveier)
- Soverom
- 2
- Internt bruksareal
- 65 m² (BRA-i)
- Bruksareal
- 70 m²
- Eksternt bruksareal
- 5 m² (BRA-e)
- Balkong/Terrasse
- 17 m² (TBA)
- Etasje
- 1
- Byggeår
- 1998
- Energimerking
- D - Rød
- Rom
- 3
- Tomteareal
- 5 028 m² (eiet)
- Boligselgerforsikring
- Ja
Fasiliteter
Om boligen
Stor 3-roms selveier hjørneleilighet beliggende i populære Manesjen - med umiddelbar nærhet til butikker, restauranter, kafeer, kino, apotek, vinmonopol, buss, tog og alt av servicetilbud man måtte ønske i sentrum av Jessheim.
Leiligheten ligger fint til i byggets 1. etg. og har en lys og åpen planløsning med BRA på 65 kvm. Boligen har behov for noe modernisering.
Inneholder bla. en romslig stue, flott takhøyde og utgang til stor vestvendt terrasse på ca. 17 kvm. Terrassen vender ut mot et felles grøntområde. Videre har leiligheten et kjøkken med hvitevarer, flislagt bad, innvendig bod, samt to gode soverom. Sportsbod i kjeller på 5 kvm.
Garasjeplass m/mulighet for El-bil lader. Heis direkte til etasjeplan.
Kort vei til offentlig kommunikasjon og tog som tar deg raskt inn til Oslo.
Velkommen!
Salgsoppgaven beskriver vesentlig og lovpålagt informasjon om eiendommen
Se komplett salgsoppgaveNyttige lenker
Nærområdet

PrivatMegleren Brustad & Partnere
Annonseinformasjon
| FINN-kode | 401268675 |
|---|---|
| Sist endret | 14. apr. 2025 14:14 |
| Referanse | 121250108 |
Annonsene kan være mangelfulle i forhold til lovpålagt opplysningsplikt. Før bindende avtale inngås oppfordres interessenter til å innhente komplett informasjon fra meglerforetaket, selger eller utleier.

























