Bildegalleri

Nordvik Tønsberg v/Christoffer Kvalshaugen har gleden av å ønske velkommen til Welhavens vei 23!
Solgt
NYHET!
Solvang- Innholdsrik og romslig halvpart av tomannsbolig beliggende på attraktive Solvang. Solrikt, rolig og sentralt!
Prisantydning3 675 000 kr
Nøkkelinfo
- Boligtype
- Tomannsbolig
- Eieform
- Eier (Selveier)
- Soverom
- 1
- Internt bruksareal
- 80 m² (BRA-i)
- Bruksareal
- 96 m²
- Eksternt bruksareal
- 16 m² (BRA-e)
- Balkong/Terrasse
- 16 m² (TBA)
- Etasje
- 2
- Byggeår
- 1958
- Energimerking
- F - Oransje
- Rom
- 2
- Tomteareal
- 757 m² (festet)
- Festeavgift
- 9 825 kr
Fasiliteter
Balkong/Terrasse
Barnevennlig
Bredbåndstilknytning
Garasje/P-plass
Offentlig vann/kloakk
Parkett
Peis/Ildsted
Sentralt
Om boligen
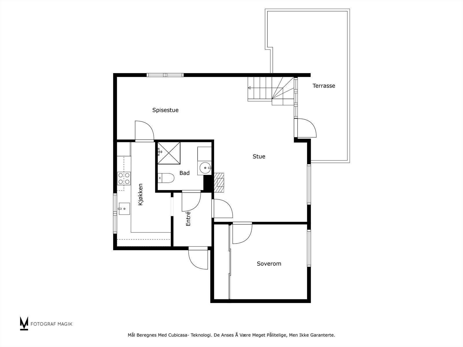
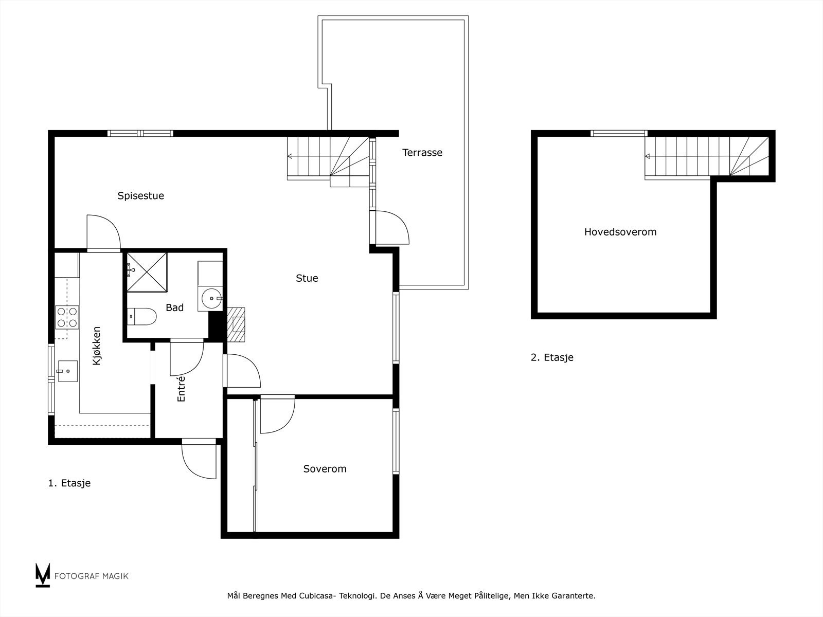
Nordvik Tønsberg v/ Christoffer Kvalshaugen presenterer Welhavens vei 23, en smakfull og innbydende selveierleilighet i 2. etg. pluss loftsrom. Leiligheten har en gjennomgående tiltalende og tidsriktig standard med god planløsning, rikelig med naturlig lys og en romslig balkong med svært gode solforhold.
Boligen ligger meget attraktivt til på Solvang med kort vei til Tønsberg sentrum, tog- og rutebilstasjon, skole, barnehage, m.m. Her bor man barnevennlig og rolig til i et av Tønsbergs mest ettertraktede boligområder.
Leiligheten inneholder en innbydende gang med oppbevaring, smakfullt og innholdsrikt kjøkken, tidsriktig og pent bad, stort soverom med skyvedørsgarderobe, sosialt og luftig allrom med god plass til både TV- og spisestue og innredet loft med flerbruksmuligheter.
Velkommen
Boligen ligger meget attraktivt til på Solvang med kort vei til Tønsberg sentrum, tog- og rutebilstasjon, skole, barnehage, m.m. Her bor man barnevennlig og rolig til i et av Tønsbergs mest ettertraktede boligområder.
Leiligheten inneholder en innbydende gang med oppbevaring, smakfullt og innholdsrikt kjøkken, tidsriktig og pent bad, stort soverom med skyvedørsgarderobe, sosialt og luftig allrom med god plass til både TV- og spisestue og innredet loft med flerbruksmuligheter.
Velkommen
NB: Knappen for å vise hele beskrivelsen har kun en visuell effekt.
NB: Knappen for å vise hele beskrivelsen har kun en visuell effekt.
Salgsoppgaven beskriver vesentlig og lovpålagt informasjon om eiendommen
Se komplett salgsoppgaveNyttige lenker
Nærområdet
Nordvik Tønsberg
Annonseinformasjon
| FINN-kode | 401135046 |
|---|---|
| Sist endret | 14. apr. 2025 11:04 |
| Referanse | 25-0129/24 |
Annonsene kan være mangelfulle i forhold til lovpålagt opplysningsplikt. Før bindende avtale inngås oppfordres interessenter til å innhente komplett informasjon fra meglerforetaket, selger eller utleier.
















































