Bildegalleri

Velkommen til Wilhelm Færdens vei 13C, presentert av Marius Kristoffersen ved Nordvik Bygdøy Allè
Solgt
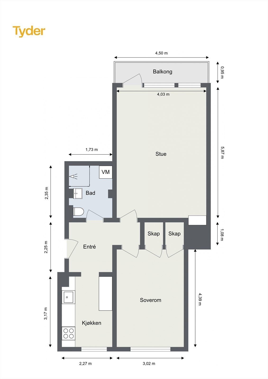
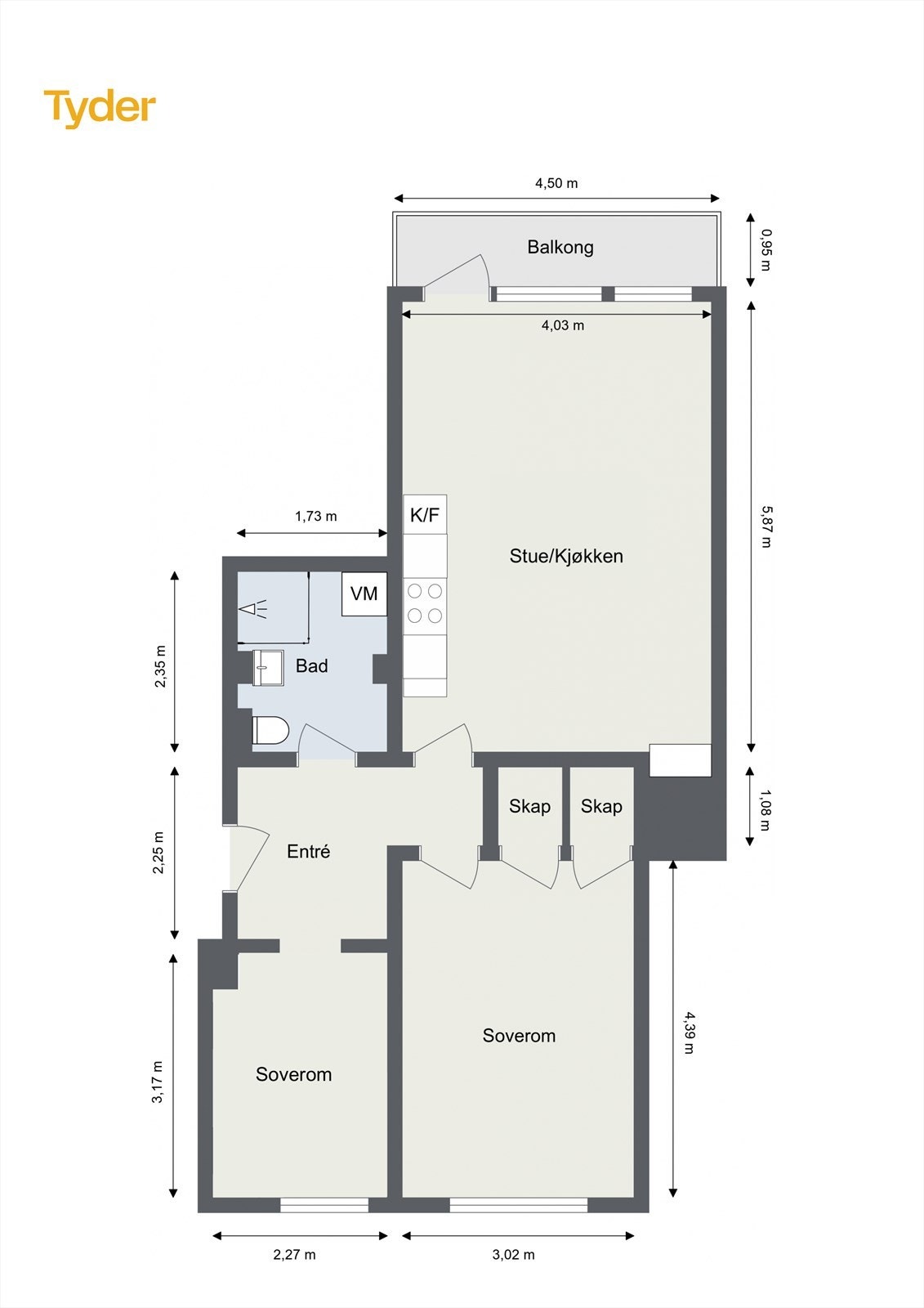
Gjennomgående 2(3)-roms med balkong - Heis - Peis - Rett ved Marienlystparken - Parkering - Varmtvann og fjernvarme inkl
Prisantydning5 700 000 kr
Nøkkelinfo
- Boligtype
- Leilighet
- Eieform
- Eier (Selveier)
- Soverom
- 1
- Internt bruksareal
- 59 m² (BRA-i)
- Bruksareal
- 61 m²
- Eksternt bruksareal
- 2 m² (BRA-e)
- Balkong/Terrasse
- 4 m² (TBA)
- Etasje
- 2
- Byggeår
- 1936
- Energimerking
- F - Mørkegrønn
- Rom
- 2
- Tomteareal
- 2 471 m² (eiet)
Fasiliteter
Balkong/Terrasse
Barnevennlig
Garasje/P-plass
Heis
Kjæledyr tillatt
Offentlig vann/kloakk
Peis/Ildsted
Rolig
Sentralt
Vaktmester-/vektertjeneste
Turterreng
Om boligen
Velkommen til Wilhelm Færdens vei 13C - En gjennomgående 2-roms med heisadkomst. Leiligheten ligger rett ved Marienlystparken og har kort vei til buss og T-bane og trikk på Majorstuen, som er noen få minutters gange unna. Hver seksjonseier disponerer ett parkeringskort som gir rett til å benytte én av sameiets parkeringsplasser foran eller bak bygningen etter førstemann til mølla .
- Felles sykkelrom i kjelleren hvor man kan oppbevare barnevogn/sykkel
- Gangavstand til Ullevaal Stadion, Universitetet i Oslo og Oslo Met
- Nyoppusset sykkelparkering ved inngangsparti
- Marienlystparken som nærmeste nabo
- Sydvestvendt balkong med markise
- Kan gjøres om til en 3-roms
- Kort vei til Bogstadveien
- Varmtvann/fyring inkl.
- Peis i stuen
- Heis
- Felles sykkelrom i kjelleren hvor man kan oppbevare barnevogn/sykkel
- Gangavstand til Ullevaal Stadion, Universitetet i Oslo og Oslo Met
- Nyoppusset sykkelparkering ved inngangsparti
- Marienlystparken som nærmeste nabo
- Sydvestvendt balkong med markise
- Kan gjøres om til en 3-roms
- Kort vei til Bogstadveien
- Varmtvann/fyring inkl.
- Peis i stuen
- Heis
NB: Knappen for å vise hele beskrivelsen har kun en visuell effekt.
NB: Knappen for å vise hele beskrivelsen har kun en visuell effekt.
Salgsoppgaven beskriver vesentlig og lovpålagt informasjon om eiendommen
Se komplett salgsoppgaveNyttige lenker
Nærområdet
Nordvik Bygdøy Allé
Annonseinformasjon
| FINN-kode | 401124611 |
|---|---|
| Sist endret | 17. apr. 2025 12:29 |
| Referanse | 13-0152/25 |
Annonsene kan være mangelfulle i forhold til lovpålagt opplysningsplikt. Før bindende avtale inngås oppfordres interessenter til å innhente komplett informasjon fra meglerforetaket, selger eller utleier.






























