Bildegalleri

Eiendomsmegler Norge ved Kristian Lossius har gleden av å ønske deg velkommen til Tjuvhelleren 2 E!
Solgt
Hellemyr
En stor og pen 5-roms leilighet over 2 etasjer. Utgang til solrik veranda. Felles p-plass.
Prisantydning3 250 000 kr
Nøkkelinfo
- Boligtype
- Leilighet
- Eieform
- Eier (Selveier)
- Soverom
- 4
- Internt bruksareal
- 101 m² (BRA-i)
- Bruksareal
- 106 m²
- Eksternt bruksareal
- 5 m² (BRA-e)
- Balkong/Terrasse
- 8 m² (TBA)
- Etasje
- 2
- Byggeår
- 2007
- Energimerking
- C - Rød
- Rom
- 5
- Tomteareal
- 3 181 m² (eiet)
Fasiliteter
Balkong/Terrasse
Barnevennlig
Garasje/P-plass
Om boligen
Eiendomsmegler Norge ved Kristian Lossius har gleden av å ønske deg velkommen til Tjuvhelleren 2E!
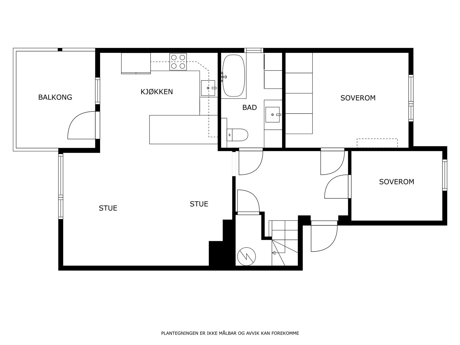
1.etg. Flislagt gang med varme i gulv. Romslig stue med god plass til både spisebord og sofagruppe. Fra stuen er det utgang til veranda med ettermiddag-/kveldssol og utsikt til lekeplassen på området. Stuen er åpen mot kjøkken. Kjøkken med hvite profilert fronter og laminat benkeplate. Benkeplate i forlengelse som barløsning. Hvitevarer medfølger salget.
Flislagt bad med varme i gulv og opplegg til vaskemaskin og tørketrommel. Videre er det 2 soverom i 1. etg. hvorav hovedsoverom har godt med skapplass. Bod under trapp.
2.etg. Består av 2 soverom, gjestetoalett, samt en romslig bod.
Medfølger en sportsbod på 5 kvm like utenfor døren.
1.etg. Flislagt gang med varme i gulv. Romslig stue med god plass til både spisebord og sofagruppe. Fra stuen er det utgang til veranda med ettermiddag-/kveldssol og utsikt til lekeplassen på området. Stuen er åpen mot kjøkken. Kjøkken med hvite profilert fronter og laminat benkeplate. Benkeplate i forlengelse som barløsning. Hvitevarer medfølger salget.
Flislagt bad med varme i gulv og opplegg til vaskemaskin og tørketrommel. Videre er det 2 soverom i 1. etg. hvorav hovedsoverom har godt med skapplass. Bod under trapp.
2.etg. Består av 2 soverom, gjestetoalett, samt en romslig bod.
Medfølger en sportsbod på 5 kvm like utenfor døren.
NB: Knappen for å vise hele beskrivelsen har kun en visuell effekt.
NB: Knappen for å vise hele beskrivelsen har kun en visuell effekt.
Salgsoppgaven beskriver vesentlig og lovpålagt informasjon om eiendommen
Se komplett salgsoppgaveNyttige lenker
Nærområdet
Eiendomsmegler Norge Kristiansand
Best der du bor
Annonseinformasjon
| FINN-kode | 401101743 |
|---|---|
| Sist endret | 05. sep. 2025 11:25 |
| Referanse | SORM11.25147 |
Annonsene kan være mangelfulle i forhold til lovpålagt opplysningsplikt. Før bindende avtale inngås oppfordres interessenter til å innhente komplett informasjon fra meglerforetaket, selger eller utleier.
































