Bildegalleri

Sørmegleren ved Henrik Lossius ønsker deg velkommen til Kornblomstveien 68!
Solgt
Justneshalvøya
Innbydende selveierleilighet med arealeffektiv planløsning. Gjennomgående god standard. Garasjeplass i kjeller.
Prisantydning3 250 000 kr
Nøkkelinfo
- Boligtype
- Leilighet
- Eieform
- Eier (Selveier)
- Soverom
- 2
- Internt bruksareal
- 74 m² (BRA-i)
- Bruksareal
- 80 m²
- Eksternt bruksareal
- 6 m² (BRA-e)
- Balkong/Terrasse
- 35 m² (TBA)
- Etasje
- 1
- Byggeår
- 2010
- Energimerking
- C - Rød
- Rom
- 3
- Tomteareal
- 717 m² (eiet)
Fasiliteter
Balkong/Terrasse
Garasje/P-plass
Hage
Rolig
Sentralt
Turterreng
Om boligen
Sørmegleren ved Henrik Lossius ønsker deg velkommen til Kornblomstveien 68!
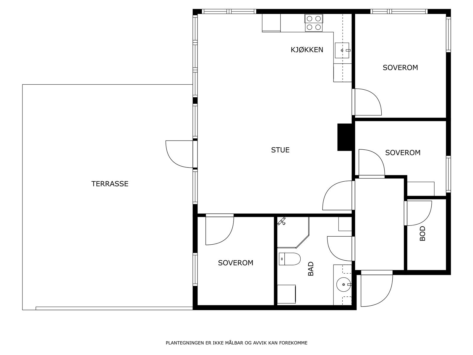
Dette er en innbydende og arealeffektiv selveierleilighet med en gjennomgående god standard. Du har inngang ved bakkeplan via felles inngangsparti. Inn til en flislagt gang/entré. Her finner du en bod med gode oppbevaringsmuligheter. Videre inn til en lys og flott stue. God plass til sofagruppe og spisebord. Utgang til solrik platting/hage. God plass til utemøbler. Denne seksjonen har bruksrett og ansvar for utvendig område som er naturlig foran denne seksjonen. Pent kjøkken fra Ikea med integrerte hvitevarer. 2 gode soverom, samt en innredet bod som i dag brukes som soverom 3. Pent flislagt bad med opplegg for vaskemaskin. Varmekabler i gulv.
Boligen har tilhørende garasjeplass, samt bod i kjeller.
Velkommen!
Dette er en innbydende og arealeffektiv selveierleilighet med en gjennomgående god standard. Du har inngang ved bakkeplan via felles inngangsparti. Inn til en flislagt gang/entré. Her finner du en bod med gode oppbevaringsmuligheter. Videre inn til en lys og flott stue. God plass til sofagruppe og spisebord. Utgang til solrik platting/hage. God plass til utemøbler. Denne seksjonen har bruksrett og ansvar for utvendig område som er naturlig foran denne seksjonen. Pent kjøkken fra Ikea med integrerte hvitevarer. 2 gode soverom, samt en innredet bod som i dag brukes som soverom 3. Pent flislagt bad med opplegg for vaskemaskin. Varmekabler i gulv.
Boligen har tilhørende garasjeplass, samt bod i kjeller.
Velkommen!
NB: Knappen for å vise hele beskrivelsen har kun en visuell effekt.
NB: Knappen for å vise hele beskrivelsen har kun en visuell effekt.
Salgsoppgaven beskriver vesentlig og lovpålagt informasjon om eiendommen
Se komplett salgsoppgaveNyttige lenker
Nærområdet
Eiendomsmegler Norge Kristiansand
Best der du bor
Annonseinformasjon
| FINN-kode | 401092381 |
|---|---|
| Sist endret | 05. sep. 2025 11:01 |
| Referanse | SORM11.25146 |
Annonsene kan være mangelfulle i forhold til lovpålagt opplysningsplikt. Før bindende avtale inngås oppfordres interessenter til å innhente komplett informasjon fra meglerforetaket, selger eller utleier.































