Bildegalleri

Velkommen til Bjørndalssletta 11, en helt nytt og ubebodd leilighet med høy moderne standard
Solgt
Bjørndalen
Helt ny ferdig selveierleilighet i populære Bjørndalen med stor felles takterrasse | Heis | Høy moderne standard
Prisantydning2 990 000 kr
Nøkkelinfo
- Boligtype
- Leilighet
- Eieform
- Eier (Selveier)
- Soverom
- 1
- Internt bruksareal
- 49 m² (BRA-i)
- Bruksareal
- 52 m²
- Eksternt bruksareal
- 3 m² (BRA-e)
- Etasje
- 3
- Byggeår
- 2025
- Energimerking
- B - Mørkegrønn
- Tomteareal
- 1 558 m² (eiet)
Fasiliteter
Takterrasse
Heis
Offentlig vann/kloakk
Parkett
Rolig
Sentralt
Utsikt
Turterreng
Om boligen
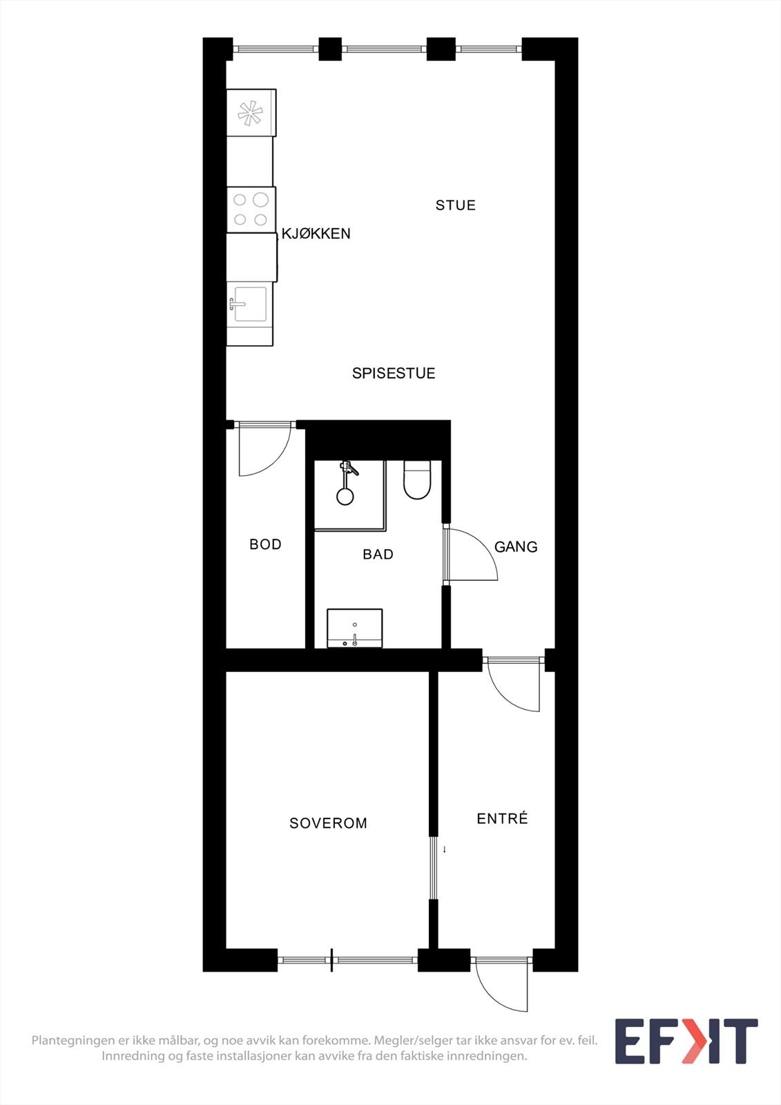
Velkommen til Bjørndalssletta 11, en fin gjennomgående leilighet med populær beliggenhet i 3. etasje i et nytt og moderne boligbygg.
Her kan du flytte rett inn, eller leie videre om du ønsker, da leiligheten selges stylet med alt av innbo og inventar som vist på visning. Dette er en unik og svært enkel mulighet. Med sin lange betongvegg skiller leiligheten seg ut fra de andre.
Leiligheten er godt utnyttet med gode arealer og har innhold:
Entré/gang, bad, stue/kjøkken og soverom.
Barnehage ligger like ved og det gangavstand til bl.a. kollektivtransport, UiA og fine turområder.
Det er bod i kjeller hvor du også finner felles sykkelparkering.
Stor felles takterrasse.
Leiligheten ble nylig overlevert av utbygger og har ca. fem års garantitid igjen.
Velkommen til visning!
Her kan du flytte rett inn, eller leie videre om du ønsker, da leiligheten selges stylet med alt av innbo og inventar som vist på visning. Dette er en unik og svært enkel mulighet. Med sin lange betongvegg skiller leiligheten seg ut fra de andre.
Leiligheten er godt utnyttet med gode arealer og har innhold:
Entré/gang, bad, stue/kjøkken og soverom.
Barnehage ligger like ved og det gangavstand til bl.a. kollektivtransport, UiA og fine turområder.
Det er bod i kjeller hvor du også finner felles sykkelparkering.
Stor felles takterrasse.
Leiligheten ble nylig overlevert av utbygger og har ca. fem års garantitid igjen.
Velkommen til visning!
NB: Knappen for å vise hele beskrivelsen har kun en visuell effekt.
NB: Knappen for å vise hele beskrivelsen har kun en visuell effekt.
Salgsoppgaven beskriver vesentlig og lovpålagt informasjon om eiendommen
Se komplett salgsoppgaveNyttige lenker
Nærområdet
Eiendomsmegler Norge Kristiansand
Best der du bor
Annonseinformasjon
| FINN-kode | 401069248 |
|---|---|
| Sist endret | 27. aug. 2025 13:22 |
| Referanse | SORM14.2556 |
Annonsene kan være mangelfulle i forhold til lovpålagt opplysningsplikt. Før bindende avtale inngås oppfordres interessenter til å innhente komplett informasjon fra meglerforetaket, selger eller utleier.






























