Bildegalleri

Velkommen til visning i Rambergveien 33!
Solgt
Kaldnes
Lekker 3-roms selveier beliggende på bryggekanten. To balkonger - en innglasset. Nydelig utsikt. Garasje og heis.
Prisantydning7 990 000 kr
Nøkkelinfo
- Boligtype
- Leilighet
- Eieform
- Eier (Selveier)
- Soverom
- 2
- Internt bruksareal
- 99 m² (BRA-i)
- Bruksareal
- 113 m²
- Eksternt bruksareal
- 5 m² (BRA-e)
- Innglasset balkong
- 9 m² (BRA-b)
- Balkong/Terrasse
- 10 m² (TBA)
- Etasje
- 3
- Byggeår
- 2016
- Energimerking
- C - Mørkegrønn
- Tomteareal
- 814 m² (eiet)
Fasiliteter
Balkong/Terrasse
Garasje/P-plass
Kabel-TV
Heis
Offentlig vann/kloakk
Utsikt
Vaktmester-/vektertjeneste
Sentralt
Moderne
Bademulighet
Om boligen
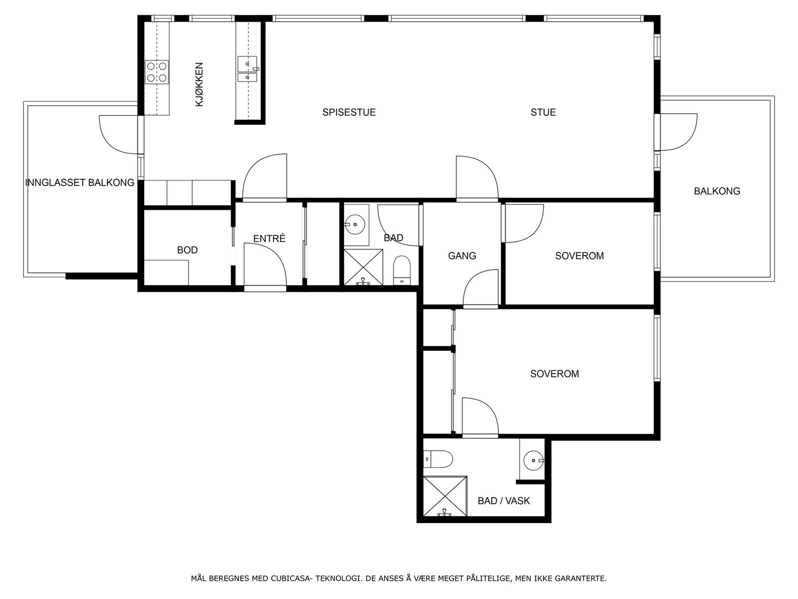
Rambergveien 33 er en lekker og gjennomgående selveierleilighet beliggende i 3. etasje. Bygget er fra 2016 og har heisadkomst til leilighetsplan. Store panoramavinduer i stuen, nordvendt balkong med innglassing og en solrik balkong mot syd ivaretar både utsikten og den maritime stemningen.
Stuen er gjennomgående, i åpen løsning til et tilbaketrukket, moderne kjøkken med integrerte hvitevarer. Soverommene har adkomst fra egen fløy med to delikate bad, begge med regnfallsdusj og det ene i suite med hovedsoverommet. Det er skyvedørsgarderobe på hovedsoverommet og i entreen, samt bod i entreen og i kjelleren. Det medfølger garasjeplass i felles oppvarmet kjeller.
Stuen er gjennomgående, i åpen løsning til et tilbaketrukket, moderne kjøkken med integrerte hvitevarer. Soverommene har adkomst fra egen fløy med to delikate bad, begge med regnfallsdusj og det ene i suite med hovedsoverommet. Det er skyvedørsgarderobe på hovedsoverommet og i entreen, samt bod i entreen og i kjelleren. Det medfølger garasjeplass i felles oppvarmet kjeller.
NB: Knappen for å vise hele beskrivelsen har kun en visuell effekt.
NB: Knappen for å vise hele beskrivelsen har kun en visuell effekt.
Salgsoppgaven beskriver vesentlig og lovpålagt informasjon om eiendommen
Se komplett salgsoppgaveNyttige lenker
Nærområdet

PrivatMegleren Tønsberg
Kun det beste på dine vegne
Annonseinformasjon
| FINN-kode | 400810106 |
|---|---|
| Sist endret | 01. juli 2025 08:28 |
| Referanse | 13250049 |
Annonsene kan være mangelfulle i forhold til lovpålagt opplysningsplikt. Før bindende avtale inngås oppfordres interessenter til å innhente komplett informasjon fra meglerforetaket, selger eller utleier.






































