Bildegalleri

Representativ bygg fra 2025. Kun 7 leiligheter i bygget - totalt 14 seksjoner i sameiet. Bygget er beliggende høyt og fritt
Inaktiv
Helt ny, attraktiv og påkostet 5-roms selveier - Stor sørvestvendt uteplass - Fantastisk utsikt - P-plass m/lader
Prisantydning22 500 000 kr
Nøkkelinfo
- Boligtype
- Leilighet
- Eieform
- Eier (Selveier)
- Soverom
- 4
- Internt bruksareal
- 160 m² (BRA-i)
- Bruksareal
- 166 m²
- Eksternt bruksareal
- 6 m² (BRA-e)
- Balkong/Terrasse
- 28 m² (TBA)
- Etasje
- 2
- Byggeår
- 2025
- Energimerking
- A - Mørkegrønn
- Rom
- 5
- Tomteareal
- 2 166 m² (eiet)
Fasiliteter
Balkong/Terrasse
Garasje/P-plass
Kabel-TV
Heis
Parkett
Peis/Ildsted
Turterreng
Utsikt
Sentralt
Moderne
Rolig
Lademulighet
Balansert ventilasjon
Om boligen
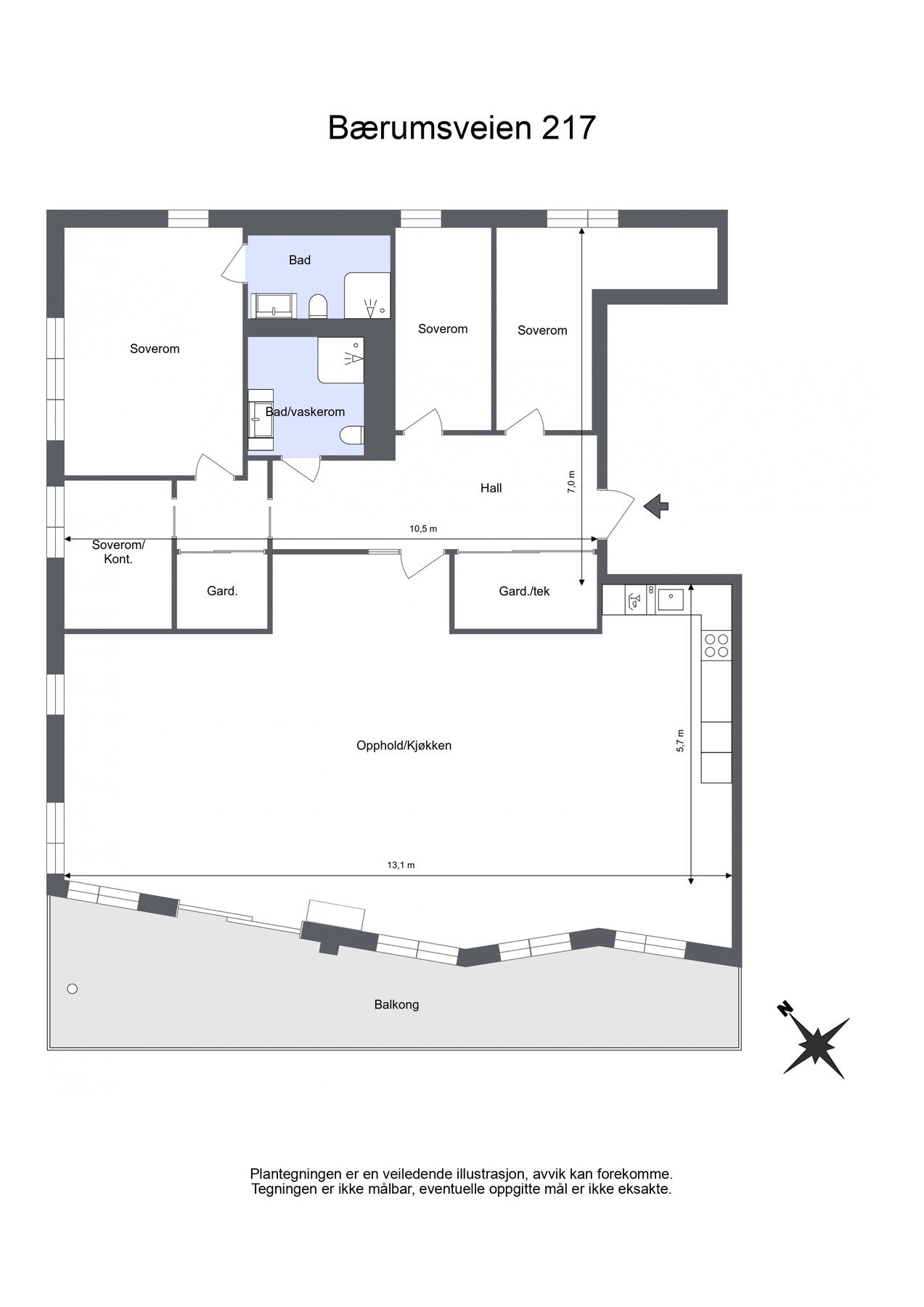
Velkommen til Bekkestua! Et attraktivt område i vekst, hvor moderne boliger, butikker og restauranter møter grønne parker og torg - perfekt for deg som ønsker en kombinasjon av byliv og naturnær ro. Området har gode kollektivtilbud med buss og T-bane til Oslo sentrum, samt nærhet til turområder, golf- og tennisbaner. Denne unike og eksklusive 5-roms hjørneleiligheten i 2. etasje har en åpen og luftig beliggenhet med flott utsikt. Den er stilfullt oppgradert og byr på en romslig planløsning på ca. 160 kvm, samt en sørvestvendt balkong på ca. 28 kvm.
Høydepunkter:
- 4 soverom, 2 bad og stort oppholdsrom
- Oppgradert Sigdal kjøkken-/bade-/ og skyvedørsinnredning
- Oppgraderte og integrerte Siemens hvitevarer
- Vannbåren gulvvarme i alle oppholdsrom. Elektrisk gulvvarme på bad
- 1-stavs eikeparkett, kalkmalte vegger
- Gasspeis og gassuttak på balkong
- Balansert ventilasjon med varmegjenvinning
- Oppgradert med nedsenhet himling og downlights
- 1 stk. sportsbod
- 1 stk. parkeringsplas
Høydepunkter:
- 4 soverom, 2 bad og stort oppholdsrom
- Oppgradert Sigdal kjøkken-/bade-/ og skyvedørsinnredning
- Oppgraderte og integrerte Siemens hvitevarer
- Vannbåren gulvvarme i alle oppholdsrom. Elektrisk gulvvarme på bad
- 1-stavs eikeparkett, kalkmalte vegger
- Gasspeis og gassuttak på balkong
- Balansert ventilasjon med varmegjenvinning
- Oppgradert med nedsenhet himling og downlights
- 1 stk. sportsbod
- 1 stk. parkeringsplas
NB: Knappen for å vise hele beskrivelsen har kun en visuell effekt.
NB: Knappen for å vise hele beskrivelsen har kun en visuell effekt.
Salgsoppgaven beskriver vesentlig og lovpålagt informasjon om eiendommen
Se komplett salgsoppgaveNyttige lenker
Nærområdet
EIE eiendomsmegling Bærum
Annonseinformasjon
| FINN-kode | 400804809 |
|---|---|
| Sist endret | 24. nov. 2025 10:19 |
| Referanse | 36251188 |
Annonsene kan være mangelfulle i forhold til lovpålagt opplysningsplikt. Før bindende avtale inngås oppfordres interessenter til å innhente komplett informasjon fra meglerforetaket, selger eller utleier.















































