Bildegalleri

Heiane 15 | Presenteres av Eiendomsmegler Preben Vatne.
Solgt
Stilfull og attraktiv funkis fra 2011 med utleieleilighet | Gode sol- og utsiktsforhold | Dobbelgarasje | Barnevennlig
Prisantydning5 490 000 kr
Nøkkelinfo
- Boligtype
- Enebolig
- Eieform
- Eier (Selveier)
- Soverom
- 4
- Internt bruksareal
- 192 m² (BRA-i)
- Bruksareal
- 240 m²
- Eksternt bruksareal
- 48 m² (BRA-e)
- Balkong/Terrasse
- 105 m² (TBA)
- Etasje
- 3
- Byggeår
- 2011
- Rom
- 7
- Tomteareal
- 969 m² (eiet)
Fasiliteter
Balkong/Terrasse
Barnevennlig
Garasje/P-plass
Hage
Offentlig vann/kloakk
Peis/Ildsted
Rolig
Utsikt
Turterreng
Om boligen
Velkommen til Heiane 15 - Boligen har en flott beliggenhet i Heiane boligfelt med nydelig sjøutsikt og gode solforhold.
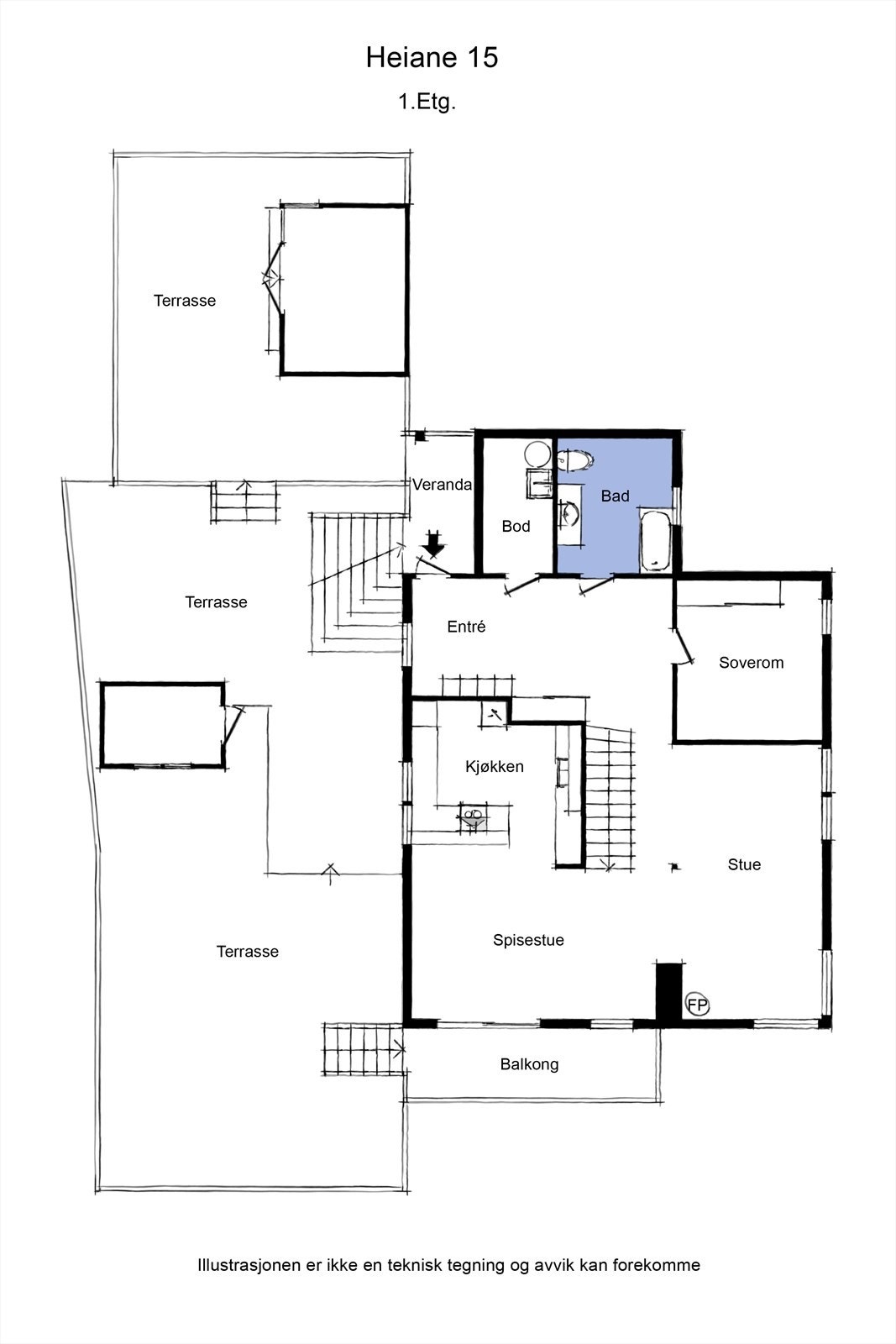
Boligen går over tre plan å inneholder:
Underetasje/Leilighet: Entré, bad/vaskerom, stue/kjøkken, soverom, kontor og teknisk rom.
Første etasje: Entré/trappehall, stue/kjøkken, soverom, bad og vaskerom.
Loftsetasje: Loftstue, 2 soverom, kontor/arbeidsrom og bad.
Kort om eiendommen:
- Unik bolig med særegne kvaliteter.
- Egen utleieleilighet. (Er pt utleid)
- Dobbel garasje med elbillader.
- Flotte opparbeide uteområder.
- Tilhørende isolert anneks.
- Flott beliggende på en høyde i feltet.
- Dette er en eiendom som bør oppleves.
Ta kontakt med Eiendomsmegler Preben Vatne for påmelding til visning eller ved spørsmål om eiendommen.
Boligen går over tre plan å inneholder:
Underetasje/Leilighet: Entré, bad/vaskerom, stue/kjøkken, soverom, kontor og teknisk rom.
Første etasje: Entré/trappehall, stue/kjøkken, soverom, bad og vaskerom.
Loftsetasje: Loftstue, 2 soverom, kontor/arbeidsrom og bad.
Kort om eiendommen:
- Unik bolig med særegne kvaliteter.
- Egen utleieleilighet. (Er pt utleid)
- Dobbel garasje med elbillader.
- Flotte opparbeide uteområder.
- Tilhørende isolert anneks.
- Flott beliggende på en høyde i feltet.
- Dette er en eiendom som bør oppleves.
Ta kontakt med Eiendomsmegler Preben Vatne for påmelding til visning eller ved spørsmål om eiendommen.
NB: Knappen for å vise hele beskrivelsen har kun en visuell effekt.
NB: Knappen for å vise hele beskrivelsen har kun en visuell effekt.
Salgsoppgaven beskriver vesentlig og lovpålagt informasjon om eiendommen
Se komplett salgsoppgaveNyttige lenker
Nærområdet
Eiendomsmegler Norge Nordhordland
Best der du bor
Annonsene kan være mangelfulle i forhold til lovpålagt opplysningsplikt. Før bindende avtale inngås oppfordres interessenter til å innhente komplett informasjon fra meglerforetaket, selger eller utleier.













































