Bildegalleri

Velkommen til Grønsundveien 102 - Presentert av Ulrik Bøe V/Privatmegleren Dyve & Partnere
Innholdsrik og påkostet vertikaldelt tomannsbolig I Moderne standard I Flott hage I Særs barnevennlig I Båtplass*
Nøkkelinfo
- Boligtype
- Tomannsbolig
- Eieform
- Eier (Selveier)
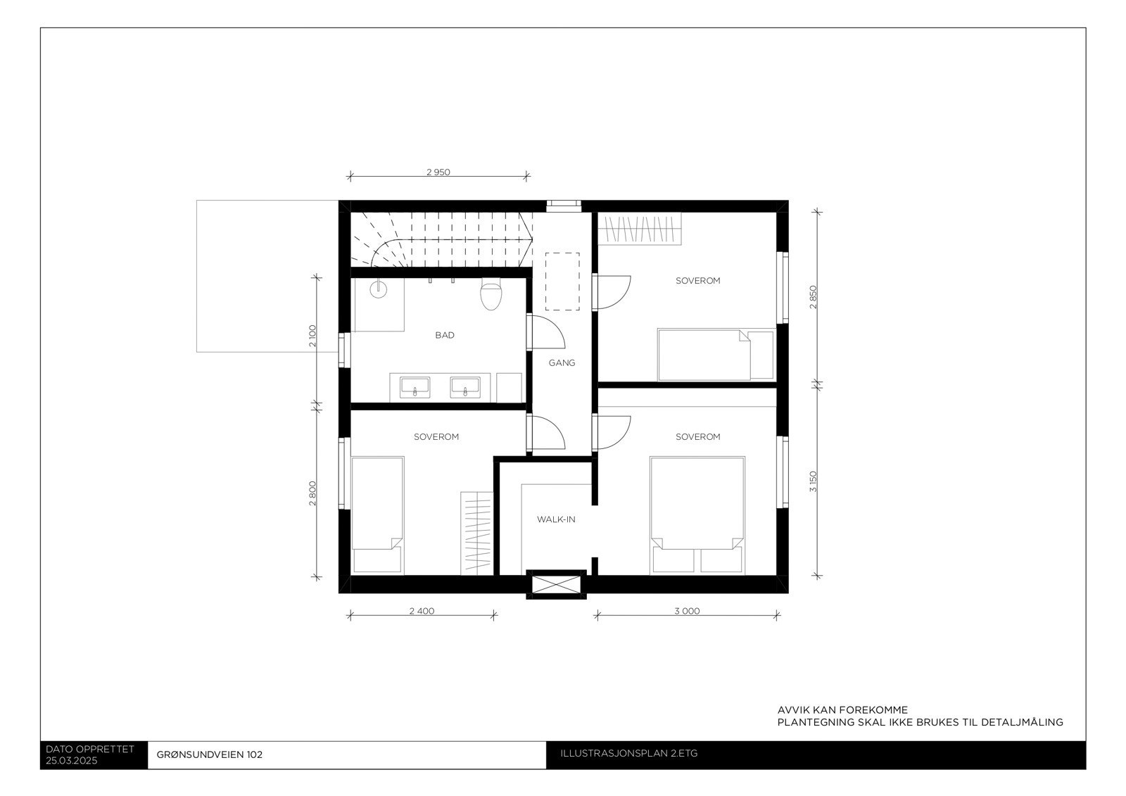
- Soverom
- 3
- Internt bruksareal
- 136 m² (BRA-i)
- Bruksareal
- 136 m²
- Balkong/Terrasse
- 25 m² (TBA)
- Byggeår
- 1969
- Energimerking
- E - Gul
- Rom
- 5
- Tomteareal
- 256 m² (eiet)
- Boligselgerforsikring
- Ja
Fasiliteter
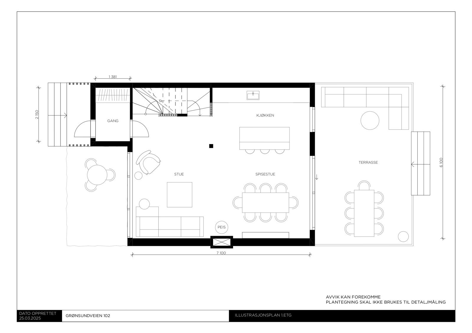
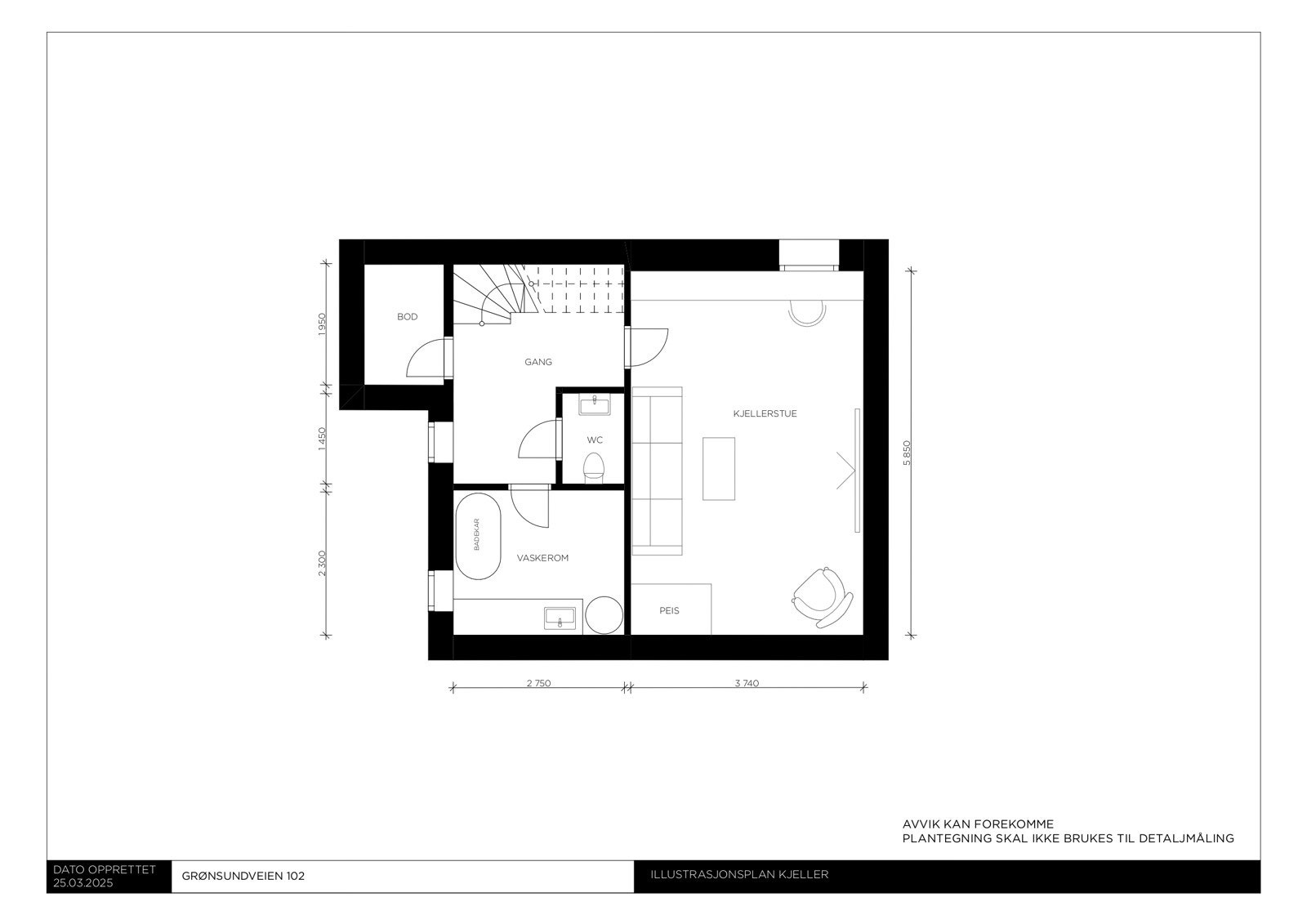
Om boligen
Velkommen til Grønsundveien 102. En innholdsrik og påkostet halvpart av tomannsbolig med moderne standard og særdeles attraktiv beliggenhet på Nesbru. Boligen er oppgradert de senere årene og har en gjennomtenkt planløsning over tre plan. Her bor du i rolige omgivelser med kort gangavstand til sjøen, idylliske badeplasser og båthavn der boligen har rett til båtplass. Stor terrasse og usjenert hage med sol fra morgen til kveld.
Høydepunkter:
- Påkostet tomannsbolig over 3 plan
- Alle overflater er pusset opp
- Gjennomgående moderne standard
- Tre soverom samlet i én etasje
- Kjellerstue med peis
- KVIK-kjøkken
- Solrik terrasse og usjenert hage
- Rett til egen båtplass
- Garasje og elbillader på oppstillingsplass
- Rolig blindvei
- Nær butikker, skoler, barnehager og kollektivtransport
Salgsoppgaven beskriver vesentlig og lovpålagt informasjon om eiendommen
Se komplett salgsoppgaveNyttige lenker
Nærområdet

PrivatMegleren Dyve & Partnere
Annonseinformasjon
| FINN-kode | 400714723 |
|---|---|
| Sist endret | 30. mai 2025 14:34 |
| Referanse | 159250175 |
Annonsene kan være mangelfulle i forhold til lovpålagt opplysningsplikt. Før bindende avtale inngås oppfordres interessenter til å innhente komplett informasjon fra meglerforetaket, selger eller utleier.



















































