Bildegalleri

Stor, sørvendt balkong med fantastisk utsikt!
Stor og flott 3(4)-roms leilighet med meget gode sol- og utsiktsforhold. Overbygget, sydvendt balkong. Garasjeplass.
Nøkkelinfo
- Boligtype
- Leilighet
- Eieform
- Andel
- Soverom
- 2
- Internt bruksareal
- 93 m² (BRA-i)
- Bruksareal
- 95 m²
- Eksternt bruksareal
- 2 m² (BRA-e)
- Balkong/Terrasse
- 13 m² (TBA)
- Byggeår
- 1976
- Energimerking
- E - Rød
- Tomteareal
- 25 258 m² (eiet)
Fasiliteter
Om boligen
Myrehagen 18 ligger sentralt og fint til i høyden på Åssiden med svært gode solforhold og fantastisk utsikt. Populært område med nærhet til skoler, barnehager, offentlig kommunikasjon, samt et rikt utvalg av fasiliteter og servicetilbud. Umiddelbar nærhet til flotte friarealer i marka med alpinanlegg og tur/skiløyper. Meget gunstig busskommunikasjon i nærheten. Nærmeste bussholdeplass er Myrehagen bussholdeplass og ligger ca. 30 meter unna med direkte adkomst via trapp bak leiligheten.
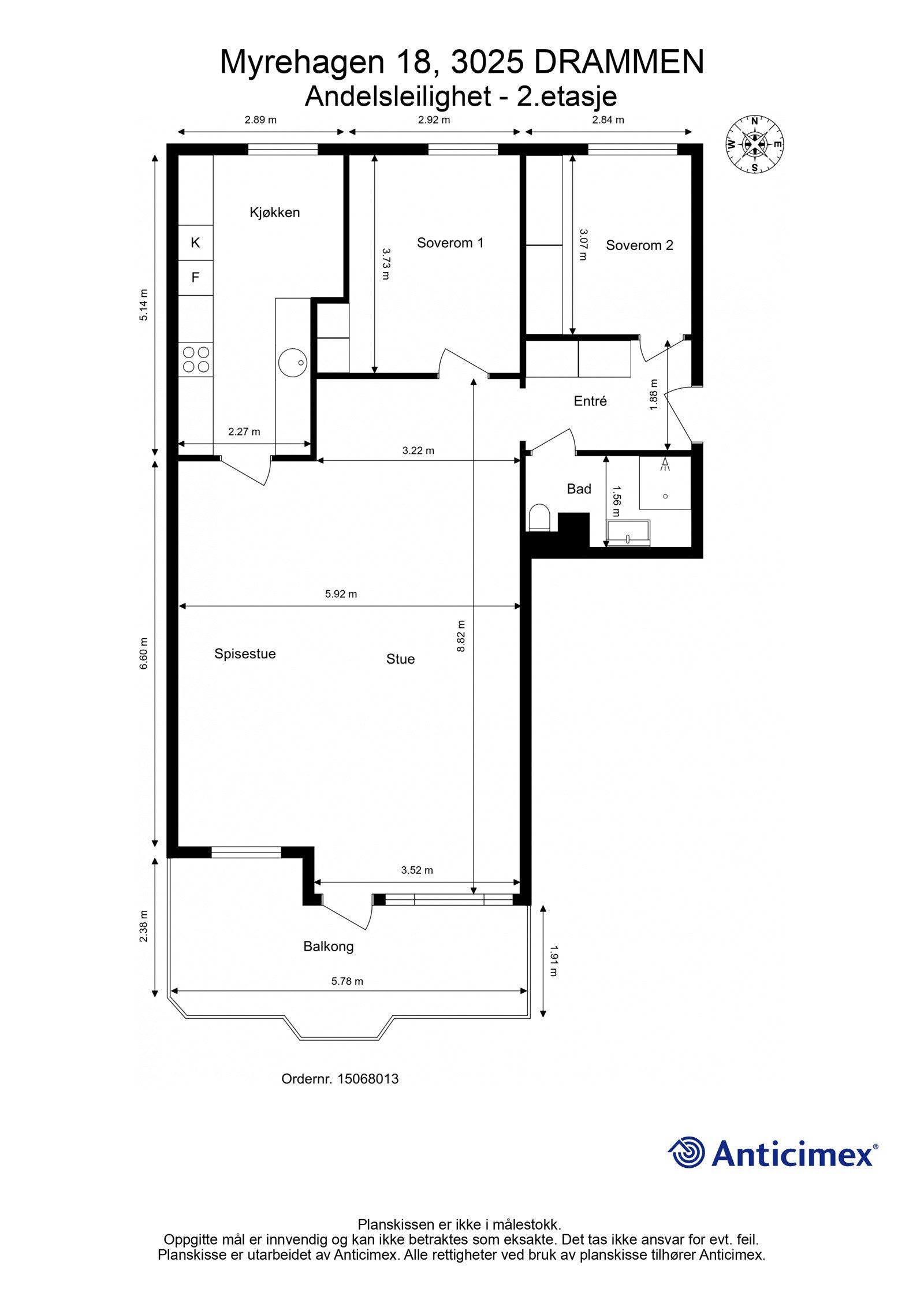
Leiligheten er opprinnelig med tre soverom. Fin planløsning som inneholder følgende rom:
Entré, bad/wc, spisestue, stue, kjøkken og to soverom.
- Garasjeplass i fellesanlegg med infrastruktur for elbillading
- To eksterne boder
- Utgang fra stue til sørvendt balkong på 13 kvm
Velkommen til visning!
Salgsoppgaven beskriver vesentlig og lovpålagt informasjon om eiendommen
Se komplett salgsoppgaveNyttige lenker
Nærområdet
Dialog Eiendomsmegling AS avd Drammen
Annonsene kan være mangelfulle i forhold til lovpålagt opplysningsplikt. Før bindende avtale inngås oppfordres interessenter til å innhente komplett informasjon fra meglerforetaket, selger eller utleier.


































