Bildegalleri

Utsikt fra stort soverom mot nord. Sameiets tomt skrår svakt fra nord ned mot sør. Tomten består av naturtomt, noe plen og grusede kjøreveier og parkeringsarealer.
Midt i Kautokeino, nært alt. Bud mottatt med frist 11/4
Nøkkelinfo
- Boligtype
- Leilighet
- Eieform
- Eier (Selveier)
- Soverom
- 2
- Internt bruksareal
- 62 m² (BRA-i)
- Bruksareal
- 62 m²
- Eksternt bruksareal
- 62 m² (BRA-e)
- Etasje
- 2
- Byggeår
- 1970
- Tomteareal
- 1 681 m² (eiet)
Fasiliteter
Om tomten
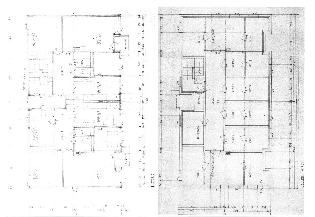
2-roms leilighet beliggende i 2. etasje i 4-mannsbolig. Leiligheten er har et pent fargevalg i
stue og kjøkkendel. Boligen ligger sentralt til i Kautokeino, med gangavstand til sentrum.
Leiligheten har en fin planløsning og 2 boder i kjelleren. Leiligheten er av eldre dato, så
oppussing må påregnes. Interessenter oppfordres til å sette seg godt inn i
tilstandsrapportene for leiligheten og bygget, samt selgers egenerklæring.
Innvendig standard er som følger:
Gulv: Laminat og belegg
Vegger: Trepanel og malte veggplater.
Tak: Himlingsplater.
Beliggenhet
Boligen ligger sentralt til i Kautokeino, med gangavstand til sentrum med butikker og servicetilbud. Det er gangavstand til både barnehage, barne- og ungdomsskolen, Samisk videregående skole og Reindriftsskole samt Samisk høyskole. Nærmeste nabo til Thon Hotell kautokeino, også kort
vei til flere arbeidsplasser i sentrum, Coop Ekstra og Bakteharji (Bygdas idrettshall og storstue).
Annet
NB! Vedlagt er takst fra 2022, men ny takst er bestilt og vil foreligge før påske.
Omkostninger
9 900 kr (HELP boligkjøperforsikring (valgfritt))
33 750 kr (Dokumentavgift)
545 kr (Tinglysing av pantedokument)
545 kr (Tinglysing av skjøte)
---
44 740 kr (Omkostninger totalt)
---
1 394 740 kr (Totalpris inkl. omkostninger)
NB: Regnestykket forutsetter at det kun tinglyses én låneobligasjon og at eiendommen selges til prisantydning.
Det tas forbehold om endringer i offentlige og private gebyrer.
Selger er selv ansvarlig for følgende gebyr:
545 kr (Panterett med urådighet)
Salgsoppgaven beskriver vesentlig og lovpålagt informasjon om eiendommen
Se komplett salgsoppgaveNyttige lenker
Nærområdet
Annonsene kan være mangelfulle i forhold til lovpålagt opplysningsplikt. Før bindende avtale inngås oppfordres interessenter til å innhente komplett informasjon fra meglerforetaket, selger eller utleier.







































