Bildegalleri

Velkommen til Grensegata 38! Presentert av Krogsveen Lillestrøm v/Anine Holter.
Solgt
Volla
Innholdsrik og attraktiv familieleilighet over to plan med sentral beliggenhet på Volla | Parkeringsplass med lader
Prisantydning5 500 000 kr
Nøkkelinfo
- Boligtype
- Leilighet
- Eieform
- Andel
- Soverom
- 3
- Internt bruksareal
- 104 m² (BRA-i)
- Bruksareal
- 104 m²
- Balkong/Terrasse
- 27 m² (TBA)
- Etasje
- 1
- Byggeår
- 1953
- Energimerking
- F - Oransje
- Rom
- 5
- Tomteareal
- 9 529 m² (eiet)
Fasiliteter
Balkong/Terrasse
Barnevennlig
Garasje/P-plass
Hage
Kjæledyr tillatt
Kabel-TV
Offentlig vann/kloakk
Peis/Ildsted
Rolig
Sentralt
Turterreng
Lademulighet
Om boligen
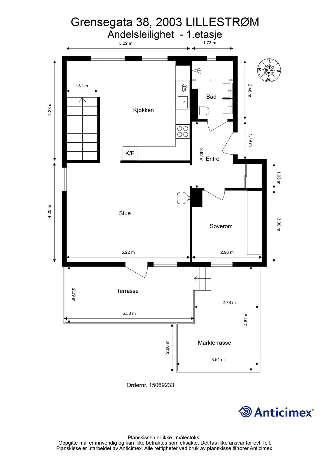
Velkommen til Grensegata 38! Krogsveen Lillestrøm v/Anine Holter har gleden av å presentere en lekker og attraktiv leilighet over 2 plan med sentral beliggenhet på Volla i Lillestrøm. Leiligheten ligger i en firemannsbolig, i et rolig og barnevennlig område. Her har du flotte rekreasjonsmuligheter langs Nitelva og gangavstand til barnehager/skoler samt Nebbursvollen. Kort vei til sentrum og togstasjon.
Verdt å merke seg:
*Sosial første etasje med delvis åpen stue/kjøkken løsning
*Bad renovert i 2018
*Kjeller med tre soverom - ett ikke omsøkt/godkjent
*Overbygget balkong og stor terrasseplatting
*Adkomst til hage
*Parkeringsplass med elbil-lader
*Sentral og attraktiv beliggenhet
Velkommen til hyggelig visning!
Verdt å merke seg:
*Sosial første etasje med delvis åpen stue/kjøkken løsning
*Bad renovert i 2018
*Kjeller med tre soverom - ett ikke omsøkt/godkjent
*Overbygget balkong og stor terrasseplatting
*Adkomst til hage
*Parkeringsplass med elbil-lader
*Sentral og attraktiv beliggenhet
Velkommen til hyggelig visning!
NB: Knappen for å vise hele beskrivelsen har kun en visuell effekt.
NB: Knappen for å vise hele beskrivelsen har kun en visuell effekt.
Salgsoppgaven beskriver vesentlig og lovpålagt informasjon om eiendommen
Se komplett salgsoppgaveNyttige lenker
Nærområdet
Krogsveen Lillestrøm
Verdien av en god megler.
Annonseinformasjon
| FINN-kode | 400687678 |
|---|---|
| Sist endret | 12. apr. 2025 13:39 |
| Referanse | KR60.24396 |
Annonsene kan være mangelfulle i forhold til lovpålagt opplysningsplikt. Før bindende avtale inngås oppfordres interessenter til å innhente komplett informasjon fra meglerforetaket, selger eller utleier.






































