Bildegalleri

Terrassen ut mot sør er stor og har gode solforhold og luftig utsikt over nabolaget
Solgt
Tjensvoll
Gjennomgående topp-og hjørneleilighet med populær beliggenhet, 3 soverom og fast parkering. Ingen dok.avgift.
Prisantydning4 190 000 kr
Nøkkelinfo
- Boligtype
- Leilighet
- Eieform
- Andel
- Soverom
- 3
- Internt bruksareal
- 81 m² (BRA-i)
- Bruksareal
- 88 m²
- Eksternt bruksareal
- 7 m² (BRA-e)
- Balkong/Terrasse
- 25 m² (TBA)
- Etasje
- 4
- Byggeår
- 1976
- Energimerking
- G - Rød
- Rom
- 4
- Tomteareal
- 8 947 m² (eiet)
Fasiliteter
Balkong/Terrasse
Garasje/P-plass
Kabel-TV
Offentlig vann/kloakk
Turterreng
Utsikt
Vaktmester-/vektertjeneste
Bredbåndstilknytning
Moderne
Om boligen
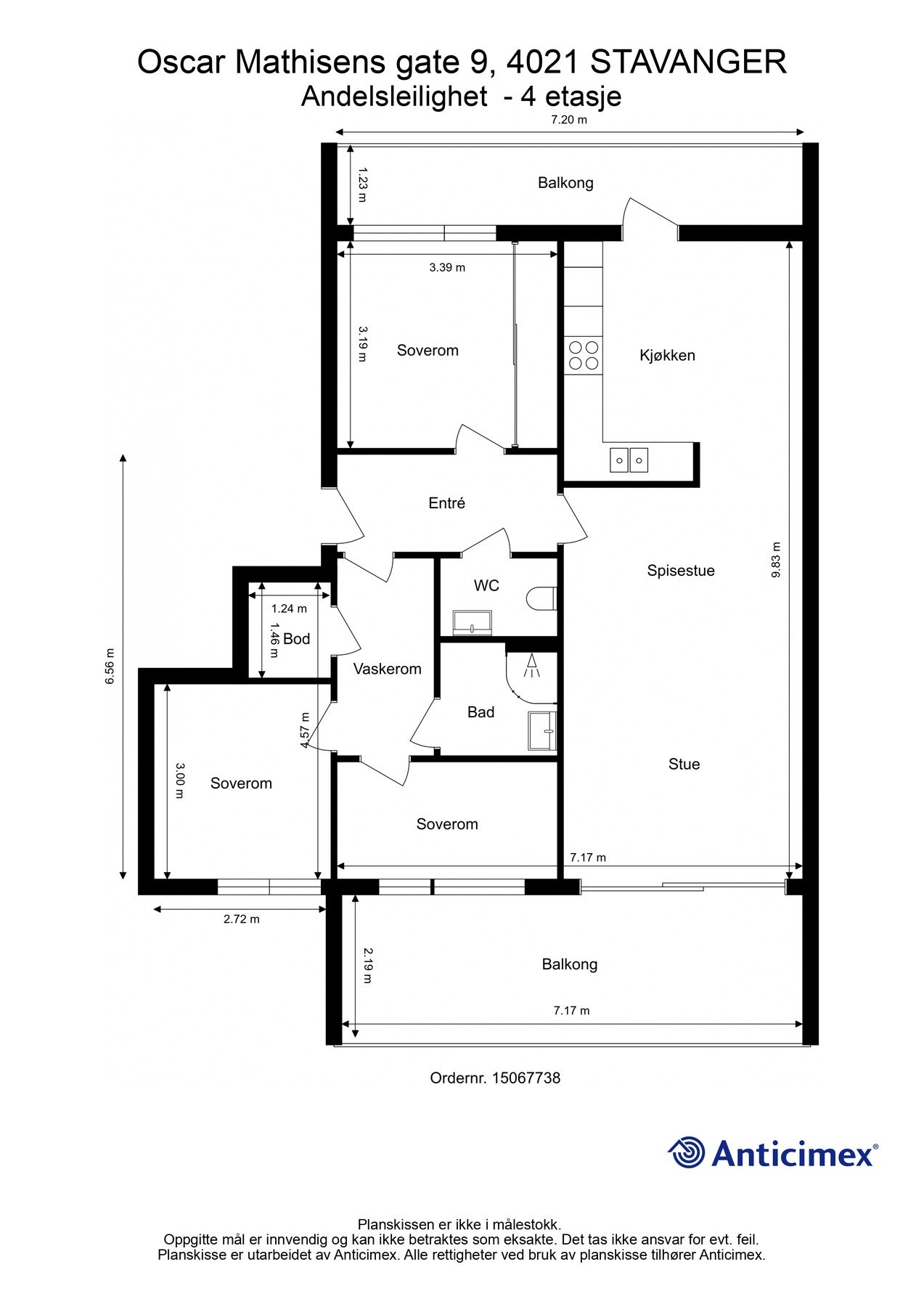
Stor topp- og hjørneleilighet i 4.etg med bra planløsning beliggende i et populært område på Tjensvoll. Leiligheten er gjennomgående, hvilket betyr at man har terrasser på begge sider og solfylte dager kan nytes både dag og kveld om sommeren.
Innhold: Romslig gang, vaskerom, bod, bad, wc, kjøkken, stue og tre soverom. I tillegg er det en bod i kjeller på 7 kvm.
Kort om boligen:
- 3 romslige soverom
- To terrasser, en mot sør og en mot nordvest
- Fast p-plass med el-bil lader
- Tidløst kjøkken fra 2013 (Ikea)
- Separat wc (modernisert i 2016)
- Ny taktekking i 2012/13
- Byttet og etterisolert gavlvegger i 2014
- Felles gang pusset opp i 2018
- Vinduer fra 2006
- Fint kjøkken m/integrerte hvitevarer
- Mulighet for el-bil lading
- Tv og internett inkludert i fellesutgifter
- Gåavstand til buss, butikk, treningssenter og kjøpesenter og UiS
- Ingen dokumentavgift ved kjøp
Innhold: Romslig gang, vaskerom, bod, bad, wc, kjøkken, stue og tre soverom. I tillegg er det en bod i kjeller på 7 kvm.
Kort om boligen:
- 3 romslige soverom
- To terrasser, en mot sør og en mot nordvest
- Fast p-plass med el-bil lader
- Tidløst kjøkken fra 2013 (Ikea)
- Separat wc (modernisert i 2016)
- Ny taktekking i 2012/13
- Byttet og etterisolert gavlvegger i 2014
- Felles gang pusset opp i 2018
- Vinduer fra 2006
- Fint kjøkken m/integrerte hvitevarer
- Mulighet for el-bil lading
- Tv og internett inkludert i fellesutgifter
- Gåavstand til buss, butikk, treningssenter og kjøpesenter og UiS
- Ingen dokumentavgift ved kjøp
NB: Knappen for å vise hele beskrivelsen har kun en visuell effekt.
NB: Knappen for å vise hele beskrivelsen har kun en visuell effekt.
Salgsoppgaven beskriver vesentlig og lovpålagt informasjon om eiendommen
Se komplett salgsoppgaveNyttige lenker
Nærområdet
Verdi &Partners Stavanger
Verdien av lokalkunnskap
Annonseinformasjon
| FINN-kode | 400658954 |
|---|---|
| Sist endret | 20. juni 2025 07:08 |
| Referanse | 204250018 |
Annonsene kan være mangelfulle i forhold til lovpålagt opplysningsplikt. Før bindende avtale inngås oppfordres interessenter til å innhente komplett informasjon fra meglerforetaket, selger eller utleier.





















