Bildegalleri

Velkommen til Tangenvegen 4, presentert av Malin Goa i Nordvik!
Inaktiv
Fjerdingby
Romslig enebolig med garasje, stor hage, terrasse og nydelig utsikt. Underetasje med egen inngang. Nærhet til Lillestrøm
Prisantydning6 490 000 kr
Nøkkelinfo
- Boligtype
- Enebolig
- Eieform
- Eier (Selveier)
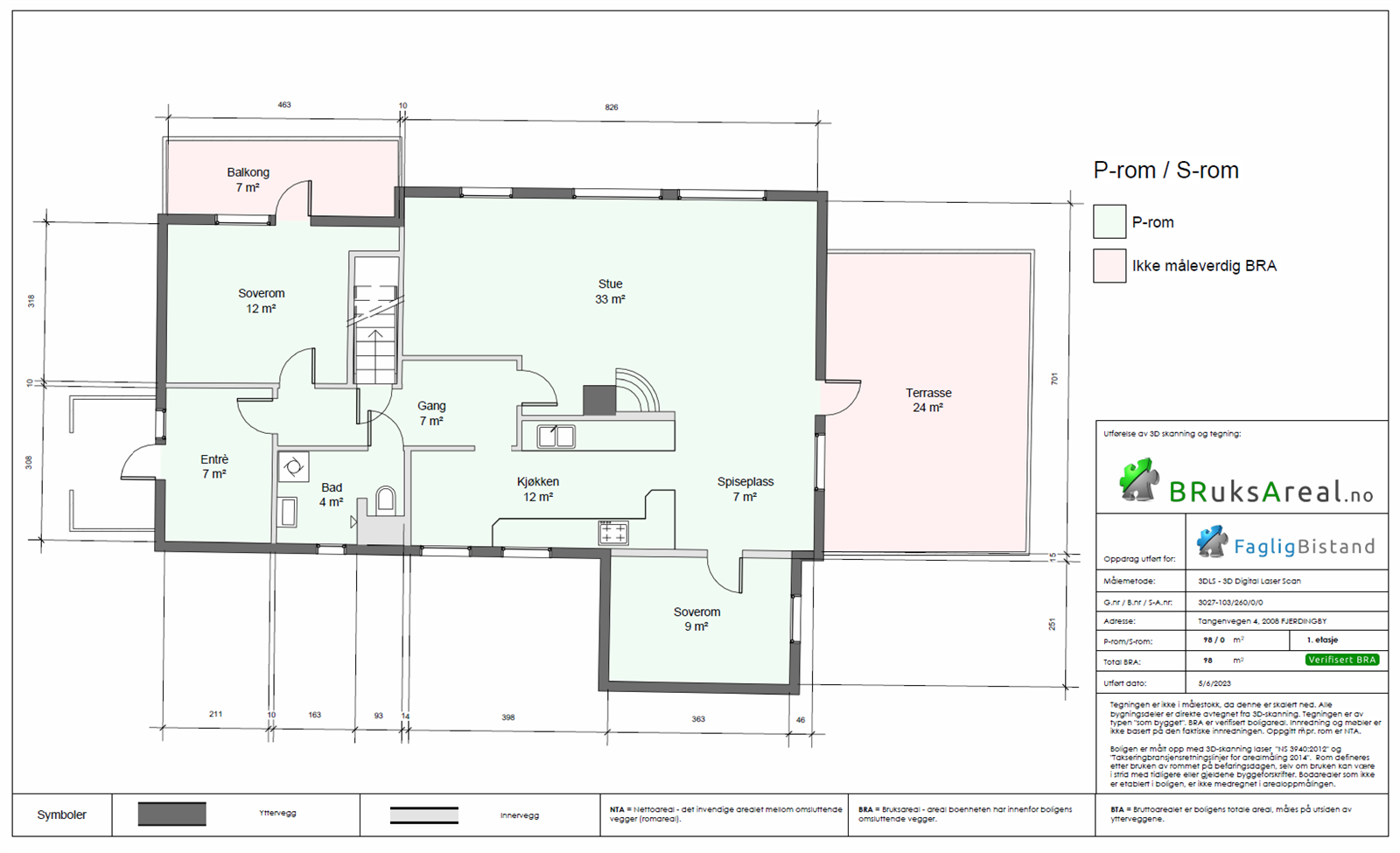
- Soverom
- 3
- Internt bruksareal
- 178 m² (BRA-i)
- Bruksareal
- 178 m²
- Balkong/Terrasse
- 31 m² (TBA)
- Etasje
- 2
- Byggeår
- 1975
- Energimerking
- F - Oransje
- Rom
- 5
- Tomteareal
- 806 m² (eiet)
Fasiliteter
Alpinanlegg
Balkong/Terrasse
Barnevennlig
Bredbåndstilknytning
Garasje/P-plass
Hage
Kjæledyr tillatt
Kabel-TV
Offentlig vann/kloakk
Parkett
Peis/Ildsted
Rolig
Sentralt
Bademulighet
Turterreng
Om boligen
Tangenvegen 4 er en romslig og innholdsrik enebolig over to etasjer - perfekt for barnefamilier. Her bor man i et attraktivt og barnevennlig område, med nærhet til skoler, butikker, flotte turmuligheter og Lillestrøm. Boligen ligger idyllisk til ved Nitelva, med stor hage og nydelig utsikt over nærliggende natur. Livet utendørs nytes til fulle på en balkong og på en herlig terrasse.
Boligen har noe behov for modernisering, men potensialet er stort og her kan man virkelig sette sitt eget preg. Stuen er stor med peis, mye lys og strålende utsikt, mens kjøkkenet har oppvaskmaskin og godt med skapplass. Videre er det to bad, en kjellerstue og tre soverom, hvor to har garderobeskap. Underetasjen har egen inngang. Det er parkering i en garasje og på en gruslagt gårdsplass.
Boligen har noe behov for modernisering, men potensialet er stort og her kan man virkelig sette sitt eget preg. Stuen er stor med peis, mye lys og strålende utsikt, mens kjøkkenet har oppvaskmaskin og godt med skapplass. Videre er det to bad, en kjellerstue og tre soverom, hvor to har garderobeskap. Underetasjen har egen inngang. Det er parkering i en garasje og på en gruslagt gårdsplass.
NB: Knappen for å vise hele beskrivelsen har kun en visuell effekt.
NB: Knappen for å vise hele beskrivelsen har kun en visuell effekt.
Salgsoppgaven beskriver vesentlig og lovpålagt informasjon om eiendommen
Se komplett salgsoppgaveNyttige lenker
Nærområdet
Nordvik Lillestrøm
Annonseinformasjon
| FINN-kode | 400632448 |
|---|---|
| Sist endret | 26. mai 2025 11:43 |
| Referanse | 60-0196/23 |
Annonsene kan være mangelfulle i forhold til lovpålagt opplysningsplikt. Før bindende avtale inngås oppfordres interessenter til å innhente komplett informasjon fra meglerforetaket, selger eller utleier.



































