Bildegalleri

Solgt
Kilsund
Klassisk enebolig på stor og solrik tomt -Koselig hage med utestue -Kort vei til sjøen og fine turområder
Prisantydning3 290 000 kr
Nøkkelinfo
- Boligtype
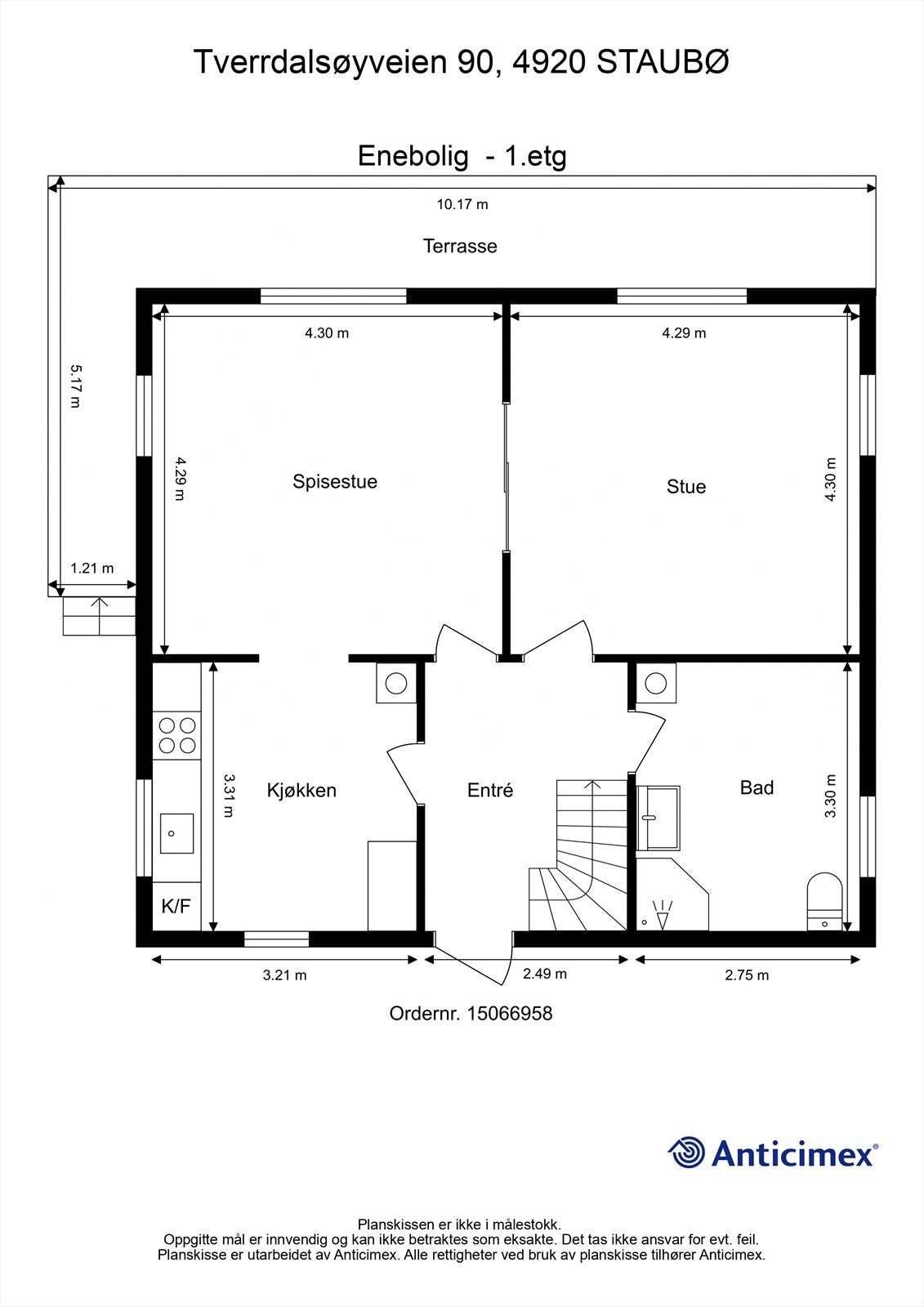
- Enebolig
- Eieform
- Eier (Selveier)
- Soverom
- 4
- Internt bruksareal
- 133 m² (BRA-i)
- Bruksareal
- 211 m²
- Eksternt bruksareal
- 78 m² (BRA-e)
- Balkong/Terrasse
- 48 m² (TBA)
- Byggeår
- 1930
- Energimerking
- G - Gul
- Tomteareal
- 1 492 m² (eiet)
Fasiliteter
Balkong/Terrasse
Barnevennlig
Garasje/P-plass
Hage
Offentlig vann/kloakk
Peis/Ildsted
Turterreng
Om boligen
Sjarmerende frittliggende enebolig solrikt beliggende på pent opparbeidet tomt.
Boligen er oppført over to etasjer og kjeller, og har et klassisk tidløst preg hvor det bl.a er ivaretatt gamle gulvflater og dører i heltre. Hovedplan har god takhøyde med luftige rom og det er store vindusflater som gir rikelig med naturlig lys.
Hagen har uteplasser over flere soner og har godt med boltreplass. Tomten er opparbeidet med plen, belegningsstein, beplantninger og utestue med terrasse foran hvor det er fin kveldssol.
Fra eiendommen er det kort vei til sjøen med fine badeplasser, vakre turområder, barnehage, skole, bussforbindelser og dagligvarebutikk.
Kilsund befinner seg mellom Arendal og Tvedestrand og området byr på øyer, holmer og lune viker, og er godt kjent for den fantastiske skjærgården.
Boligen er oppført over to etasjer og kjeller, og har et klassisk tidløst preg hvor det bl.a er ivaretatt gamle gulvflater og dører i heltre. Hovedplan har god takhøyde med luftige rom og det er store vindusflater som gir rikelig med naturlig lys.
Hagen har uteplasser over flere soner og har godt med boltreplass. Tomten er opparbeidet med plen, belegningsstein, beplantninger og utestue med terrasse foran hvor det er fin kveldssol.
Fra eiendommen er det kort vei til sjøen med fine badeplasser, vakre turområder, barnehage, skole, bussforbindelser og dagligvarebutikk.
Kilsund befinner seg mellom Arendal og Tvedestrand og området byr på øyer, holmer og lune viker, og er godt kjent for den fantastiske skjærgården.
NB: Knappen for å vise hele beskrivelsen har kun en visuell effekt.
NB: Knappen for å vise hele beskrivelsen har kun en visuell effekt.
Salgsoppgaven beskriver vesentlig og lovpålagt informasjon om eiendommen
Se komplett salgsoppgaveNyttige lenker
Nærområdet
Krogsveen Arendal
Verdien av en god megler.
Annonseinformasjon
| FINN-kode | 400618612 |
|---|---|
| Sist endret | 17. okt. 2025 06:43 |
| Referanse | KR47.24190 |
Annonsene kan være mangelfulle i forhold til lovpålagt opplysningsplikt. Før bindende avtale inngås oppfordres interessenter til å innhente komplett informasjon fra meglerforetaket, selger eller utleier.





























