Bildegalleri

Privatmegleren presenterer Nordhagaveien 29B
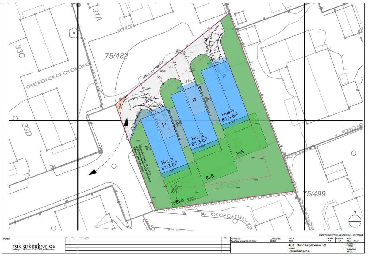
Ny enebolig under oppføring - Rolig villaområde - Praktikantdel - Overtagelse aug/sept - Salg av kontraktsposisjon
Nøkkelinfo
- Boligtype
- Enebolig
- Eieform
- Eier (Selveier)
- Soverom
- 4
- Internt bruksareal
- 171 m² (BRA-i)
- Bruksareal
- 206 m²
- Eksternt bruksareal
- 35 m² (BRA-e)
- Balkong/Terrasse
- 6 m² (TBA)
- Byggeår
- 2025
- Energimerking
- B - Oransje
- Tomteareal
- 1 024 m² (eiet)
Fasiliteter
Visning
Om boligen
Dette er salg av kontraktsposisjon
Nordhagaveien 29B er en ny enebolig under oppføring med forventet ferdigstillelse august/september 2025. Boligen ligger i et stille rolig villastrøk på Grefsen med kort vei til marka, grønne lunger, skoler, butikker og offentlig kommunikasjon.
De kommende eneboligene i Nordhagaveien 29 tegnet av Rak Arkitektur AS, tilbyr moderne arkitektur og gjennomtenkte designelementer, skapt for både estetikk og komfort.
Inneholder:
1. etasje: Entré, stue, vaskerom/bod, gjestesoverom (praktikantdel), bad. Garasje med bilheis.
2. etasje: Stue/spisestue med utgang balkong, kjøkken, hovedsoverom, bad.
3. etasje: Gang/loftstue, tre soverom hvorav to med utgang til balkong, bad.
Salgsoppgaven beskriver vesentlig og lovpålagt informasjon om eiendommen
Se komplett salgsoppgaveNyttige lenker
Nærområdet

PrivatMegleren Renommé
Annonseinformasjon
| FINN-kode | 400594864 |
|---|---|
| Sist endret | 29. aug. 2025 07:49 |
| Referanse | 40250056 |
Annonsene kan være mangelfulle i forhold til lovpålagt opplysningsplikt. Før bindende avtale inngås oppfordres interessenter til å innhente komplett informasjon fra meglerforetaket, selger eller utleier.




















