Bildegalleri

I stuen er det gasspeis og store vindusflater
Solgt
Engene
BUD MOTTATT! Knallfin treroms med solrik balkong - Bod og carport med elbillader
Prisantydning2 450 000 kr
Nøkkelinfo
- Boligtype
- Leilighet
- Eieform
- Eier (Selveier)
- Soverom
- 2
- Internt bruksareal
- 61 m² (BRA-i)
- Bruksareal
- 66 m²
- Eksternt bruksareal
- 5 m² (BRA-e)
- Balkong/Terrasse
- 11 m² (TBA)
- Etasje
- 2
- Byggeår
- 2013
- Energimerking
- C - Rød
- Rom
- 3
- Tomteareal
- 4 830 m² (eiet)
Fasiliteter
Balkong/Terrasse
Barnevennlig
Bredbåndstilknytning
Garasje/P-plass
Hage
Kjæledyr tillatt
Offentlig vann/kloakk
Parkett
Peis/Ildsted
Rolig
Sentralt
Bademulighet
Turterreng
Lademulighet
Balansert ventilasjon
Om boligen
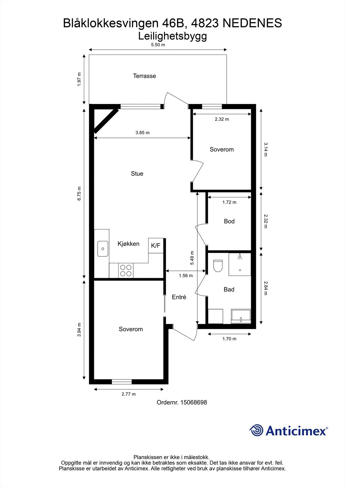
Leiligheten ligger flott til i 2. etasje med enkel adkomst. Det tilhører en romslig sportsbod med hyllestativer og lås foran carporten. Leiligheten inneholder gang, bad/vaskerom, to soverom, bod/teknisk rom og stue/kjøkken i åpen løsning. Leiligheten er innbydende og har blitt oppgradert med bl.a. markise, innvendig solskjerming, spotter med dimmer i gang og litt av stuen, malt i moderne farger, beiset balkongen, installert elbillader (2024) og noe mer. Balkongen er solrik og rommer både grill og hagemøbler.
Fra leiligheten er det få minutter til dagligvarebutikker på Nedenes Torg og Feviktoppen (ca. 4 min.). Barnehage og turveier finnes få meter unna og det er ca. 12-14 minutter kjøring til Arendal eller Grimstad sentrum fra eiendommen. Bussholdeplass rett ved og lave felleskostnader!
Fra leiligheten er det få minutter til dagligvarebutikker på Nedenes Torg og Feviktoppen (ca. 4 min.). Barnehage og turveier finnes få meter unna og det er ca. 12-14 minutter kjøring til Arendal eller Grimstad sentrum fra eiendommen. Bussholdeplass rett ved og lave felleskostnader!
NB: Knappen for å vise hele beskrivelsen har kun en visuell effekt.
NB: Knappen for å vise hele beskrivelsen har kun en visuell effekt.
Salgsoppgaven beskriver vesentlig og lovpålagt informasjon om eiendommen
Se komplett salgsoppgaveNyttige lenker
Nærområdet
Krogsveen Arendal
Velkommen til en enklere boligreise.
Annonseinformasjon
| FINN-kode | 400463826 |
|---|---|
| Sist endret | 30. juni 2025 07:57 |
| Referanse | KR47.2547 |
Annonsene kan være mangelfulle i forhold til lovpålagt opplysningsplikt. Før bindende avtale inngås oppfordres interessenter til å innhente komplett informasjon fra meglerforetaket, selger eller utleier.

































