Bildegalleri

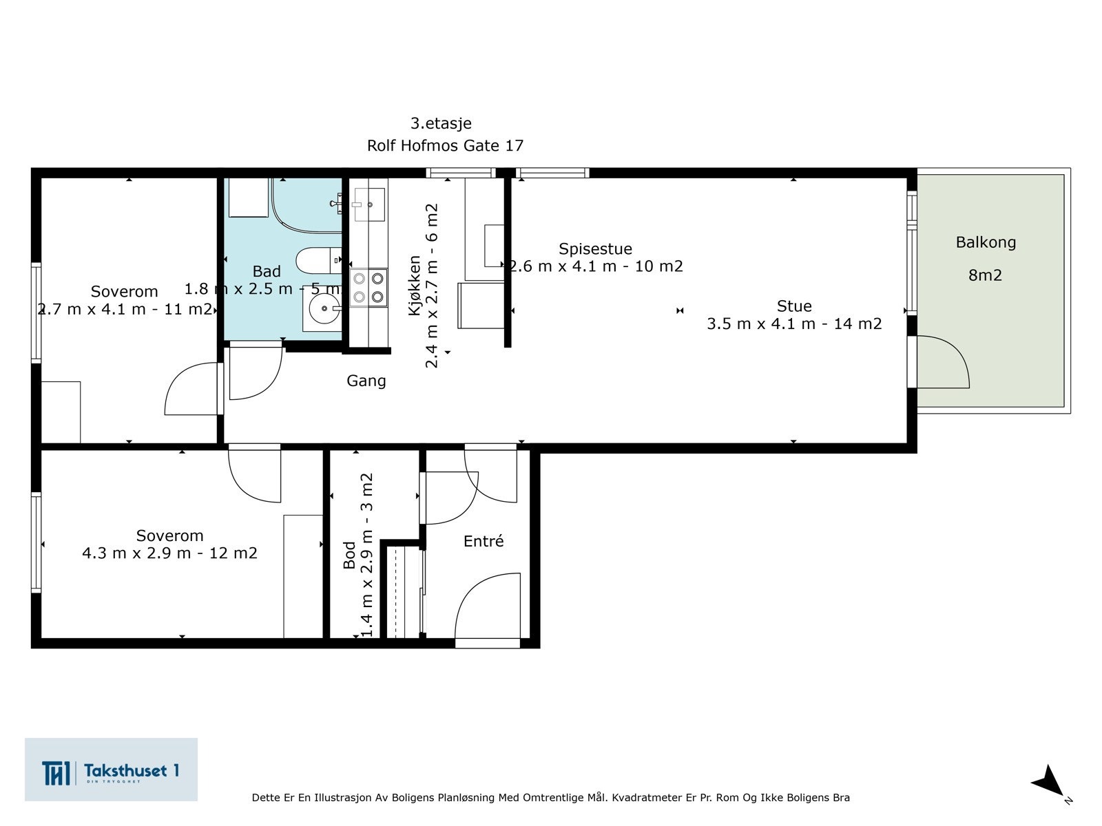
Tiltalende og romslig 3-roms endeleilighet i 3.etasje med solrik balkong.
Lys og romslig 3-roms med stor balkong - Garasje - Mulighet for 3 soverom - IN-ord - Fyring og vv inkl. - Sentralt
Nøkkelinfo
- Boligtype
- Leilighet
- Eieform
- Andel
- Soverom
- 2
- Internt bruksareal
- 76 m² (BRA-i)
- Bruksareal
- 82 m²
- Eksternt bruksareal
- 6 m² (BRA-e)
- Balkong/Terrasse
- 8 m² (TBA)
- Etasje
- 3
- Byggeår
- 2009
- Energimerking
- D - Mørkegrønn
- Rom
- 3
- Tomteareal
- 3 211 m² (eiet)
- Boligselgerforsikring
- Ja
Fasiliteter
Om boligen
Tiltalende og romslig 3-roms endeleilighet i 3.etasje med solrik balkong.
Leiligheten har en sentral beliggenhet på Ensjø, med kort vei til alt man trenger i hverdagen. Her bor man tilbaketrukket fra bylivet, men samtidig i umiddelbar nærhet til kollektiv transport og butikker.
- Nordvestvendt balkong på 8 kvm
- Garasjeplass medfølger
- Gjennomgående planløsning
- Romslig stue med lysinnslipp fra to sider
- Separat kjøkken
- Praktisk baderom
- 2 store soverom - Mulighet for 3 soverom
- Godt med oppbevaring
- Innvendig bod, samt kjellerbod
- IN-ordning - Ved innfrielse av fellesgjelden vil felleskostnadene reduseres til kr. 4486 pr. mnd.
- Fyring og varmtvann inkl. i felleskostnadene
- Ensjø Torg med T-bane (1-4) ligger et steinkast unna
- Kort vei til idylliske Kampen
- Store grøntområder i nærområdet
Salgsoppgaven beskriver vesentlig og lovpålagt informasjon om eiendommen
Se komplett salgsoppgaveNyttige lenker
Nærområdet
Privatmegleren Kvartal
Annonseinformasjon
| FINN-kode | 400240445 |
|---|---|
| Sist endret | 10. apr. 2025 12:59 |
| Referanse | 316250008 |
Annonsene kan være mangelfulle i forhold til lovpålagt opplysningsplikt. Før bindende avtale inngås oppfordres interessenter til å innhente komplett informasjon fra meglerforetaket, selger eller utleier.

































